Xây dựng nhà phố có gara ô tô đang thay đổi các yêu cầu về kiến trúc và xây dựng, biến không gian sống và gara thành một phần không thể thiếu. Thể hiện sự tinh tế và tiện nghi của cuộc sống hiện đại. Bài viết này của nhatoreview.com sẽ cùng khám phá những lợi ích và tiện nghi của các mẫu thiết kế nhà phố có gara theo xu hướng hiện đại nhất.
Các phương pháp thiết kế nhà phố có gara ô tô và bản vẽ công năng
Việc chọn vị trí đặt gara ô tô hợp lý, phù hợp với chức năng và không gian sống của gia đình phụ thuộc vào nhiều yếu tố như diện tích, nhu cầu, sở thích… Nhatoreview xin giới thiệu một số cách bố trí gara cùng với bản vẽ công năng minh họa.
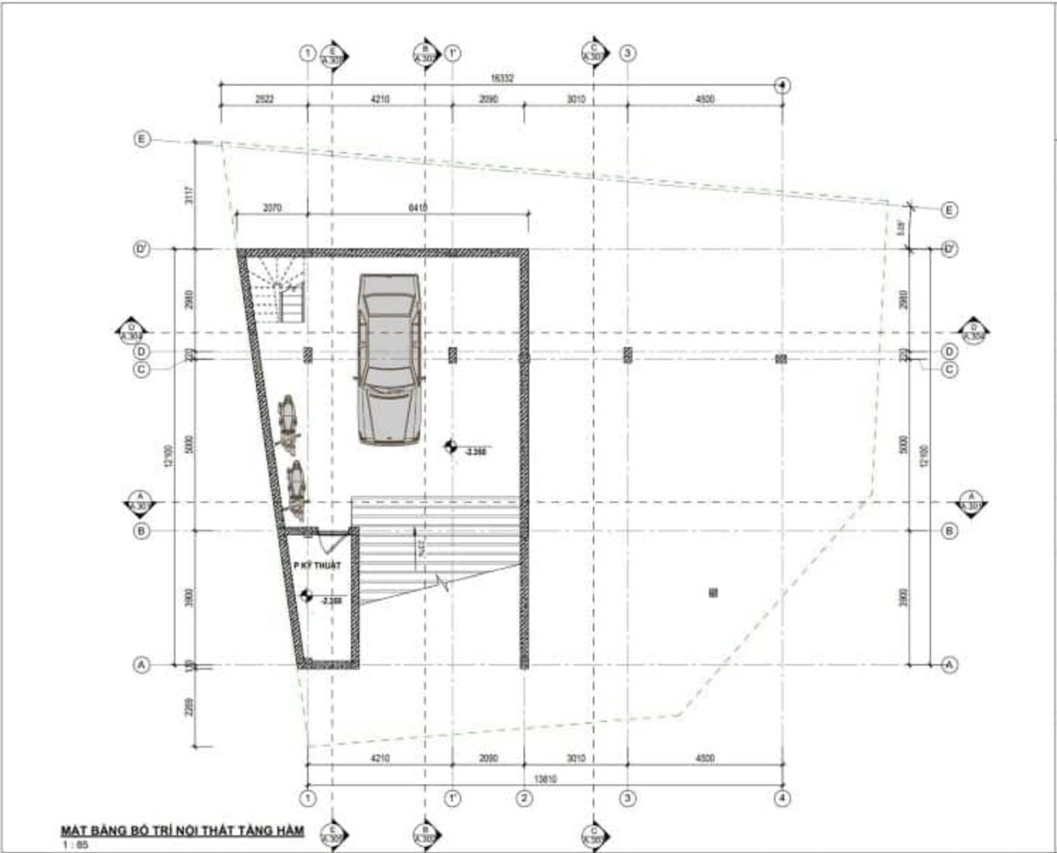
Thiết kế gara ô tô ở tầng hầm
Tầng hầm để xe là giải pháp tối ưu cho các khu vực không thể xây cao tầng hoặc theo sở thích của một số gia chủ muốn có tầng hầm. Kiểu thiết kế này tương tự như gara ô tô trong nhà, nhưng có một số điểm hạn chế riêng.
Những khác biệt như sau:
- Chi phí xây dựng khá cao, với tầng hầm đạt mức chi phí gấp từ 1.5 đến 2 lần so với tầng nổi.
- Khả năng bị thấm và ngấm nước vào tầng hầm. Đặc biệt tại những khu vực có mực nước ngầm cao, nguy cơ này dễ dàng xảy ra. Do đó, cần có giải pháp chống thấm hiệu quả và đáng tin cậy.
Thiết kế gara ô tô trong nhà
Thiết kế gara ô tô trong nhà cho phép xe đậu bên trong diện tích nhà ở, thường áp dụng cho nhà phố có diện tích nhỏ. Lợi ích của thiết kế nhà phố có gara trong nhà:
- Thuận tiện, tiết kiệm thời gian di chuyển.
- Giảm chi phí.
Tuy nhiên, cũng có một số hạn chế:
- Chi phí xây dựng cao hơn.
- Rủi ro cháy nổ.
- Mùi khói xe có thể gây ô nhiễm không khí. Vì vậy, nên thiết kế hệ thống cửa lớn và thông gió tốt, cũng như bố trí vách ngăn giữa gara và không gian sinh hoạt khác.
Mẫu thiết kế nhà phố có gara ô tô trong nhà và bản vẽ công năng
Xem thêm: thiết kế nhà 5×16 có gara
Thiết kế nhà phố có gara ô tô độc lập
Trong kiểu nhà này, vị trí gara ô tô được thiết kế độc lập, ít hoặc không ảnh hưởng đến không gian sống, thường nằm ở sân trước hoặc sau và có thể có mái che hoặc không. Kiểu thiết kế này vừa cung cấp tiện ích như có gara trong nhà, vừa hạn chế nhược điểm như mùi khói xe hay nguy cơ cháy nổ…
Mẫu thiết kế và bản vẽ công năng nhà phố với gara ô tô độc lập
Thiết kế nhà phố có gara ô tô trong sân vườn
Đây là lựa chọn thiết kế thường được các gia đình có diện tích xây dựng rộng rãi ưa chuộng. Với không gian lớn, việc bố trí gara khá dễ dàng. Bạn có thể dựng mái che cho gara để bảo đảm an toàn cho xe.
Lợi ích của thiết kế nhà phố có gara ô tô
Việc thiết kế nhà phố kèm theo gara ô tô mang lại sự hài hòa giữa không gian sống và chỗ để xe, tạo ra nhiều lợi ích cho cuộc sống hằng ngày. Dưới đây là những ưu điểm nổi bật của việc có gara ô tô tiện nghi trong ngôi nhà phố:
Chỗ an toàn tuyệt vời cho xe của gia đình
Việc trang bị gara ô tô tại nhà không những bảo vệ phương tiện mà còn tạo điểm nhấn cho ngôi nhà. Khi lựa chọn đỗ xe trong gara, bạn đang bảo vệ chiếc xe khỏi thời tiết khắc nghiệt và nguy cơ hư hỏng. Không gian gara kín đáo, vững chắc giúp xe luôn được bảo quản tốt, tránh xa khỏi nắng gắt và mưa rào, tạo nên môi trường tối ưu cho xe hoạt động tốt và kéo dài tuổi thọ, gia tăng giá trị của phương tiện – một khoản đầu tư xứng đáng.
Không gian sống sáng tạo
Gara ô tô là nơi lý tưởng để bạn thỏa sức sáng tạo ý tưởng thiết kế. Nó cho phép bạn tạo ra những mẫu thiết kế độc đáo, hài hòa với tổng thể ngôi nhà. Bạn có thể tùy chỉnh gara theo thẩm mỹ và sở thích cá nhân, từ chọn vật liệu xây dựng đến hệ thống chiếu sáng và các tiện nghi hiện đại. Không gian này giúp bạn sáng tạo và có thể biến gara thành tác phẩm nghệ thuật truyền cảm hứng, góp phần làm hoàn thiện ngôi nhà.
Tiện ích lớn, tiết kiệm thời gian và chi phí gửi xe
Thay vì phải tìm kiếm bãi đỗ xe phù hợp, việc có gara ô tô tại nhà đem lại sự tiện lợi tối ưu, tiết kiệm thời gian đáng kể cho việc cất giữ và lấy xe. Đậu xe trong gara không chỉ tiện ích mà còn giúp bảo quản xe tốt nhất.
Tăng giá trị bất động sản
Một căn nhà phố có gara ô tô không chỉ cung cấp tiện ích trong cuộc sống mà còn tăng giá trị bất động sản. Gara ô tô là tiện ích mà người mua thường tìm trong quá trình chọn mua nhà.
Không gian đa năng
Gara ô tô không chỉ là nơi cất xe, mà còn biến nó thành nền tảng đa năng cho nhiều ý tưởng sáng tạo độc đáo. Bạn có thể sử dụng gara để lưu trữ đồ, thiết lập xưởng làm việc, phòng tập thể dục, hoặc thậm chí biến nó thành không gian sống mở linh hoạt, gần gũi với thiên nhiên. Nơi này sẽ thích nghi với các nhu cầu đa dạng của bạn, mang lại giá trị sử dụng cao và thể hiện sự sáng tạo không giới hạn của chủ nhân.
Ý tưởng thiết kế nhà phố đẹp với gara ô tô
Mẫu thiết kế nhà phố đẹp kèm gara ô tô
Thiết kế nhà phố có gara ô tô tối ưu hóa diện tích đất, mang đến không gian sống tiện nghi, hiện đại cho gia đình. Nhà có 4 tầng 1 tum, gồm phòng khách, bếp, phòng ăn, 4 phòng ngủ, 5 nhà vệ sinh và sân thượng. Sử dụng hệ thống cửa cuốn giúp tiết kiệm không gian và đảm bảo an toàn cho xe. Cửa cuốn tạo hiệu ứng mở rộng, kết nối không gian với môi trường ngoài. Thiết kế mang phong cách hiện đại, sang trọng với gam màu trắng chủ đạo, kết hợp màu xám và gỗ. Kiến trúc ngôi nhà nổi bật với mái ngói đỏ, lan can tinh xảo và tường ốp đá cùng tiểu cảnh cây xanh.
Mẫu thiết kế nhà phố hiện đại có gara ô tô
Mẫu Thiết Kế Nhà Phố 4 Tầng Có Gara Ô Tô là một không gian sống hoàn hảo, dung hòa giữa không gian ở và gara ô tô, tạo ra môi trường sống đa năng và tiện nghi cho gia đình. Mẫu thiết kế này minh chứng cho việc sử dụng diện tích thông minh có thể đem lại sự thoải mái, hiện đại cho nhà phố. Tầng trệt thoáng đãng, tối ưu không gian cho gara ô tô, bảo vệ phương tiện và nâng cao thẩm mỹ ngôi nhà. Khu vực phía sau có thể làm sân vườn, bể cá phong thủy hoặc giếng trời, giúp lưu thông không khí và ánh sáng cho ngôi nhà.
Mẫu thiết kế nhà phố tân cổ điển với gara ô tô
Mẫu thiết kế theo phong cách tân cổ điển, có gara ô tô, mở ra một thế giới sang trọng và tinh tế. Sự kết hợp hoàn hảo giữa phong cách tân cổ điển và tiện ích gara mang lại không gian sống vượt trội cho người có nhu cầu sử dụng xe hơi tại nhà. Sự tinh tế của kiến trúc tân cổ điển gặp gỡ với sự tiện nghi của gara ô tô tạo nên câu chuyện kiến trúc ấn tượng, thể hiện cá tính và gu thẩm mỹ của chủ nhân.
Kết hợp các chi tiết hoa văn tinh xảo và tông màu trung tính, tạo bức tranh hài hòa, lôi cuốn cho ngôi nhà. Những nét thiết kế tinh tế mở ra không gian sống phong cách, ấn tượng. Sử dụng không gian sân trước để tạo khu vực tiếp đãi ngoài trời tuyệt vời, gia chủ có thể tổ chức gặp gỡ, thư giãn, tận hưởng không gian sống tối ưu, thân thiện với môi trường xung quanh.
Mẫu thiết kế nhà phố 5 tầng có gara ô tô
Thiết kế nhà phố 5 tầng là một ví dụ xuất sắc về sự sáng tạo trong việc tối ưu diện tích và không gian. Với 5 tầng, ngôi nhà không chỉ mang lại sự rộng rãi mà còn đảm bảo thẩm mỹ và tiện lợi. Gara ô tô tại tầng trệt không chỉ là nơi đỗ xe mà còn góp phần tạo nên sự hài hòa trong tổng thể kiến trúc, hoàn thiện bức tranh tổng thể của một ngôi nhà hiện đại.
Mẫu thiết kế nhà phố mái Nhật có gara ô tô
Phong cách kiến trúc mái Nhật từ lâu đã trở thành biểu tượng thân thuộc cho các ngôi nhà từ nông thôn đến thành thị. Vẻ đẹp mềm mại, tinh tế và sang trọng được thể hiện rõ nét trong thiết kế, làm nổi bật cho ngôi nhà. Gara ô tô nằm ở tầng trệt, phục vụ như một không gian lưu trữ phương tiện của gia đình. Đặc biệt, thiết kế tranh tường độc đáo tại gara tạo điểm hấp dẫn cho ngôi nhà. Mẫu thiết kế nhà phố mái Nhật với gara ô tô là sự kết hợp tinh tế giữa kiến trúc và tiện ích, mang đến không gian sống đẹp và thoải mái.
Mẫu thiết kế nhà phố mái Bằng có gara ô tô
Thiết kế nhà phố mái Bằng với gara ô tô cũng là một trong những phong cách nhà được ưa chuộng hàng đầu. Sự khéo léo trong cách bố trí không gian làm nổi bật vẻ đẹp độc đáo của ngôi nhà. Với mái Bằng truyền thống và độ nghiêng nhẹ, thể hiện… Một vẻ đẹp vững chãi, khỏe khắn không chỉ dễ dàng trong thi công mà còn thuận tiện cho việc bảo trì hơn các kiểu nhà khác.
Sự hòa quyện này không chỉ đem lại vẻ đẹp mà còn mang đến sự thông thoáng, thoải mái cho ngôi nhà. Mái Bằng tạo ra không gian mở ấn tượng tại khu vực sân thượng. Gia chủ có thể biến nơi đây thành một “vườn thượng uyển” thu nhỏ trong ngôi nhà của mình, hoặc tạo một khu vườn sáng tạo với cây xanh và bàn trà thơ mộng.
Mẫu thiết kế nhà phố mái Thái hiện đại có gara ô tô
Nổi bật với phong cách kiến trúc tinh tế kết hợp giữa truyền thống và hiện đại, ngôi nhà phố có gara ô tô và mái Thái tạo nên vẻ đẹp cuốn hút và ấn tượng. Mái Thái với những đường nét sắc sảo, mạnh mẽ, đậm chất kiến trúc Đông Nam Á. Kết hợp một cách khéo léo trong thiết kế ngôi nhà phố, mang lại phong cách độc đáo, làm nổi bật ngôi nhà trong không gian xung quanh.
Mẫu thiết kế nhà phố vừa ở vừa kinh doanh có gara ô tô
Mẫu thiết kế nhà phố với gara ô tô vừa ở vừa kinh doanh là sự kết hợp tinh tế giữa không gian sống và kinh doanh. Đáp ứng đa dạng nhu cầu của chủ nhân. Gara ô tô thông minh giúp quản lý xe cộ và công việc kinh doanh tại chỗ thuận tiện hơn.
Trên đây là 25+ mẫu nhà ống có gara ô tô đẹp, hiện đại và tiện nghi, phù hợp với nhu cầu của nhiều gia đình Việt. Việc thiết kế gara trong nhà không chỉ mang lại sự thuận tiện trong sinh hoạt, mà còn giúp tối ưu không gian và nâng cao giá trị thẩm mỹ cho ngôi nhà. Hy vọng qua những gợi ý trên, bạn sẽ tìm được mẫu thiết kế ưng ý, phù hợp với diện tích và phong cách sống của gia đình.
Gợi ý xem thêm: Xu Hướng Nhà Đẹp 2025: Tuyển Tập 999 Mẫu Thiết Kế Hiện Đại



