Nếu bạn đang sở hữu mảnh đất kích thước 5x16m và băn khoăn làm thế nào để có một thiết kế đẹp, tiện ích cùng chỗ để ô tô, hãy cùng tôi khám phá những mẫu nhà 5x16m có gara. Những thiết kế này không chỉ hiện đại mà còn tối ưu hóa không gian sống cho các gia đình từ trẻ đến nhiều thế hệ.
Bài viết này nhatoreview.com không chỉ cung cấp hình ảnh mà sẽ giúp bạn nắm rõ cách bố trí gara, tối ưu ánh sáng, phân công các chức năng và ước tính chi phí. Đây là một hướng dẫn thực tế, chi tiết và ứng dụng cao mà bạn chắc chắn sẽ muốn đọc hết.
Phân tích diện tích 5×16 – tối ưu diện tích sử dụng
Ưu điểm của nhà kích thước 5×16
Diện tích 5x16m được ưa chuộng trong xây dựng nhà phố đô thị. Với chiều dài 16m, việc phân bố các khu vực theo chiều sâu trở nên dễ dàng. Thiết kế nhà 5x16m tối ưu hóa không gian, đủ để sắp xếp từ 1 đến 3 tầng, bao gồm gara, phòng khách, bếp và phòng ngủ.

Chiều ngang 5m cho phép việc mở cửa sổ trước và sau, giúp không khí và ánh sáng lưu thông hiệu quả. Mẫu nhà này thích hợp với phong cách hiện đại, tối giản hoặc lệch tầng.
Thách thức trong thiết kế
Dù có nhiều ưu điểm, diện tích 5x16m vẫn có hạn chế. Với chiều ngang chỉ 5m, không gian dễ bị tù túng nếu không bố trí hợp lý. Việc tích hợp gara, phòng khách và bếp trên cùng một mặt bằng đòi hỏi sự khéo léo trong sắp xếp công năng.
Đặc biệt, xây nhà cao tầng mà không chú ý đến thông gió và chiếu sáng tự nhiên có thể khiến không gian ngột ngạt, nhất là các tầng giữa.
Giải pháp thiết kế nhà lệch tầng 5x16m để tối ưu thông gió và ánh sáng
Một giải pháp hiệu quả là thiết kế nhà lệch tầng 5x16m. Kiểu thiết kế này tạo các khoảng hở đứng giữa các tầng, giúp ánh sáng và không khí dễ dàng lưu thông theo chiều dọc.
Thiết kế lệch tầng còn tạo cảm giác không gian mở rộng hơn. Các tầng có thể được bố trí lệch để tận dụng diện tích mà vẫn giữ sự riêng tư cần thiết.

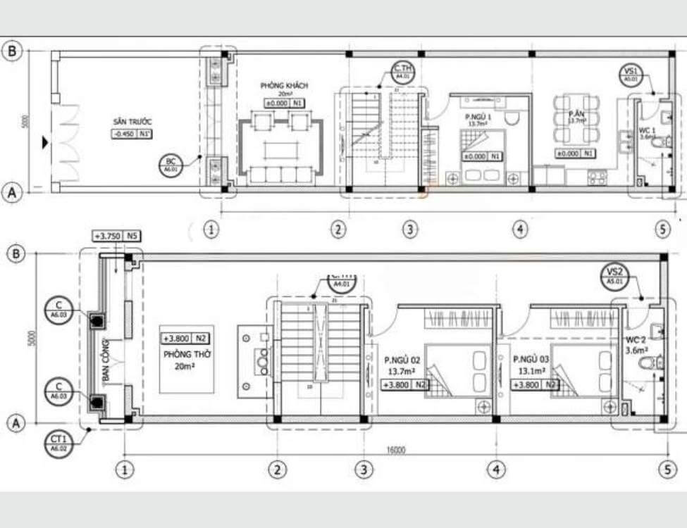
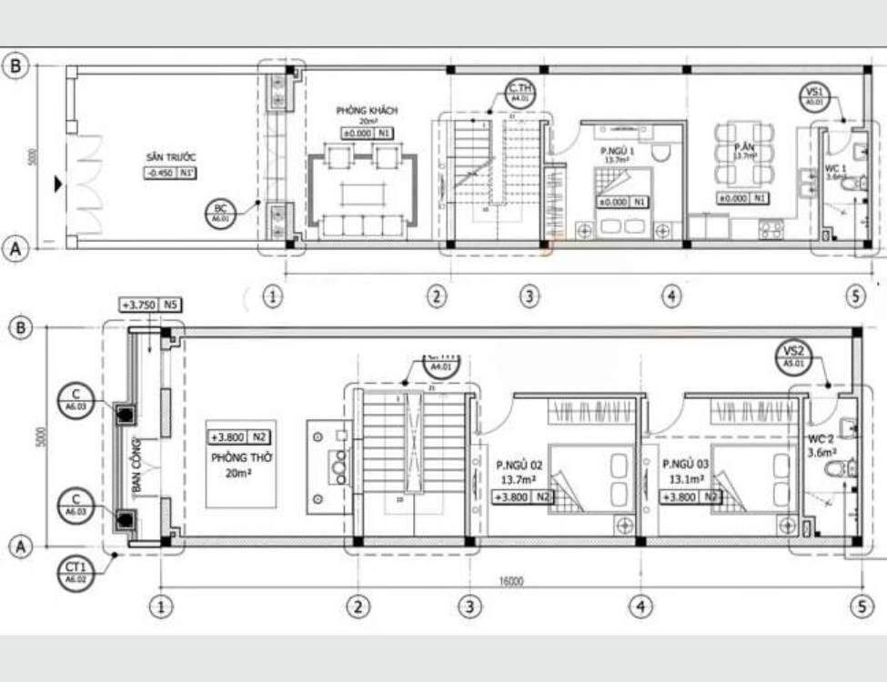
Thiết kế gara trong nhà 5×16 – Những điều cần lưu ý
Kích thước tiêu chuẩn của gara
Đối với nhà phố diện tích nhỏ, gara cần rộng ít nhất 3m và dài khoảng 5.5m nhằm chứa đủ một xe ô tô tiêu chuẩn. Chiều cao trần tối thiểu cần đạt 2.2m để đảm bảo an toàn và thoải mái khi xe ra vào.
Khi thiết kế nhà 5×16 có gara, cần tính đến diện tích cho cửa ra vào, lối đi và không gian phía trước để dễ dàng thao tác.
Vị trí bố trí gara
Gara thường được đặt tại tầng trệt, ngay lối vào chính. Cách làm này tiết kiệm không gian và thuận tiện sử dụng xe. Với diện tích 5x16m, bố trí gara phía trước sẽ tách biệt không gian xe và sinh hoạt.
Hơn nữa, nếu có sân trước hoặc sau, bạn có thể linh hoạt thay đổi vị trí gara theo hướng nhà và nhu cầu sử dụng.
Hệ thống thông gió và chiếu sáng
Gara cần thông gió hiệu quả để tránh tích tụ khí độc từ xe. Có thể sử dụng quạt thông gió hoặc cửa sổ đón gió đối lưu. Nếu gara nằm trong nhà, nên bố trí gần giếng trời hoặc khu vực thông thoáng.
Chiếu sáng cho gara nên sử dụng đèn LED âm trần, bố trí dọc trần hoặc hai bên tường. Hệ thống đèn cần tích hợp cảm biến chuyển động để tối ưu hóa việc tiết kiệm điện và đảm bảo an toàn khi sử dụng buổi tối.
Những thiết kế nhà 5×16 đẹp và ấn tượng hiện nay
Nhà 5×16 4 tầng có gara và sân thượng
Đối với những ai cần không gian sống rộng rãi và nhiều phòng chức năng, mẫu nhà 4 tầng là một lựa chọn phù hợp. Gara vẫn đặt tại tầng trệt, có lối vào riêng biệt.
Các tầng trên được sắp xếp cho phòng ngủ, làm việc, học tập. Sân thượng có thể sử dụng cho việc làm vườn, sân phơi hoặc không gian thư giãn. Mẫu nhà này rất thích hợp cho gia đình nhiều thế hệ.


Nhà 5x16m có gara phong cách tân cổ điển
Nếu bạn đam mê sự sang trọng, tinh tế, thì mẫu nhà 5x16m có gara mang phong cách tân cổ điển là sự lựa chọn không thể bỏ qua. Dù diện tích không rộng rãi, kiến trúc tân cổ điển vẫn phát huy hiệu quả qua mặt tiền đối xứng, phào chỉ tinh xảo, hệ mái và cửa sổ cao thoáng.
Gara được bố trí tinh tế sau mặt tiền trang trí cầu kỳ, đảm bảo tính thẩm mỹ tổng thể. Bên trong vẫn cung cấp đầy đủ công năng như các mẫu hiện đại, nhưng mang đến cảm giác sang trọng, đẳng cấp và bền vững theo thời gian.

Tham khảo thêm 30 mẫu thiết kế nhà diện tích đất 6x9m đẹp, hiện đại và tối ưu công năng cho mọi nhu cầu sinh hoạt.
Mẫu nhà ống 1 tầng 5x16m có gara
Thiết kế nhà ống 1 tầng 5x16m có gara là lựa chọn lý tưởng cho người sống đơn thân hoặc cặp đôi trẻ. Mặc dù hạn chế chiều cao, nhưng nếu bố trí hợp lý, gara vẫn có thể đặt phía trước, tách biệt với không gian sinh hoạt.
Kiểu nhà này thích hợp cho gia đình cần để xe máy hoặc ô tô nhỏ. Với thiết kế đơn giản, chi phí thấp, thi công và bảo trì dễ dàng.

Thiết kế nhà 5x16m 2 tầng thích hợp cho gia đình trẻ
Mẫu nhà 5x16m 2 tầng rất thích hợp cho gia đình gồm 3–4 người. Gara đặt phía trước, ngăn cách với phòng khách bởi sảnh đệm hoặc vách ngăn.
Tầng 1 thuận tiện cho việc bố trí bếp, bàn ăn và phòng khách liền nhau. Tầng 2 là nơi dành cho phòng ngủ và không gian thư giãn. Thiết kế này nhỏ gọn, hiện đại và tiết kiệm chi phí so với nhà 3–4 tầng.


Mẫu nhà 5x16m 3 tầng có gara hiện đại và tiện nghi
Mẫu nhà 5x16m 3 tầng là lựa chọn hoàn hảo cho gia đình đông thành viên. Khu vực tầng trệt được thiết kế với gara và không gian sinh hoạt chung. Tầng 2 và 3 dành cho phòng ngủ, phòng làm việc và ban công.
Việc xây nhà 3 tầng mang lại sự rộng rãi trên diện tích nhỏ, đồng thời bảo đảm sự riêng tư cá nhân. Thiết kế hiện đại, tối ưu hóa ánh sáng và luồng không khí. Ngoài ra, có thể dễ dàng tích hợp thêm thang máy mini hoặc giếng trời.
Khi lựa chọn thiết kế nhà 5x16m có gara, nhiều gia đình cũng quan tâm đến việc tối ưu công năng và thẩm mỹ theo các kiểu nhà hiện đại để tạo nên không gian sống thời thượng và tiện nghi.
Dự toán chi phí xây dựng nhà 5×16 có gara
Chi phí xây dựng phần thô
Chi phí phần thô của nhà 5×16 có gara ước tính từ 3.5 – 4.2 triệu/m² tùy theo nguyên vật liệu và nhà thầu. Với diện tích sàn từ 160–200m² (cho nhà 2–3 tầng), tổng chi phí phần thô sẽ vào khoảng 560 – 850 triệu đồng.
Các yếu tố ảnh hưởng: số tầng, địa điểm xây dựng, cấu trúc móng, và có tầng hầm hay không. Gara cần nền móng vững chắc hơn, ảnh hưởng đến chi phí.
Chi phí hoàn thiện và nội thất
Phần hoàn thiện bao gồm sơn tường, lát sàn, hệ thống điện nước, cửa và thiết bị vệ sinh. Chi phí hoàn thiện từ 2.5 – 3.5 triệu/m².
Nội thất cơ bản (bếp, tủ, bàn ghế, giường) cho nhà 2–3 tầng chi phí khoảng 150 – 300 triệu đồng. Nếu chọn nội thất cao cấp, có thể vượt mốc 400 triệu. Đầu tư hợp lý vào nội thất giúp tăng giá trị sử dụng và tính thẩm mỹ cho ngôi nhà.
Tối ưu hóa không gian sống trong nhà 5×16 có gara
Bố trí nội thất hợp lý
Với mặt bằng hạn chế ngang, việc sắp xếp nội thất trong nhà 5×16 cần tinh tế và hợp lý. Nên lựa chọn nội thất đa năng như tủ âm tường, giường có ngăn kéo, bàn ăn xếp gọn để tiết kiệm diện tích.
Phòng khách, bếp và gara nên tách biệt bằng vách kính, kệ mở hoặc rèm, vừa tạo sự riêng tư vừa giữ không gian liên kết. Tránh sử dụng đồ nội thất cồng kềnh. Đề xuất thiết kế mở nhằm tạo sự rộng rãi và dễ dàng di chuyển.

Thiết kế nhà ống 5x16m với không gian xanh và mở
Thiết kế nhà ống 5x16m rất thích hợp để tối ưu hóa ánh sáng và thông gió tự nhiên. Sử dụng giếng trời ở giữa hoặc phía sau giúp ánh sáng xuyên suốt các tầng. Kết hợp cửa kính lớn ở mặt trước và thông tầng mang lại cảm giác rộng mở và thoáng đãng.
Bạn có thể thêm ban công xanh, tiểu cảnh ở sân sau hoặc tường cây treo để tạo sinh thái nổi bật. Không gian xanh cải thiện chất lượng không khí và mang đến sự thư giãn trong đời sống đô thị chật chội.
Với diện tích 5x16m, việc sở hữu một ngôi nhà tiện nghi, thẩm mỹ và có gara riêng không còn là điều khó khăn. Hy vọng những gợi ý trên sẽ giúp bạn lựa chọn được mẫu thiết kế nhà 5x16m có gara phù hợp, đáp ứng tốt nhu cầu sinh hoạt và phong cách sống của gia đình mình.
Xem thêm mẫu tương tự: Thiết kế nhà cấp 4 diện tích 5x16m: 39+ mẫu đẹp ấn tượng, đáng xây nhất năm 2025





