Trong những năm gần đây, các mẫu bản vẽ nhà 2 tầng 7x11m ngày càng trở thành lựa chọn phổ biến của nhiều gia đình tại thành thị và nông thôn nhờ sự cân đối giữa diện tích xây dựng và công năng sử dụng. Với mặt tiền 7m và chiều sâu 11m, bạn hoàn toàn có thể linh hoạt thiết kế từ 2 đến 4 phòng ngủ, tích hợp sân trước, gara ô tô hoặc giếng trời thoáng đãng.
Trong bài viết này, trang web NHA TO review sẽ giới thiệu đến bạn một vài mẫu bản vẽ nhà 2 tầng 7x11m cùng những mẫu nhà thiết kế nhà 2 tầng 7x11m đẹp hiện đại và sang trọng.
Lợi thế của thiết kế nhà 2 tầng 7x11m
Với thị trường hiện giờ, nhà 2 tầng 7x11m khá phổ biến, đặc biệt ở khu vực thành thị và các nơi có diện tích đất bị giới hạn. Kiểu nhà này rất phù hợp cho những cặp vợ chồng trẻ hoặc gia đình ít thành viên với khả năng tài chính chưa cao.
Đây là lý do nhiều gia đình yêu thích và chọn lựa mẫu nhà này. Hãy cùng xem qua một số ưu điểm nổi bật nhất của mẫu này.
Phong cách thiết kế đa dạng
Nhà 2 tầng 7x11m có thể thích ứng với nhiều kiểu thiết kế khác nhau, bao gồm những phong cách đang thịnh hành như:
- Phong cách hiện đại: Thiết kế hiện đại với đường nét tối giản, màu sắc thanh nhã giúp không gian sống trở nên sang trọng và tinh tế.
- Phong cách cổ điển: Tập trung vào chi tiết và hoa văn phức tạp, phong cách cổ điển tạo nên sự tráng lệ và lịch lãm cho không gian sống.
- Phong cách tân cổ điển: Mẫu nhà này mang lại vẻ quý phái, xa hoa, rất phù hợp cho những gia đình yêu thích sự cầu kỳ.
- Phong cách tối giản: Ưa chuộng sự đơn giản và vuông vắn, tránh các chi tiết rườm rà, rất phù hợp cho những căn nhà mặt phố.

Chi phí thi công tiết kiệm
Một điểm mạnh không thể bỏ qua của nhà này là chi phí xây dựng thấp. So với nhiều kiểu nhà khác, nhà 2 tầng 7x11m được xem là có mức đầu tư hợp lý hơn, đáp ứng nhu cầu cho hầu hết gia đình, đặc biệt là các gia đình trẻ chưa có nhiều tiền tiết kiệm.
Chi phí xây dựng thấp một phần do diện tích nhà không lớn, và các thiết kế thường đơn giản, giúp giảm chi phí thuê thiết kế. Mặc dù kích thước khiêm tốn, mẫu nhà này vẫn đáp ứng tốt nhu cầu sinh hoạt, mang đến không gian sống lý tưởng mà không tốn nhiều chi phí.
Tối ưu diện tích đất
Với những gia đình không sở hữu diện tích đất lớn nhưng vẫn muốn có không gian sống thoải mái thì mẫu nhà 2 tầng 7x11m là lựa chọn tuyệt vời. Thiết kế này có thể đáp ứng nhu cầu của gia đình có từ 3-4 thành viên một cách hiệu quả.

Các giải pháp thiết kế nhà 2 tầng 7x11m phổ biến nhất
Việc thiết kế nhà là một thách thức không nhỏ cho các gia đình. Để giúp bạn tìm ra những mẫu thiết kế nhà rộng 7m dài 11m lý tưởng, dưới đây là một số phương án được nhiều gia đình lựa chọn.với một cách tiếp cận tối ưu nhất trong thời gian gần đây.
Thiết kế nhà 2 tầng 7x11m theo phong cách hiện đại
Thiết kế nhà 2 tầng theo phong cách hiện đại đang trở thành sự lựa chọn phổ biến cho không ít gia đình ngày nay, nhờ tính năng tiết kiệm chi phí thi công tối ưu. Thiết kế này không chú trọng vào các chi tiết cầu kỳ mà thiên về kết cấu tối giản, mang lại sự tươi mới và năng động cho không gian sống gia đình bạn.


Thiết kế nhà 2 tầng 7x11m phong cách tân cổ điển
Phong cách tân cổ điển vẫn luôn được đánh giá cao trong thiết kế nhà 2 tầng 7x11m, là lựa chọn tạo ấn tượng cho ngôi nhà. Mẫu thiết kế này không chỉ thể hiện tính thẩm mỹ vượt trội mà còn tôn lên đẳng cấp và sự sang trọng cho tổ ấm của bạn.


Xem thêm: 30+ Thiết Kế Nhà Rộng 7m Dài 9m Đẹp Mắt Nhất Trong Năm 2025
Thiết kế nhà 2 tầng 7x11m với mái bằng đơn giản
Nhiều gia đình yêu thích thiết kế nhà 2 tầng mái bằng vì sự đơn giản và tiện ích mà nó mang lại, phù hợp với nhu cầu sử dụng hiện tại. Thiết kế mái bằng cũng tạo điều kiện thuận lợi cho việc mở rộng thêm tầng trong tương lai.


Thiết kế nhà 2 tầng 7x11m hình chữ L
Thiết kế chữ L khá độc đáo và được nhiều gia đình ưa chuộng như một nét chấm phá cho kiến trúc ngôi nhà. Mẫu thiết kế này không chỉ tận dụng tối đa diện tích mà còn cho phép ánh sáng tự nhiên tràn ngập căn nhà.

Thiết kế nhà 2 tầng 7x11m với mái Thái sang trọng
Nhà 2 tầng mái Thái được đông đảo gia đình ưa chuộng hiện nay nhờ nét sang trọng và ấn tượng. Thiết kế mái Thái không chỉ tạo điểm nhấn nổi bật mà còn có khả năng bảo vệ ngôi nhà khỏi các tác động từ thời tiết.


Nếu bạn đang tìm kiếm thêm ý tưởng đa dạng về kiểu dáng và phong cách thiết kế, đừng bỏ qua những mẫu nhà 2 tầng đẹp đang được ưa chuộng nhờ sự cân đối giữa công năng, thẩm mỹ và chi phí xây dựng hợp lý.
Thiết kế nhà 2 tầng 7x11m có gara
Mẫu thiết kế nhà 2 tầng 7x11m có gara là lựa chọn hoàn hảo cho những gia đình cần không gian để xe an toàn và tiện lợi ngay trong ngôi nhà của mình. Gara được bố trí thông minh, thường nằm ở tầng trệt hoặc sát bên cạnh phòng khách, giúp tiết kiệm diện tích và dễ dàng di chuyển. Thiết kế này không chỉ bảo vệ phương tiện khỏi thời tiết mà còn góp phần tăng tính thẩm mỹ và sự sang trọng cho tổng thể ngôi nhà. Đồng thời, các khu vực sinh hoạt và phòng ngủ vẫn được bố trí khoa học, đảm bảo sự thoải mái và tiện nghi cho các thành viên trong gia đình.

Thiết kế nhà 2 tầng có sân vườn, ban công
Thiết kế nhà 2 tầng có sân vườn và ban công mang đến không gian sống gần gũi với thiên nhiên, thoáng đãng và thư thái. Khu vực sân vườn phía trước hoặc sau nhà có thể tận dụng để trồng cây xanh, tiểu cảnh hoặc làm khu vực vui chơi ngoài trời cho trẻ nhỏ. Trong khi đó, ban công ở tầng trên là nơi lý tưởng để thư giãn, trồng hoa hoặc tận hưởng không khí trong lành mỗi sáng. Mẫu thiết kế này không chỉ đáp ứng nhu cầu thẩm mỹ mà còn nâng cao chất lượng sống, rất phù hợp với những gia đình yêu thích sự yên bình và mong muốn có không gian xanh trong chính ngôi nhà của mình.

Một số mẫu thiết kế nhà 2 tầng 7x11m khác









Gợi ý 5 bản vẽ thiết kế nhà 2 tầng 7x11m phổ biến hiện nay
Dưới đây là một số gợi ý về bản vẽ thiết kế nhà 2 tầng 7x11m, hỗ trợ gia chủ có cái nhìn toàn diện về ngôi nhà trước khi tiến hành thi công.
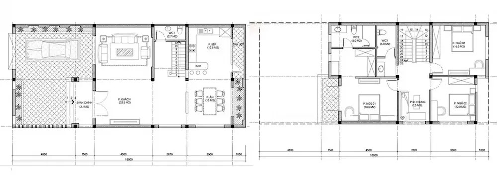
Bản vẽ mặt bằng nhà phố 2 tầng 7x11m
Tầng trệt của ngôi nhà được thiết kế theo phong cách không gian mở, kết nối liền mạch giữa phòng khách, khu vực ăn uống và bếp, tạo cảm giác rộng rãi và thuận tiện cho việc sinh hoạt, giao tiếp giữa các thành viên trong gia đình. Ngoài ra, tầng này còn bố trí thêm một phòng ngủ linh hoạt – có thể sử dụng làm phòng ngủ chính, phòng làm việc hoặc không gian sinh hoạt chung tùy theo nhu cầu.
Lên đến tầng 2, bố cục gồm ba phòng ngủ có diện tích trung bình khoảng 15m² mỗi phòng, cùng một phòng tắm chung đảm bảo tiện nghi. Bên cạnh đó, khu vực ban công được tận dụng làm không gian đa năng – lý tưởng để thư giãn, trồng cây hoặc bố trí góc đọc sách ngoài trời.
Gợi ý tìm hiểu thêm những mẫu bản vẽ nhà 3×12 hiện đại và thoáng đãng
Bản vẽ nhà phố 2 tầng 7mx11m với không gian mở
Tầng trệt của ngôi nhà được bố trí làm khu vực sinh hoạt chung, với thiết kế mở liên thông giữa phòng khách, phòng ăn và bếp. Nhờ hệ thống cửa sổ lớn và tường kính xuyên suốt, toàn bộ không gian luôn tràn ngập ánh sáng tự nhiên, mang lại cảm giác thoáng đãng và gần gũi với thiên nhiên. Khu vực tiếp khách được thiết kế riêng biệt nhưng vẫn hài hòa với tổng thể không gian, tạo nên một môi trường sống linh hoạt, vừa ấm cúng vừa hiện đại.
Tầng thượng là không gian riêng tư của gia đình, bao gồm 3 phòng ngủ, một phòng tắm và một phòng làm việc. Mỗi phòng đều được bố trí hợp lý để đón ánh sáng tự nhiên và lưu thông không khí tốt, đồng thời đảm bảo sự yên tĩnh và riêng tư cho từng thành viên, tạo điều kiện lý tưởng cho nghỉ ngơi và làm việc hiệu quả.

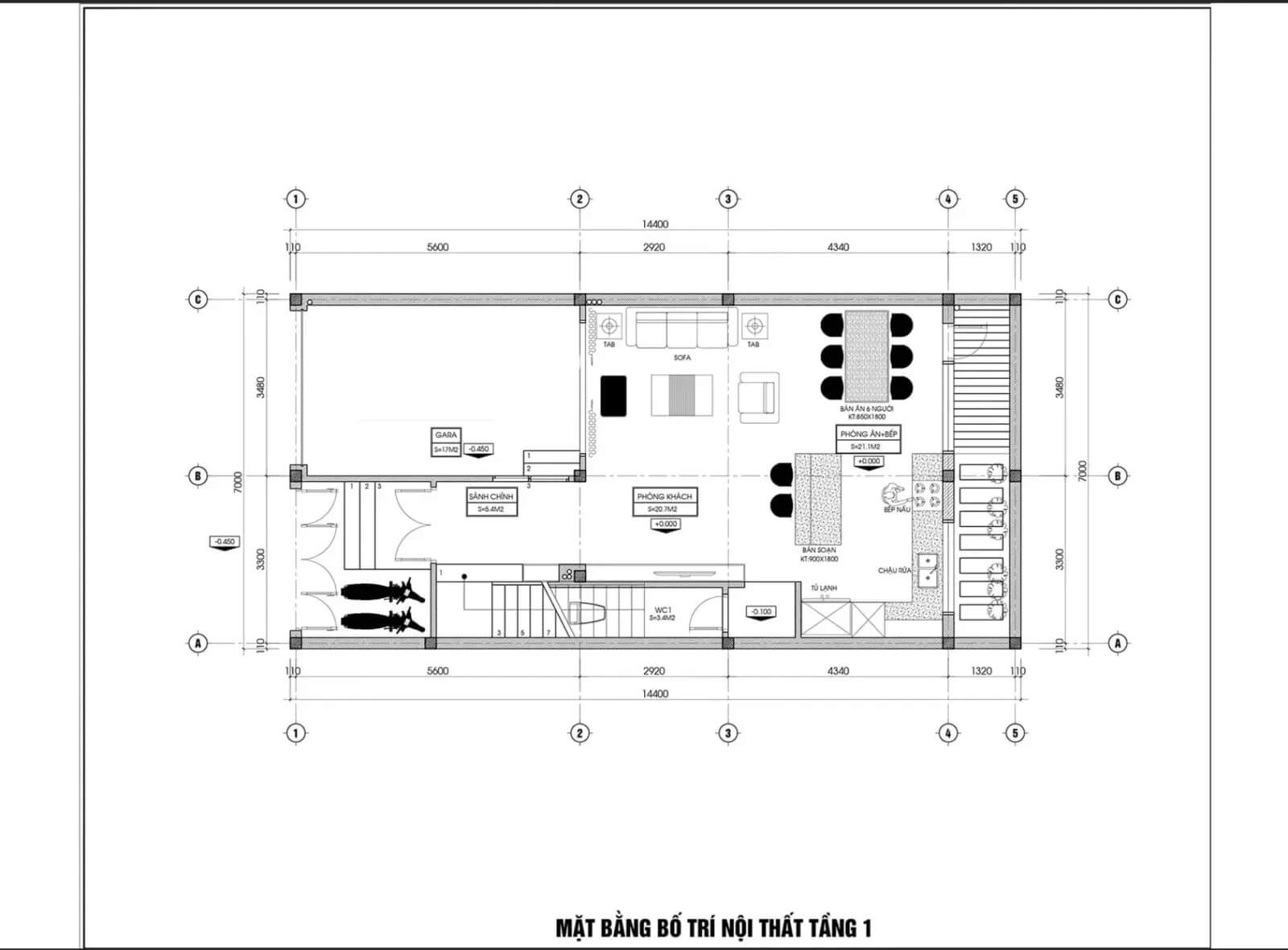
Bản vẽ nhà phố cổ điển 2 tầng 7x11m
Thiết kế nhà hai tầng giúp tận dụng tối đa diện tích sử dụng, mang lại sự tiện nghi và khoa học trong bố trí không gian. Tầng trệt đóng vai trò là khu vực sinh hoạt chung với các công năng gồm gara để xe, phòng khách, bếp, khu vực ăn uống và một phòng tắm phục vụ nhu cầu hằng ngày.
Tầng trên là không gian nghỉ ngơi riêng tư, được bố trí các phòng ngủ thoáng mát cùng phòng tắm riêng, đáp ứng đầy đủ nhu cầu sinh hoạt của các thành viên trong gia đình. Ngoài ra, mẫu nhà phố này còn có ban công xanh mát – nơi lý tưởng để thư giãn, tận hưởng không khí trong lành hoặc trang trí bằng cây cảnh, tạo điểm nhấn thẩm mỹ cho toàn bộ ngôi nhà.

Bản vẽ nhà 2 tầng diện tích 7x11m kiểu châu Âu
Tầng trệt của ngôi nhà được thiết kế rộng rãi với phòng khách lớn, thoáng mát – là nơi lý tưởng cho các hoạt động giải trí và quây quần của cả gia đình. Liền kề là khu vực bếp và phòng ăn hiện đại, được trang bị đầy đủ tiện nghi, đáp ứng nhu cầu nấu nướng và thưởng thức bữa ăn hằng ngày trong không gian tiện lợi và ấm cúng.
Tầng 2 là khu vực nghỉ ngơi riêng tư với ba phòng ngủ độc lập, mỗi phòng đều được thiết kế đảm bảo sự yên tĩnh, thoáng đãng và đầy đủ tiện nghi sinh hoạt. Ngoài ra, một phòng tắm chung được bố trí hợp lý để phục vụ nhu cầu sử dụng của các thành viên trong gia đình một cách thuận tiện và thoải mái.

Bản vẽ nhà 2 tầng 7x11m có sân vườn
Với thiết kế hai tầng, ngôi nhà cho phép phân chia không gian một cách hợp lý theo từng chức năng sử dụng. Tầng trệt thường được bố trí làm khu vực sinh hoạt chung, gồm phòng khách rộng rãi, phòng ăn và bếp liên thông, tạo cảm giác liền mạch và thoáng đãng. Ngoài ra, tầng này còn có một phòng ngủ và phòng tắm riêng, rất thuận tiện cho người lớn tuổi hoặc khi gia đình có khách lưu trú qua đêm.
Tầng trên được tận dụng làm không gian riêng tư, có thể bố trí 3 phòng ngủ riêng biệt cho các thành viên trong gia đình. Bên cạnh đó, gia chủ cũng có thể linh hoạt sử dụng một phần diện tích làm phòng làm việc, thư viện cá nhân hoặc phòng giải trí, tùy theo nhu cầu và phong cách sống.

Kinh nghiệm thi công nhà 2 tầng 7x11m tiết kiệm chi phí
Trong quá trình xây dựng nhà ở, các gia chủ nên lưu ý một số điều dưới đây:
- Chọn lựa đơn vị xây dựng đáng tin cậy: Một công ty thiết kế đáng tin sẽ không chỉ mang lại những công trình có giá trị thẩm mỹ cao cho gia chủ mà còn hỗ trợ tiết kiệm tối đa chi phí cho quá trình thi công nhà ở.
- Lập kế hoạch rõ ràng: Trong quá trình xây dựng nhà ở 2 tầng 7×11, gia chủ cần hiểu rõ kế hoạch chi tiết cho từng hạng mục, giúp duy trì thế chủ động và hạn chế tối đa các chi phí phát sinh không cần thiết.
- Dự báo chi phí thi công: Chi phí xây dựng là yếu tố cần được nắm bắt trước khi triển khai. Với dự toán chi phí chính xác, gia chủ sẽ có kế hoạch tài chính rõ ràng, tránh các chi phí ngoài kế hoạch.
- Đưa ra thời gian thi công hợp lý: Để tránh bị ngắt quãng trong quá trình xây dựng, nên chọn thời điểm thích hợp như vào mùa khô hoặc nắng để thi công. Hạn chế xây dựng vào mùa mưa bão để đảm bảo tiến độ công trình.
- Giám sát tiến độ thi công: Gia chủ phải theo dõi tiến độ thi công một cách sát sao để đảm bảo công trình không bị trì hoãn, tránh lãng phí không cần thiết.
- Lựa chọn vật liệu xây dựng: Vật liệu xây dựng đóng vai trò quan trọng trong việc quyết định chi phí thi công nhà 2 tầng 7x11m. Tùy vào điều kiện tài chính, gia chủ nên cân nhắc lựa chọn vật liệu thích hợp nhưng không nên hy sinh chất lượng để giảm chi phí, đảm bảo an toàn cho ngôi nhà.

Chi phí xây nhà 2 tầng 7x11m là bao nhiêu?
Chi phí xây dựng nhà 2 tầng 7×11 sẽ phụ thuộc vào nhiều yếu tố như thời gian thi công, phong cách thiết kế, loại vật liệu,… cũng như những yêu cầu riêng từ chủ nhà. Vì vậy, để có mức giá chính xác, khuyến khích gia chủ liên hệ trực tiếp với các đơn vị thi công để nhận báo giá cụ thể nhất.
Trên đây là những gợi ý chi tiết về bản vẽ nhà 2 tầng 7x11m với thiết kế khoa học, tối ưu công năng và phù hợp với nhu cầu sinh hoạt của gia đình hiện đại. Dù bạn đang tìm kiếm một không gian sống tiện nghi, thoáng đãng hay muốn linh hoạt trong cách bố trí các phòng chức năng, các mẫu bản vẽ trên đều có thể đáp ứng linh hoạt. Hy vọng thông qua bài viết này, bạn sẽ tìm được ý tưởng phù hợp để xây dựng tổ ấm lý tưởng cho gia đình mình.
Bên cạnh mẫu nhà 2 tầng 7x11m, nhiều gia đình có diện tích đất hẹp ngang cũng quan tâm đến các phương án thiết kế nhà 2 tầng 4x16m với cách bố trí không gian thông minh, đảm bảo đầy đủ tiện nghi và ánh sáng tự nhiên. Xem ngay tại trang tin của Nhà To review nhé.








