Ưu và nhược điểm của thiết kế nhà mặt tiền 12m sâu 8m
Ưu điểm
Thiết kế nhà với bề ngang 12m và chiều sâu 8m mang lại lợi thế lớn về diện tích ngang rộng, giúp dễ dàng bố trí không gian sống thoải mái và cân bằng. Mặt tiền rộng 12m cung cấp sự linh hoạt trong việc chọn lựa phong cách kiến trúc như hiện đại, tân cổ điển hay Á Đông. Kết cấu rộng cũng cho phép thiết kế nhiều cửa sổ, đón sáng tự nhiên tốt, tiết kiệm năng lượng. Ngoài ra, ngôi nhà có thể tích hợp garage, sân vườn nhỏ hoặc không gian kinh doanh phía trước, rất lý tưởng cho các gia đình kết hợp sống và buôn bán.
Xem thêm: Mẫu nhà 2 tầng đẹp

Nhược điểm
Tuy vậy, kiểu nhà 12m x 8m cũng có một số hạn chế. Chiều sâu ngắn đòi hỏi việc bố trí công năng cần được tính toán cẩn thận để tránh cảm giác “cụt” hoặc thiếu chiều sâu thị giác. Nếu không khéo léo trong thiết kế nội thất và sử dụng ánh sáng, ngôi nhà có thể bị chia cắt không gian, mất sự liên kết giữa các khu vực. Do đó, việc chọn lựa kiến trúc sư có kinh nghiệm để tối ưu hóa diện tích là rất quan trọng.

Một số mẫu nhà kiểu dáng mặt tiền 12m sâu 8m theo xu hướng năm 2025
Vào năm 2025, những ngôi nhà mặt tiền 12m sâu 8m đang dần nổi bật với phong cách tối giản, thoáng đãng và hài hòa với thiên nhiên. Nhiều mẫu thiết kế kết hợp kính cường lực, lam gỗ và tông màu trầm để mang lại vẻ hiện đại, đẳng cấp.































Bản vẽ công năng cho nhà có mặt tiền 12m và sâu 8m
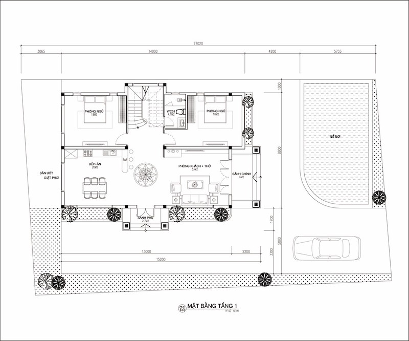
Thiết kế nhà mặt tiền 12m sâu 8m gồm 1 tầng
Ngôi nhà phù hợp cho gia đình nhỏ, thường gồm phòng khách, bếp kiêm phòng ăn, 2–3 phòng ngủ và sân vườn. Thiết kế chú trọng không gian mở, cửa kính lớn kết nối với thiên nhiên, giúp nhà luôn ngập tràn ánh sáng.
Tìm hiểu thêm: thiết kế nhà rộng 7m dài 15m

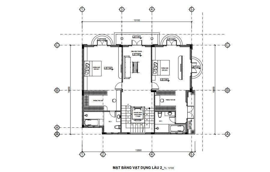
Thiết kế nhà mặt tiền 12m sâu 8m với 2 tầng
Nhà 2 tầng có tầng trệt dành cho sinh hoạt chung, tầng trên bố trí phòng ngủ và khu làm việc. Phong cách này thích hợp cho gia đình trẻ cần sự riêng tư mà vẫn có được không gian rộng rãi. Có thể kết hợp ban công và sân thượng trồng cây xanh để tạo sự gần gũi với thiên nhiên.

Bản vẽ nhà 3 tầng mặt tiền 12m, sâu 8m
Thiết kế ba tầng tối ưu cho gia đình nhiều thế hệ. Tầng trệt dành cho sinh hoạt chung, tầng hai và ba là khu vực nghỉ ngơi. Tầng thượng có thể bố trí làm sân phơi hay trồng tiểu cảnh. Công năng được bố trí hợp lý, tạo sự tiện dụng thoải mái.
Phong cách thiết kế cho nhà mặt tiền 12m sâu 8m
Thiết kế phong cách hiện đại cho nhà mặt tiền 12m sâu 8m
Phong cách hiện đại chú trọng vào hình khối vuông vức, các mảng kính lớn và gam màu trung tính. Thiết kế ưu tiên ánh sáng tự nhiên và không gian mở, thích hợp cho gia đình trẻ ưa chuộng sự tinh tế, tiện nghi.





Thiết kế phong cách Tân Cổ Điển cho nhà mặt tiền 12m sâu 8m
Để tạo thêm vẻ lộng lẫy, phong cách Tân Cổ Điển là lựa chọn lý tưởng. Những chi tiết phào chỉ nhẹ nhàng, cột trụ đối xứng và tone màu trắng kem giúp ngôi nhà toát lên vẻ đẳng cấp, thích hợp cho gia chủ yêu thích thẩm mỹ cổ điển không phô trương.
Xem thêm: mẫu nhà 6×15 2 tầng



Thiết kế nhà mặt tiền 12m sâu 8m phong cách Á Đông
Phong cách Á Đông tôn vinh sự cân bằng giữa con người và thiên nhiên. Thiết kế ưu tiên chất liệu tự nhiên như gỗ, tre, đá cùng bố cục mở. Các chi tiết tinh tế tạo cảm giác ấm cúng, yên bình, phù hợp với những ai yêu thích sự tĩnh lặng.


Có thể bạn quan tâm: mẫu nhà 6m x 18m
Thiết kế nội thất cho nhà mặt tiền 12m sâu 8m với nhiều phong cách độc đáo
Phòng Khách
Phòng khách nên được thiết kế mở, liên kết với bếp – ăn để tạo chiều sâu cho không gian. Sử dụng gam màu sáng, kết hợp ánh sáng tự nhiên giúp căn phòng thêm sang trọng và hiện đại.

Phòng Ngủ
Phòng ngủ bố trí để đón gió, sử dụng nội thất gọn gàng, màu sắc nhẹ nhàng. Tích hợp tủ âm tường và rèm cản sáng để tối ưu diện tích, mang đến cảm giác thư thái sau một ngày dài.

Khu vực bếp – ăn
Bếp và bàn ăn có thể đặt cạnh phòng khách, dùng quầy bar nhỏ để ngăn cách tinh tế. Thiết kế đảm bảo thông gió tốt, tạo không gian ấm cúng và thuận tiện cho sinh hoạt gia đình.

Bạn muốn biết xây nhà 1 tầng 100m2 hết bao nhiêu tiền, xem ngay tại đây.
Lời kết
Thiết kế nhà mặt tiền 12m sâu 8m là lựa chọn tuyệt vời cho gia đình mong muốn không gian sống vừa hiện đại, vừa tiện nghi. Với mặt tiền rộng, bạn có thể tự do sáng tạo theo nhiều phong cách khác nhau để phù hợp sở thích và thẩm mỹ cá nhân. Hãy chọn đơn vị thiết kế uy tín để tối ưu công năng, mang lại tổ ấm đẹp và bền vững theo thời gian.

