Nhà khung thép hiện đang là lựa chọn phổ biến của nhiều người nhờ vào các ưu điểm nổi bật. Hãy cùng NHATOREVIEW.COM khám phá chi tiết về quy trình, chi phí và các mẫu bản vẽ nhà phố khung thép dân dụng trong bài viết sau.
Nhà khung thép dân dụng là gì?
Nhà khung thép là loại công trình như nhà ở, siêu thị, bệnh viện, sử dụng kết cấu chủ yếu bằng khung thép. Bộ khung này bao gồm cột, dầm, sàn, tường, chịu toàn bộ tải trọng và truyền xuống nền móng.
Ở một số nơi, nhà phố khung thép còn được gọi là nhà tiền chế. Loại hình này hiện được chia thành nhiều kiểu như nhà khung thép 2 tầng, nhà phố khung thép 1 tầng, nhà phố khung thép mái tôn…

Ưu điểm của nhà khung thép tiền chế dân dụng
Nhà khung thép 1 tầng, 2 tầng được nhiều người ưu ái bởi rất nhiều ưu điểm nổi bật. Cụ thể như:
Thời gian thi công nhanh chóng
Việc xây dựng nhà thông thường mất từ 3-4 tháng, nhưng với nhà khung thép, thời gian có thể rút ngắn một nửa, giúp gia chủ tiết kiệm chi phí thuê nhân công, thuê nhà trong suốt quá trình xây dựng…

Kết cấu gọn
Bản vẽ nhà khung thép 2 tầng khá đơn giản, nhẹ nhàng hơn so với nhà bê tông cốt thép. Sống trong những căn nhà này, bạn sẽ cảm thấy thoải mái, nhẹ nhàng hơn rất nhiều so với nhà thông thường.

Khả năng tạo hình đỉnh cao
Khi chọn dựng công trình dân dụng khung thép, bạn hoàn toàn có thể thiết kế theo ý tưởng. Loại nhà này có độ bền của thép vượt trội, đặc biệt về khả năng uốn cong.
Trong bối cảnh dịch Covid-19, nhà khung thép tiền chế được dùng để xây bệnh viện dã chiến nhờ vào khả năng thi công nhanh, dễ tháo lắp, di chuyển khi cần.

Tiết kiệm chi phí
Xây dựng nhà khung thép có chi phí thấp hơn đáng kể so với nhà bê tông cốt thép. Đây là lựa chọn phổ biến của các chủ cà phê, nhà hàng, cửa hàng thời trang…

Tóm lại, nhờ những ưu điểm trên, nhà khung thép dân dụng trở nên phổ biến hơn bao giờ hết. Hãy cùng Nhatoreview tiếp tục tìm hiểu về quy trình và chi phí xây dựng mẫu nhà này.
Xem thêm: Hơn 20 Mẫu Nhà Tiền Chế Cấp 4 Hiện Đại và Kinh Tế
Quy trình xây dựng nhà khung thép dân dụng
Bước 1: Thiết kế bản vẽ nhà khung thép đẹp
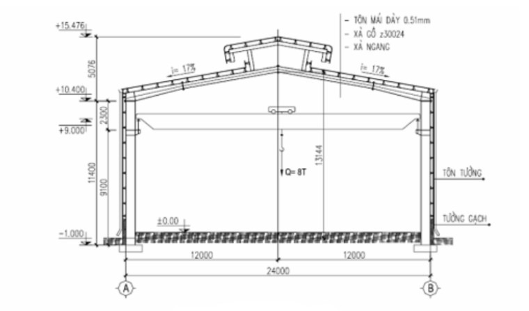
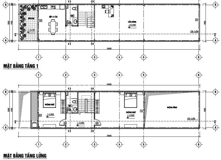
Trước khi xây dựng, cần xin bản vẽ nhà khung thép 2 tầng hoặc bản vẽ theo số tầng cụ thể. Bản vẽ gồm các phần kiến trúc, kết cấu và hệ thống điện nước:
- Bố trí mặt bằng phù hợp với sơ đồ hiện tại và khung thép để dễ dàng mở rộng hệ thống kèo thép trong tương lai.
- Thiết kế kết cấu chính để khung thép chịu lực tối ưu nhất.
- Mặc dù thiết kế theo yêu cầu của chủ nhà, nhưng cần đảm bảo sử dụng tài liệu thiết kế nhà thép tiền chế và bản vẽ thi công đầy đủ các yếu tố và chỉ tiêu kỹ thuật.
- Vật liệu và chi tiết cấu tạo cần đáp ứng các tiêu chuẩn phù hợp, đồng thời tiết kiệm tối đa chi phí cho chủ đầu tư mà vẫn đảm bảo chất lượng và an toàn cho nhà khung thép dân dụng.



Có thể bạn muốn xem thêm: mẫu nhà tiền chế đẹp
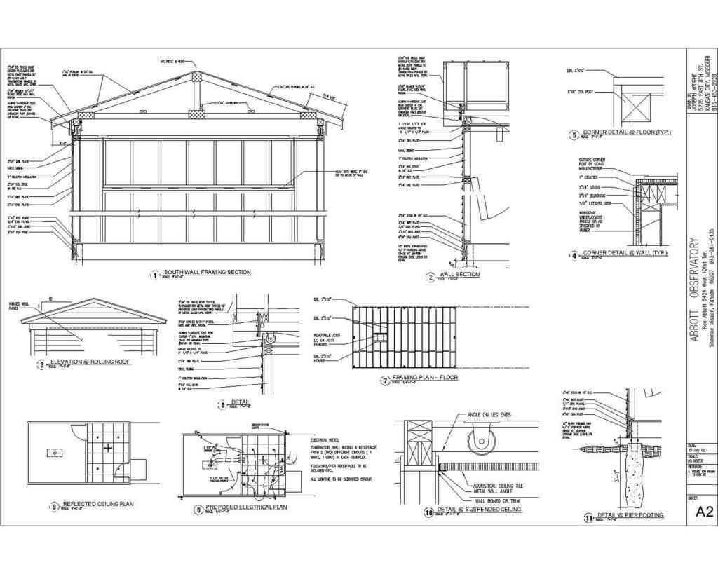
Bước 2: Gia công cấu kiện
Gia công các cấu kiện thép như: dầm, cột, xà gồ, sàn deck,… tại nhà xưởng. Quy trình gồm: cắt thép, gia công bản mã đục lỗ liên kết, đưa vào máy ráp thành cấu kiện hoàn chỉnh nhờ mối hàn tạm.
Hàn nắn bằng động cơ thủy lực để kết nối cấu kiện thành khối đồng nhất, sau đó ráp bản mã, vệ sinh và sơn phủ.

Bước 3: Lắp dựng nhà khung thép
Để hoàn thiện nhà khung thép tiền chế, hãy thực hiện quy trình 10 bước: chuẩn bị lắp ghép, lắp dựng cột, dựng kèo, xà gồ và giằng, lắp đặt khung kèo và xà gồ, dựng kèo đầu hồi, hoàn thiện xà gồ và chống xà gồ, kéo tôn mái, lợp tôn và cuối cùng là lắp dựng vách bao che và hoàn thiện.

Chi phí xây dựng nhà theo bản vẽ nhà khung thép
Bên cạnh bản vẽ nhà khung thép dân dụng và quy trình thi công, chi phí luôn là vấn đề được quan tâm hàng đầu. Xây nhà khung thép kết hợp tường và sàn vật liệu nhẹ chắc chắn sẽ tiết kiệm hơn đáng kể so với xây nhà bê tông truyền thống.
Dưới đây, Nhatoreview liệt kê một số chi phí xây dựng nhằm giải đáp thắc mắc nhà khung thép 2 tầng giá bao nhiêu để bạn đọc tham khảo:
-
Giá thi công khung thép tiền chế tính bằng khối lượng thép x đơn giá (Giá có thể khác nhau tùy theo chiều cao, độ rộng, yêu cầu kỹ thuật khác).
-
Sàn bê tông nhẹ có giá thi công trọn gói 620.000VNĐ/m2 (Sàn tầng 2 dùng dầm P113, mỗi tầng cao thêm cộng 20.000VNĐ/m2).
-
Tấm bê tông nhẹ xây tường được thi công trọn gói với giá 580.000VNĐ/m2.
Lưu ý: Những báo giá này chỉ mang tính tham khảo sơ bộ. Giá xây dựng có thể điều chỉnh dựa vào thực tế công trình.
Trên đây là thông tin về nhà khung thép là gì và những đặc điểm, tính chất của loại nhà này. Hãy cùng Nhatoreview tham khảo thêm những kiến thức hữu ích về nhà đẹp và đừng quên chia sẻ nếu thấy thông tin hữu ích nhé!
Tham khảo thêm:



