Nếu bạn đang ấp ủ ý định xây một ngôi nhà ấm áp mà vẫn giữ được tính tiện nghi và hiện đại, thì mẫu thiết kế nhà ngang 6m dài 15m là lựa chọn không thể tuyệt vời hơn. Mẫu nhà đẹp này mang đến đa dạng phong cách kiến trúc phù hợp với sở thích của nhiều người, đảm bảo sẽ tạo ra không gian sống trọn vẹn cho gia đình bạn. Khám phá ngay các mẫu thiết kế nhà ngang 6m dài 15m độc đáo, ấn tượng trong bài viết sau đây của nhàto review!
Phối cảnh mặt tiền mẫu thiết kế nhà ngang 6m dài 15m hiện đại
Mẫu thiết kế nhà mặt tiền 6m dài 15m mang phong cách tối giản, phối hợp với gam màu trắng sáng biểu thị sự tinh tế, giúp ngôi nhà nổi bật vẻ đẹp thuần khiết và nhẹ nhàng.
Hệ cửa kính chắc chắn, sang trọng cùng với tầng lầu trồng cây xanh giúp điều hòa không khí, mang lại không gian sống thoải mái, trong lành và tạo ấn tượng thị giác. Thiết kế mái bằng hiện đại kết hợp với góc ban công nhỏ để đón ánh sáng và gió trời. Đây là một mẫu nhà phố có thiết kế giản dị, được nhiều người lựa chọn nhờ tính kinh tế và sự nhẹ nhàng mà nó mang lại.

Bản vẽ mặt bằng mẫu thiết kế nhà ngang 6m dài 15m đẹp
Dưới đây là bản vẽ công năng thiết kế nhà ngang 6m dài 15m để bạn tham khảo:
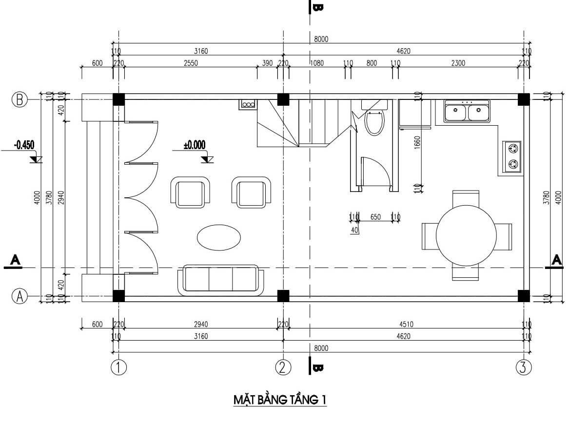
Mặt bằng công năng tầng trệt
Tầng trệt được thiết kế bao gồm: Gara, phòng khách, phòng bếp, phòng ăn, một nhà vệ sinh và khoảng sân sau. Phía sau là khu vực nhà vệ sinh, kèm theo đó là khoảng sân sau thuận lợi cho việc phơi đồ rất hợp lý.
Mặt bằng công năng lầu 1
Lầu 1 của thiết kế nhà ngang 6m dài 15m gồm: 2 phòng ngủ, 1 phòng sinh hoạt chung, 1 phòng vệ sinh, và 1 sân thượng. Đặc biệt, 2 phòng ngủ rộng rãi có thể bố trí thêm nội thất như bàn làm việc hay tủ quần áo, tận dụng triệt để không gian. Điểm nhấn là sân thượng tuy nhỏ nhưng có khả năng đón ánh sáng và không khí tự nhiên vào ngôi nhà. Phòng sinh hoạt chung ở giữa nhà, mang lại sự tiện lợi cho tất cả thành viên và giúp gắn kết tình cảm gia đình tốt hơn.

Tham khảo một số mẫu thiết kế đẹp:
Ngất ngây trước nội thất mẫu thiết kế nhà ngang 6m dài 15m đẹp
Chắc chắn bạn sẽ bị cuốn hút ngay lần đầu khi ngắm nhìn những mẫu thiết kế nội thất nhà ngang 6m dài 15m sau đây.
Nội thất phòng khách
Phòng khách được bố trí nội thất một cách khoa học và gọn gàng. Sử dụng gam màu trắng làm chủ đạo giúp tôn lên sự nổi bật của các vật dụng khác như ghế sofa vàng hoặc nâu đậm. Khi kết hợp màu sắc hài hòa, sẽ tạo ra một không gian năng động, trẻ trung phản ánh cá tính và gu thẩm mỹ của chủ nhân. Có thể phối thêm điểm nhấn cho căn phòng như: Trồng cây xanh tạo không khí dễ chịu, gắn tranh treo tường, và thảm trải sàn họa tiết,…

Nội thất phòng ăn
Phòng ăn tiện nghi nên chọn bộ bàn ghế bọc đệm với khung gỗ mộc mạc, mang lại sự sang trọng, tinh tế mà vẫn êm ái thoải mái khi sử dụng. Phần tường sơn màu tối kết hợp với tranh họa tiết độc đáo màu trắng làm cho không gian phòng bếp thêm ấm cúng.

Nội thất phòng ngủ
Phòng ngủ nên ưu tiên chất liệu từ gỗ, tuy đơn giản nhưng mang đến sự sang trọng và ấm áp. Thiết kế phòng ngủ khép kín với việc trang trí cây xanh giúp điều hòa không khí. Bạn cũng có thể thêm tranh nghệ thuật để tạo không gian phòng ngủ tinh tế, thư giãn hơn.

Lưu ý, khi thiết kế phòng ngủ cho trẻ nên trang trí màu sắc theo sở thích và giới tính của trẻ. Trần nhà có thể lắp đèn âm trần với màu sắc nhẹ nhàng. Các đồ nội thất bố trí khoa học, gọn gàng để phòng ngủ rộng rãi, sạch sẽ và tạo không gian học tập, vui chơi thoải mái cho trẻ.mái nhất.
Nội thất phòng thờ
Phòng thờ được trang hoàng bằng các món đồ nội thất gỗ sang trọng, thể hiện đẳng cấp của chủ nhà. Bố trí hai chậu cây hai bên tạo ấn tượng thị giác và mang lại không khí trang nghiêm cho không gian nơi đây. Nền nhà được lót bằng gỗ một cách tinh tế, dễ dàng cho việc vệ sinh.

Nội thất phòng tắm
Trong thiết kế nhà ngang 6m dài 15m, nội thất phòng tắm cần đảm bảo cả sự sang trọng và tiện nghi. Thiết bị hiện đại, tự động mang lại sự thoải mái tối ưu. Khu vực tắm và vệ sinh được ngăn cách bằng kính để hạn chế nước bắn, giảm nguy cơ trơn trượt.

Khám phá 15+ mẫu thiết kế nhà ngang 6m dài 15m đầy ấn tượng
Tạo hình nhà 6x15m với giếng trời
Việc thiết kế nhà ngang 6m dài 15m với giếng trời đang được nhiều gia đình ưa thích. Bổ sung giếng trời giúp không gian sống tận dụng tối đa ánh sáng tự nhiên, đồng thời tạo sự thoáng đãng, tiết kiệm năng lượng. Giếng trời thường được đặt trên cầu thang hoặc ở một góc của ngôi nhà.

Thiết kế nhà diện tích 6x15m với không gian xanh
Cây xanh không chỉ điều hòa không khí mà còn mang đến sự cân bằng tâm lý, truyền cảm hứng tích cực cho cuộc sống. Do đó, trong thiết kế nhà ngang 6m dài 15m, người ta thường tinh tế bố trí thêm cây xanh ở ban công, sân thượng hoặc đơn giản chỉ là một vài chậu cây nhỏ xinh trong nhà.
Có thể bạn sẽ thích: 11 Mẫu Nhà Ống 3 Tầng Mặt Tiền 6m Đẹp Hiện Đại Kèm Bản Vẽ Chi Tiết
Thiết kế nhà 6x15m hiện đại và tinh tế
Dù diện tích 90m2 không phải là quá lớn, nhưng với ngân sách đủ, bạn có thể chọn những thiết kế hiện đại, sang trọng và đầy đủ tiện nghi. Các vật liệu cao cấp như kính cường lực, gỗ tự nhiên, và đá tự nhiên là những lựa chọn hàng đầu. Nếu không gian cho phép, hãy cân nhắc thêm tiểu cảnh hòn non bộ hoặc bể cá trước nhà.

Lưu ý khi thiết kế nhà ngang 6m dài 15m
Trước khi tiến hành thi công, giai đoạn thiết kế nhà ngang 6m dài 15m cần được thực hiện cẩn thận để giảm thiểu sai sót và đảm bảo mọi bước sau được thuận lợi. Một số điểm cần chú ý là:
- Xác định phong cách thiết kế mong muốn để lên kế hoạch bố trí nội thất, lựa chọn màu sắc hài hòa.
- Đánh giá nhu cầu sử dụng của các thành viên trong gia đình để phân chia không gian hợp lý.
- Chú trọng đến yếu tố phong thủy nhằm mang lại may mắn, thuận lợi.
- Ưu tiên chọn nội thất đơn giản, đa năng để tối ưu hóa không gian sống.
- Đặt kế hoạch ngân sách từ đầu và kiểm soát chi tiêu một cách chặt chẽ.
- Lựa chọn đơn vị thiết kế và thi công uy tín.
Với thông tin và mẫu thiết kế nhà ngang 6m dài 15m mà chúng tôi cung cấp, chắc chắn sẽ là một nguồn cảm hứng tuyệt vời cho dự án xây dựng của bạn. Rất cảm ơn bạn đã theo dõi bài viết của Nhà to review.
Nếu bạn yêu thích sự tối giản, tinh tế và tiện nghi, hãy khám phá thêm những ý tưởng nhà đẹp kiểu hiện đại phù hợp với xu hướng sống hiện đại ngày nay.

