Khát khao có một không gian sống hiện đại và tiện nghi là mong mỏi của rất nhiều gia đình. Những thiết kế nhà phố 5×20m 2 tầng đang trở thành lựa chọn phổ biến và hợp lý, mang lại sự rộng rãi và thoải mái cho không gian sống. Hãy tham khảo bộ sưu tập mẫu bản vẽ cad nhà phố 2 tầng 5×20 đẹp, hiện đại chi tiết từ nhatoreview.com. Đồng thời, tìm hiểu cách tính chi phí thiết kế và xây dựng nhà 2 tầng 5x20m để giúp bạn lập dự toán hiệu quả nhất.
TOP mẫu bản vẽ cad nhà phố 2 tầng 5×20
Với diện tích 5x20m, nhà 2 tầng là lựa chọn phổ biến, phù hợp cho gia đình 2-3 thế hệ. Giải pháp thiết kế này tạo ra một không gian sống tiện nghi, đa dạng phong cách, thể hiện rõ tính cá nhân và tối ưu hóa chi phí.
Mẫu thiết kế nhà 100m2 5×20 2 tầng đẹp
Ngôi nhà 2 tầng này thu hút thị giác nhờ không gian xanh tươi từ sân vườn trong phòng khách và bếp thoáng đãng cùng giếng trời. Thiết kế này tiết kiệm năng lượng, mang lại ánh sáng và gió tự nhiên cho ngôi nhà 5x20m. Gia đình có thể tận hưởng những phút giây thư giãn, đọc sách và cảm nhận sự yên bình tại đây.

Mẫu thiết kế nhà 100m2 5×20 2 tầng đẹp

Khu vực giếng trời vừa giúp lấy sáng, đón gió tự nhiên, vừa mang lại cảm giác thư thái cho gia chủ.
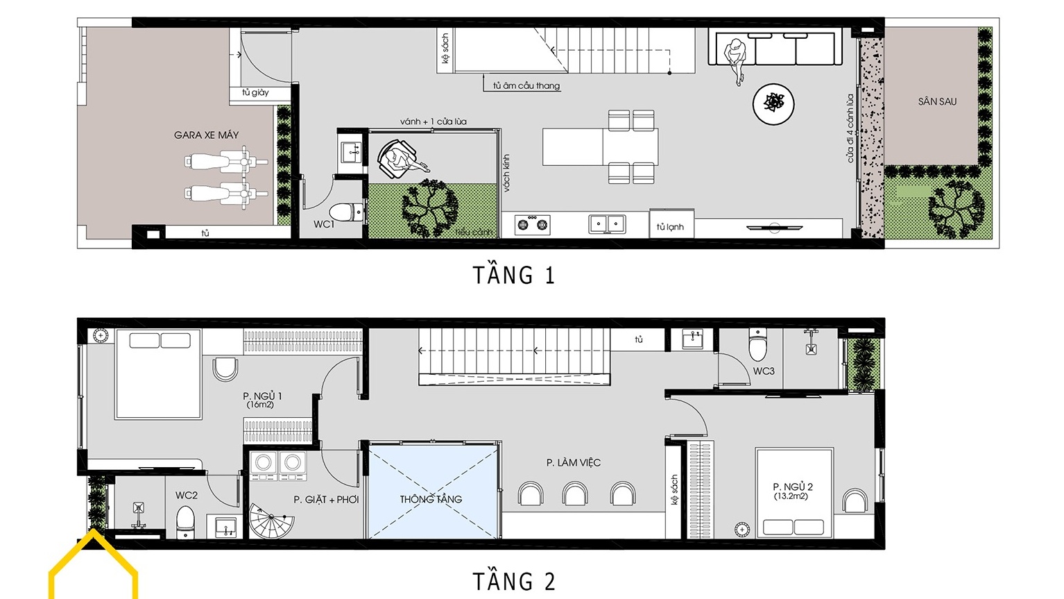
Bản vẽ mặt bằng công năng chi tiết mẫu nhà ống 2 tầng 5x20m
Mẫu thiết kế nhà 5x20m 2 tầng hiện đại và đẹp
Thiết kế nhà 5x20m 2 tầng nổi bật với mặt tiền cao, điểm nhấn là những đường cong uyển chuyển. Nội thất bên trong theo phong cách hiện đại, tối giản. Chất liệu gỗ được ưu ái để tạo sự sang trọng và ấm cúng cho không gian.

Mẫu thiết kế nhà 5x20m 2 tầng hiện đại và đẹp
Tầng 1 chủ yếu là không gian chung cho gia đình, tầng 2 dành cho sự riêng tư với 3 phòng ngủ được sắp xếp logic, tạo sự thoáng đãng và tiện lợi.

Thiết kế phòng bếp ăn nhà 5x20m 2 tầng mang đậm phong cách hiện đại và thanh lịch

Chi tiết bản vẽ mặt bằng công năng nhà 2 tầng diện tích 5x20m
Mẫu thiết kế nhà 2 tầng 3 phòng ngủ 5x20m

Mẫu thiết kế nhà 2 tầng 3 phòng ngủ 5x20m
Thiết kế có giếng trời giữa phòng khách và bếp giúp lấy sáng và lưu thông không khí tối ưu giữa 2 tầng.
Sân vườn nhỏ làm phòng ngủ tầng 1 thêm thoáng. Phòng ngủ ở tầng 2 với cửa sổ và ban công tối ưu hoá ánh sáng và gió.
Màu sắc tươi sáng như trắng, xám được sử dụng để tạo cảm giác rộng rãi và mát mẻ. Tối đa hóa không gian bằng cách tận dụng gầm cầu thang làm kho cũng như hạn chế vách ngăn, tăng thẩm mỹ và tiện ích.

Mẫu thiết kế nhà 2 tầng 3 phòng ngủ 5x20m 2

Bản vẽ mẫu nhà 2 tầng 5x20m với 3 phòng ngủ tiện nghi
Bên cạnh nhà 5x20m, kiểu nhà 4×20 đẹp cũng là lựa chọn phổ biến tại các khu đô thị, với thiết kế tinh gọn, đáp ứng đầy đủ công năng cho gia đình hiện đại.
Mẫu thiết kế nhà 2 tầng 5x20m có gara
Ngôi nhà trên lô đất 5x20m mang phong cách hiện đại kết hợp với sự tối giản của Scandinavian, xanh mát và tiện nghi. Công năng được bố trí theo cuộc sống sinh hoạt, đảm bảo sự kết nối và riêng tư.
- Tầng 1 có sân trước để ô tô, tiếp theo là phòng khách liền kề bếp tạo không gian thoáng và tối ưu diện tích. Cuối cùng là phòng ngủ và vệ sinh với sân vườn nhỏ ở sau.
- Tầng 2 gồm 1 phòng ngủ master (với WC và phòng thay đồ), 1 phòng ngủ cho con, vệ sinh và phòng kho.

Mẫu thiết kế nhà 2 tầng 5x20m có gara

Nội thất mang phong cách tối giản, hiện đại

Bản vẽ thiết kế nhà 5x20m 2 tầng có gara
Mẫu nhà 2 tầng 1 tum 5x20m đẹp và hiện đại
Mẫu thiết kế nhà 2 tầng 1 tum hiện đại, kết hợp tối giản cho không gian sống thoải mái và tiện nghi. Ngôi nhà ấn tượng với ngoại thất mềm mại và nội thất tinh tế, biểu hiện lối sống yên bình. Công năng đáp ứng nhu cầu sinh hoạt gia đình: tầng 1 dùng để sinh hoạt chung, phòng ngủ phía sau vẫn đảm bảo riêng tư và thông thoáng. Tầng 2 có 2 phòng ngủ và phòng sinh hoạt chung riêng, còn tầng 3 là không gian thờ cúng, khu giặt phơi và sân thượng. Tổng thể, nhà 2 tầng 1 tum hiện đại, tối giản mang lại không gian sống lý tưởng.tế và tiện nghi cho gia đình.

Mẫu nhà 2 tầng 1 tum 5x20m đẹp và hiện đại

Phòng khách nhà 2 tầng 1 tum với nội thất tiện nghi

Khu vực phòng bếp nhà 2 tầng 1 tum 5x20m đẹp
Mẫu thiết kế nhà ống 5×20 2 tầng 1 tum đẹp
Với thiết kế tối ưu và không gian hiện đại, căn nhà 2 tầng, 1 tum rộng 100m2 hiện đại trở thành nơi lưu giữ những kỷ niệm đẹp và tạo ra không gian lý tưởng cho gia đình ba thế hệ. Mỗi thành viên đều có thể đắm chìm trong sự ấm cúng, hạnh phúc và tình yêu thương.

Mẫu thiết kế nhà ống 5×20 2 tầng 1 tum đẹp

Phòng khách nhà ống 5×20 2 tầng 1 tum đẹp

Bản vẽ bố trí công năng nhà ống 5×20 2 tầng 1 tum đẹp
Cách tính chi phí thiết kế nhà 2 tầng 5x20m
Bạn có thể tham khảo cách tính chi phí thiết kế cho nhà kích thước 5x20m với các công năng sau:
- Tầng 1: phòng khách, bếp, 1 phòng ngủ + 1 nhà vệ sinh
- Tầng 2: phòng thờ, 2 phòng ngủ + 2 wc + khu giặt phơi
Vậy diện tích dự tính của tầng 1 là 90m2 và tầng 2 là 90m2, tổng diện tích của hai tầng là 180m2.

Cách tính: Diện tích sàn 2 tầng (180m2) x thiết kế kiến trúc (180.000 đồng) = 32,400.000 đồng
Lưu ý:
- Diện tích sàn dựa vào công năng của căn nhà.
- Chi phí thiết kế không bao gồm diện tích sân vườn.
Diện tích nhà 5x20m có thể được thiết kế theo nhiều phương án khác nhau, tùy vào sở thích của gia chủ. Với giải pháp thông minh, thiết kế nhà 5x20m 2 tầng phong cách hiện đại và tối giản vẫn đáp ứng đủ không gian và tiện ích. Ngoài ra, bạn có thể khám phá thêm những kiểu nhà 2 tầng đẹp để lựa chọn mẫu phù hợp với nhu cầu và sở thích riêng.




