Với diện tích đất 6×20 phù hợp với nhiều gia đình đa thế hệ đồng thời việc sắp xếp các công năng vô cùng thuận tiện và bố trí sân vườn lấy sáng và gió tốt hơn. Dưới đây là các mẫu thiết kế nhà 6×20 đẹp kiến trúc 2 tầng, 3 tầng, 4 tầng do NHA TO REVIEW sưu tầm. Mời bạn cùng chiêm ngưỡng và có thêm ý tưởng cho ngôi nhà của mình nhé!
Mẫu thiết kế nhà 6x20m hiện đại
Mẫu thiết kế nhà đẹp 6x20m hiện đại với gam màu xám trung tính, đường nét dứt khóa. Đặc biệt, với bề ngang 6m ngôi nhà bố trí tiểu cảnh giữa phòng khách và bếp đồng thời gia chủ bố trí thêm 2 lối đi bên hông nhà giúp đón nắng gió và kết nối thiên nhiên.



Mẫu thiết kế nhà đẹp 6×20 3 tầng 1 tum hiện đại
Phong cách hiện đại đang thịnh hành với việc sử dụng các đường nét mạnh mẽ và khối hình đơn giản. Mẫu thiết kế nhà 6×20 đẹp kiến trúc nhà 3 tầng 1 tum mang lại không gian sống đa năng và tiện nghi, đồng thời cũng tạo nên điểm nhấn cho kiến trúc. Tầng tum được thiết kế như một điểm nhấn độc đáo, thích hợp để làm sân vườn trên cao, phòng thể thao hoặc phòng đọc sách tư nhân.



Mẫu thiết kế nhà 6×20 2 tầng đẹp
Mẫu nhà 2 tầng là lựa chọn hoàn hảo cho những ai yêu thích sự đơn giản nhưng không kém phần hiện đại và tiện nghi. Mẫu thiết kế nhà 6×20 2 tầng này thường bao gồm các phòng chức năng cơ bản như phòng khách, phòng ăn, phòng ngủ, và một khu vườn nhỏ xinh.



Nếu bạn đang tìm kiếm một phương án thiết kế linh hoạt hơn thì có thể tham khảo thêm các mẫu nhà ống chữ L ấn tượng được Nha To Review tổng hợp tại https://nhatoreview.com/40-mau-nha-ong-chu-l-dep-dang-tham-khao-2025
Mẫu thiết kế nhà 6×20 3 tầng đẹp
Nhà 3 tầng thường được nhiều gia chủ lựa chọn vì mẫu nhà này giúp tận dụng tối đa không gian sống. Nhà mặt tiền 6m thiết kế 3 tầng hiện đại và tiện nghi, mỗi tầng có thể được bố trí hợp lý để phục vụ nhiều mục đích sử dụng khác nhau: từ phòng khách, phòng bếp, cho đến phòng ngủ và khu vực thư giãn.



Mẫu thiết kế nhà phố 6×20 đẹp
Nội thất của ngôi nhà được gia chủ đầu tư với các chất liệu hiện đại tôn lên sự sang trọng cho không gian.



Mẫu thiết kế nhà 6x20m 4 phòng ngủ
Mẫu thiết kế nhà 6x20m 4 phòng ngủ tiện nghi và được bố trí ở các tầng và đảm bảo không gian sáng thoáng, thoải mái sử dụng. Ngoài ra, với mặt tiền ngang 6m, ngôi nhà được thiết kế với 2 lối đi gồm 1 cổng phụ cho đi bộ và xe máy, 1 cổng cửa cuốn là lối đi cho xe ô tô.



Mẫu thiết kế nhà 6×20 hiện đại 2 mặt tiền
Mẫu thiết kế nhà 6x20m kiến trúc 3 tầng hiện đại với tổng diện tích xây dựng 309m2 bao gồm công năng phòng khách, phòng bếp ăn, 04 phòng ngủ, phòng thay đồ, phòng sinh hoạt chung, 02 wc, phòng thờ, phòng kho, sân thượng, phòng giặt mang đến không gian tiện nghi.



Mẫu thiết kế nhà đẹp 6×20 3 phòng ngủ
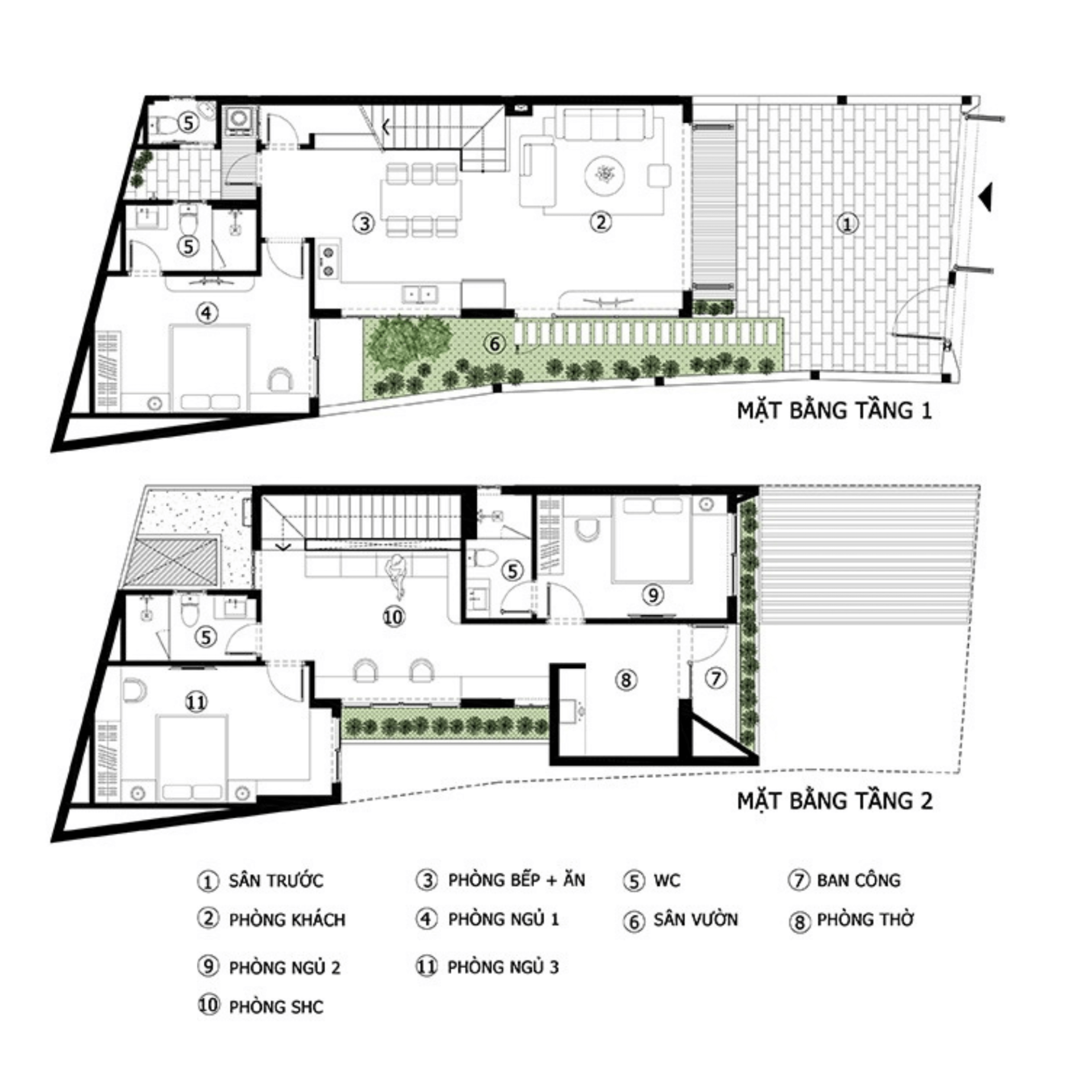
Nằm trên lô đất xéo, mẫu thiết kế nhà 6x20m đẹp được thiết kế thành một ngôi nhà 2 tầng rộng rãi có sân trước và một khoảng sân vườn chạy dọc bên hông nhà. Bên cạnh đó, công năng chính – phụ của ngôi nhà bố trí linh hoạt trong đó: tầng 1 gồm phòng khách, phòng bếp ăn, 01 phòng ngủ, 02 wc và tầng 2 gồm có 02 phòng ngủ, 2 wc, phòng sinh hoạt chung, phòng thờ, ban công.



Trên đây là những mẫu thiết kế nhà 6x20m hiện đại, đa dạng từ 2 đến 4 tầng, phù hợp với nhu cầu của nhiều gia đình. Hy vọng qua những gợi ý trên, bạn sẽ tìm được ý tưởng mặt bằng nhà 6x20m ưng ý để xây dựng tổ ấm tiện nghi, thoáng sáng và hài hòa với thiên nhiên. Đừng quên theo dõi Nha To Review để cập nhật thêm nhiều mẫu thiết kế nhà đẹp và xu hướng mới nhất nhé!
Và nếu bạn đang tìm kiếm những mẫu thiết kế nhà đẹp và hiện đại nhất hiện nay, hãy tham khảo bài viết “Xu Hướng Nhà Đẹp 2025: Tuyển Tập 999 Mẫu Thiết Kế Hiện Đại” để chiêm ngưỡng những xu hướng mới nhất và lựa chọn phù hợp cho không gian sống của mình.



