Thiết kế nhà mặt tiền 7m sâu 10m là kiểu nhà phố phổ biến, đòi hỏi sự tính toán kỹ lưỡng để tối ưu hóa không gian 70m2. Làm thế nào để căn nhà không bị bí bách, vẫn đảm bảo đủ công năng và yếu tố thẩm mỹ? Bài viết này Trang nhatoreview.com sẽ chia sẻ những bí quyết và ý tưởng thiết kế độc đáo từ chuyên gia, giúp bạn kiến tạo nên tổ ấm hoàn hảo, tiện nghi.
Tổng hợp các mẫu nhà phố mặt tiền 7m đẹp, hiện đại
Mẫu nhà ống mặt tiền 7m 1 tầng

Dự trù chi phí xây nhà 1 tầng 60m2 hết bao nhiêu tiền? Cập nhật 2025, xem ngay!
Mẫu nhà ống mặt tiền 7m 2 tầng

Mẫu nhà ống mặt tiền 7m 3 tầng

Xem thêm: nhà ống 3 tầng 5x15m 4 phòng ngủ
Mẫu nhà ống mặt tiền 7m 4 tầng

Thiết kế nhà phố mặt tiền 7m hiện đại

Nhà ống mặt tiền 7m phong cách tân cổ điển hiện đại

Bản vẽ thiết kế nhà rộng 7m dài 9m

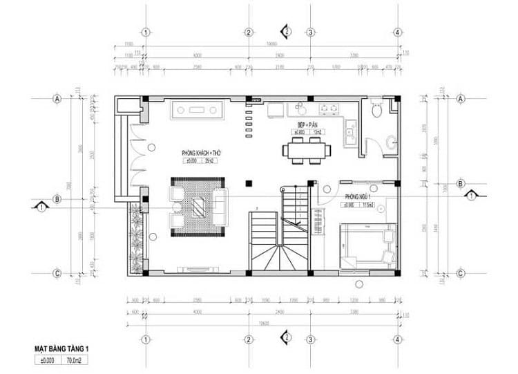
Bản vẽ thiết kế nhà mặt tiền 7m sâu 10m

Bản vẽ thiết kế nhà mặt tiền 7m sâu 12m

Bản vẽ thiết kế nhà mặt tiền 7m sâu 15m

Thiết kế nhà phố chiều ngang 7m dài 20m

Mẫu nhà phố mặt tiền 7m mái bằng hiện đại

Đầu tư xây nhà 2 tầng 40m2 hết bao nhiêu tiền, chi tiết trong bài viết: https://nhatoreview.com/xay-nha-2-tang-40m2-het-bao-nhieu-tien
Thiết kế nhà ống mái thái mặt tiền 7m

Mẫu nhà ống mái nhật mặt tiền 7m

Mẫu nhà phố mái lệch mặt tiền 7m hiện đại

Tổng hợp những mẫu nhà đẹp nhất tiết kiệm chi phí, tối ưu không gian ở
Thiết kế nhà ống kết hợp kinh doanh mặt tiền 7m

Các loại hình nhà phố mặt tiền 7m hiện đại phổ biến
Thiết kế nhà phố dành cho vợ chồng trẻ
Xu hướng chung của các gia đình trẻ hiện nay là muốn có một không gian riêng để sinh hoạt tự do, thoải mái, độc lập. Với mức chi phí vừa phải, nhà ống mặt tiền 7m phong cách hiện đại sẽ đáp ứng được đầy đủ những yêu cầu này. Mặt tiền 7m rộng rãi, thông thoáng giúp căn nhà hứng sáng, thông gió hiệu quả; đem đến một không gian sống tiện nghi, thư giãn cho gia chủ. Điều này đặc biệt đáng quý trong các thành phố đô thị đông đúc, chật chội. 
Mẫu nhà phố mặt tiền 7m kết hợp kinh doanh hiện đại
Nhà ống có mặt tiền 7m cũng thường được các gia đình tận dụng làm mặt bằng kinh doanh. Thiết kế mặt tiền của khu vực kinh doanh cần đảm bảo sự thu hút, nổi bật. Thông thường, chủ đầu tư sẽ ốp kính toàn bộ mặt tiền để mở rộng không gian và thuận tiện cho khách hàng quan sát bên trong cửa hàng/ showroom/ shop… Thiết kế mặt tiền thích hợp với kinh doanh cũng giúp gia tăng giá trị của căn nhà; tạo ưu thế cho gia chủ khi chuyển nhượng.

Mẫu nhà phố mặt tiền 7m hiện đại để đầu tư
Ngoài mục đích để ở, rất nhiều người còn đầu tư vào nhà đất với mục đích kinh doanh. Đây là một ngành đem lại lợi nhuận cao nhưng đồng thời cũng có rủi ro lớn. Để tránh tồn đọng vốn và giảm bớt áp lực đi vay, các nhà đầu tư cần chuyển nhượng nhà nhanh. Một căn nhà có mặt tiền 7m rộng rãi vừa dễ đầu tư để gia tăng giá trị; vừa dễ tìm kiếm, thu hút người mua. Do đó, các căn nhà ống mặt tiền 7m luôn là sản phẩm được đánh giá cao bởi nhà đầu tư. 



