Với diện tích 5x10m, việc lựa chọn mẫu nhà cấp 4 đẹp 5x10m vừa đảm bảo tính tiện nghi và thẩm mỹ là điều được nhiều gia đình ưu tiên. Kích thước này cần sự tính toán tỉ mỉ trong thiết kế để duy trì không gian thoáng đãng và đầy đủ công năng. Bài viết này NHATOREVIEW.COM sẽ giới thiệu những mẫu nhà đẹp đi cùng kinh nghiệm bố trí nội thất thông minh nhất.
Bản vẽ thiết kế, công năng nhà cấp 4 5x10m
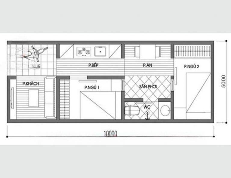
Mẫu nhà cấp 4 đẹp 5x10m dù diện tích không lớn nhưng nếu bố trí hợp lý, vẫn đáp ứng đầy đủ nhu cầu của gia đình nhỏ. Dưới đây là một bản vẽ thiết kế công năng tham khảo cho dự án này:
- Phòng khách bố trí ngay cửa chính, tạo sự tiếp cận dễ dàng và thuận tiện. Phòng rộng rãi, đủ chỗ cho nội thất cần thiết.
- Khu vực để xe đối diện phòng khách, thuận tiện ra vào mà không ảnh hưởng đến không gian chung.
- Phòng ngủ chính đặt ở giữa nhà, đối diện bếp, tạo sự riêng tư và tiện lợi di chuyển trong không gian.
- Khu bếp liền kề phòng ăn, tối ưu không gian, kết nối các thành viên khi nấu nướng và thưởng thức bữa ăn.
- Sân phơi và nhà vệ sinh đặt cuối nhà, tiện lợi sử dụng mà không ảnh hưởng đến không gian chung.
- Phòng ngủ phụ ở cuối nhà, tạo không gian yên tĩnh, lý tưởng để nghỉ ngơi.

75+ mẫu nhà cấp 4 đẹp 5x10m giá rẻ, tiện nghi, thiết kế đa dạng
NHATOREWIEW xin gửi đến bạn 75+ mẫu nhà cấp 4 đẹp 5x10m giá rẻ, hiện đại, thẩm mỹ với nhiều phong cách thiết kế sau:
Mẫu nhà cấp 4 đẹp 5x10m giá mềm
Mẫu nhà cấp 4 5x10m giá rẻ cung cấp giải pháp tiết kiệm nhưng vẫn đủ tiện nghi. Với diện tích 50m², ngôi nhà được thiết kế tận dụng không gian, lý tưởng cho gia đình nhỏ hoặc cặp đôi trẻ. Thiết kế tinh gọn mà hiện đại.

Có thể bạn quan tâm:
Mẫu nhà cấp 4 đẹp 5x10m đủ tiện lợi
Mẫu nhà cấp 4 5x10m được bố trí thông minh, tận dụng tối đa không gian, mang lại tiện nghi cho gia đình. Sắp xếp hợp lý, ngôi nhà nhỏ đáp ứng đầy đủ các chức năng như phòng khách, bếp, và phòng ngủ. Lựa chọn hoàn hảo cho những ai tìm kiếm tiện nghi trong không gian nhỏ.

Mẫu nhà cấp 4 đẹp 5x10m hai phòng ngủ
Mẫu nhà cấp 4 2 phòng ngủ 5x10m là thiết kế lý tưởng cho gia đình có 2-3 thành viên. Không gian chia hợp lý giữa khu vực chung và nghỉ ngơi, đảm bảo riêng tư và thoải mái. Kiến trúc nhỏ gọn nhưng đáp ứng đầy đủ nhu cầu sống hàng ngày.

Mẫu nhà cấp 4 đẹp 5x10m với gác lửng
Mẫu nhà cấp 4 5x10m có gác lửng là giải pháp mở rộng không gian sống hiệu quả mà không tốn thêm diện tích đất. Gác lửng có thể dùng làm phòng ngủ hoặc không gian làm việc, giúp ngôi nhà thoáng đãng và tiện nghi hơn. Đây là lựa chọn lý tưởng cho gia đình cần thêm không gian với ngân sách hạn hẹp.

Bạn đang tìm kiếm mẫu nhà cấp 4, hãy xem mẫu nhà cấp 4 đẹp tại link: https://nhatoreview.com/mau-nha-cap-4
Nhà cấp 4 có sân vườn 5x10m
Nhà cấp 4 5x10m có sân vườn tạo không gian sống xanh và thư giãn cho gia đình. Sân vườn không chỉ đem lại sự thoải mái mà còn tôn vinh vẻ đẹp của ngôi nhà. Lựa chọn hoàn hảo cho những ai yêu thiên nhiên và cần không gian cho các hoạt động ngoài trời.

Mẫu nhà cấp 4 đẹp 5x10m mái thái
Mẫu nhà cấp 4 5x10m mái thái cuốn hút với thiết kế đặc trưng mái dốc, không chỉ thoát nước hiệu quả mà còn tạo vẻ đẹp cho ngôi nhà. Mái thái còn làm cho ngôi nhà trở nên mát mẻ hơn, thích hợp với vùng khí hậu nóng. Kiểu nhà này kết hợp giữa nét truyền thống và hiện đại, đáp ứng nhu cầu sống tiện nghi.

Xem thêm: Mẫu nhà đẹp mới, TẠI ĐÂY!
Mẫu nhà cấp 4 đẹp 5x10m mái nhật
Mẫu nhà cấp 4 5x10m mái nhật được thiết kế với mái phẳng đầy tinh tế, tạo cảm giác thanh lịch và gọn gàng. Phong cách mái nhật mang đến vẻ hiện đại cho ngôi nhà, đồng thời tăng cường khả năng chịu lực hơn so với các loại mái khác. Đây là lựa chọn cho những gia đình yêu chuộng vẻ đẹp đơn giản nhưng không kém phần sang trọng.

Mẫu nhà cấp 4 đẹp 5x10m mái bằng
Mẫu nhà cấp 4 5x10m mái bằng mang đến nét hiện đại với thiết kế đơn giản, tối ưu hóa không gian. Mái bằng giúp dễ dàng bố trí thêm khu vực thư giãn hoặc sân thượng. Đây là lựa chọn hoàn hảo cho những ai yêu thích sự giản đơn và hiện đại trong thiết kế.

Mẫu nhà cấp 4 đẹp 5x10m mái lệch
Mẫu nhà cấp 4 5x10m mái lệch thu hút ánh nhìn nhờ thiết kế mái nghiêng không đối xứng, mang đến sự mới lạ. Phong cách này không chỉ làm nổi bật ngôi nhà mà còn tối ưu việc thoát nước và đón gió, tạo không gian sống thoáng đãng và hiện đại.

Dự toán chi phí xây nhà cấp 4 5x10m ở nông thôn
Theo khảo sát của IGcons, chi phí xây dựng cho mẫu nhà cấp 4 đẹp 5x10m ở nông thôn thường ít hơn so với các thành phố lớn do giá nhân công và vật liệu xây dựng ổn định. Chi phí trung bình dao động từ 380 – 505 triệu đồng. Dưới đây là bảng dự toán chi phí xây dựng nhà cấp 4 5x10m ở nông thôn mà bạn có thể tham khảo:
| Hạng mục | Chi phí (triệu đồng) |
| Phần móng | 60 – 80 |
| Phần khung | 90 – 110 |
| Phần mái | 40 – 60 |
| Phần tường | 35 – 45 |
| Phần trát | 15 – 25 |
| Phần ốp lát | 25 – 35 |
| Phần điện nước | 15 – 25 |
| Phần sơn nước | 10 – 15 |
| Nhân công | 60 – 80 |
| Chi phí khác | 15 – 25 |
| Tổng chi phí | 380 – 505 |
Lưu ý rằng chi phí có thể biến đổi dựa vào việc chọn vật liệu, thời gian xây và yêu cầu hoàn thiện. Nếu chọn vật liệu chất lượng cao hoặc xây vào mùa cao điểm, giá có thể cao hơn. Ngược lại, xây vào mùa thấp điểm có thể tiết kiệm đáng kể.

Tham khảo 35 mẫu nhà ống lệch tầng 4x15m đẹp mê li năm 2025, XEM NGAY!
Kinh nghiệm giúp tối ưu chi phí xây nhà cấp 4 đẹp 5x10m
Để tiết kiệm chi phí xây nhà cấp 4 đẹp 5x10m, bạn có thể áp dụng các phương pháp sau:
- Chọn vật liệu xây dựng phù hợp: Khi xây nhà cấp 4 5x10m ở nông thôn, chọn vật liệu là yếu tố then chốt để tối ưu chi phí. Sử dụng vật liệu địa phương như gạch, đá có thể giúp giảm chi phí vận chuyển. Lựa chọn tôn hoặc ngói nhẹ thay cho vật liệu cao cấp vừa tiết kiệm vừa đảm bảo thẩm mỹ và độ bền.
- Thiết kế đơn giản, hiện đại: Nhà cấp 4 5x10m có diện tích nhỏ, do đó nên ưu tiên các thiết kế đơn giản để tránh chi phí không cần thiết. Các thiết kế này không chỉ dễ thi công, nhanh hoàn thiện mà còn giúp tối ưu công năng, đảm bảo không gian sống thoáng đãng và hiện đại.
- Tối ưu công năng và diện tích sử dụng: Khi xây nhà cấp 4 5x10m, tối ưu hóa công năng từng khu vực là rất quan trọng. Sắp xếp phòng ngủ, phòng khách, bếp và nhà vệ sinh…
- Bố trí hợp lý: Để tận dụng không gian tối ưu, bạn có thể đặt phòng khách gần cửa ra vào và tận dụng không gian dưới mái. Điều này giúp tiết kiệm chi phí xây dựng và tăng diện tích sử dụng.
- Tự mình thực hiện một số công đoạn: Với các công việc đơn giản như lắp đặt nội thất hoặc sơn nhà, gia đình có thể tự thực hiện để giảm chi phí thuê nhân công. Điều này thuận lợi cho những ngôi nhà cấp 4 nhỏ với mẫu 5x10m khi khối lượng công việc không quá nhiều nhưng vẫn đảm bảo chất lượng công trình.
- So sánh giá cả và chọn nhà thầu đáng tin cậy: Để đảm bảo chi phí xây dựng hợp lý cho nhà cấp 4 đẹp 5x10m, chủ nhà nên so sánh giá từ nhiều nhà thầu và nhà cung cấp vật liệu. Việc chọn nhà thầu trọn gói uy tín giúp hoàn thiện công trình đúng tiến độ, không phát sinh chi phí ngoài dự kiến, từ đó tối ưu ngân sách xây dựng.




