Thi công điện dân dụng là một trong những hạng mục quan trọng quyết định sự an toàn và tiện nghi của mọi công trình nhà ở, văn phòng, chung cư… Tuy nhiên, nếu không có kinh nghiệm và hiểu rõ quy trình, việc lắp đặt có thể gặp nhiều rủi ro và sai sót. Trong bài viết này, chúng tôi chia sẻ kinh nghiệm thi công điện dân dụng thực tế từ đội ngũ kỹ thuật chuyên nghiệp. Những trải nghiệm thiết kế và thi công điện nước cho nhà ở dưới đây có thể áp dụng rộng rãi cho mọi loại công trình dân dụng như nhà ở, chung cư, văn phòng… Hãy cùng nhàto review khám phá chi tiết ngay dưới đây nhé!
Tại sao cần sự thiết kế trong lắp đặt điện nước?
Nếu chỉ đơn giản cần nước chảy khi vặn vòi hoặc đèn sáng khi bật công tắc thì không cần thiết kế. Tuy nhiên, để có hệ thống tốt, vận hành hiệu quả, khoa học, bền lâu và tiết kiệm thì thiết kế là điều không thể thiếu.
Hơn nữa, phần kỹ thuật điện nước kết nối chặt chẽ với các yếu tố khác của công trình như cấu trúc, kiến trúc, nội thất, phong thuỷ,… Vì vậy, việc thiết kế càng trở nên quan trọng để đảm bảo liên kết với các hạng mục khác.

Kinh nghiệm thi công điện dân dụng đúng chuẩn và tiện lợi
Dưới đây là những kinh nghiệm thiết kế điện nước trong nhà mà bạn nên tham khảo:
Thiết kế hệ thống điện
Yêu cầu tiên quyết khi thiết kế hệ thống điện là đảm bảo an toàn tuyệt đối. Sau đó mới xét đến các yếu tố như thẩm mỹ, kinh tế, đơn giản và tiện lợi. Dù là nhà mới hay cũ, nên sử dụng các thiết bị điện hiện đại. Bố trí đường dây điện độc lập cho một số thiết bị như: bình nóng lạnh, điều hòa, hệ thống ổ cắm, hệ thống đèn,…
Lưu ý khi thiết kế điện trong nhà:
- Đường dây cấp điện dọc trục đứng nên bố trí theo cầu thang hoặc hộp kỹ thuật, tránh để dây đi qua các phòng.
- Dây điện qua móng, tường, sàn… cần đặt trong ống cách điện và ống phải dốc để thoát nước dễ dàng, tránh ứ đọng.
- Tránh đặt dây điện ở nơi cần khoan, đóng đinh; hạn chế đường điện cắt nhau.
- Sử dụng dây điện có cách điện tốt; nếu lắp âm tường, nên dùng ống gen nhựa PVC.
- Ổ cắm điện cần cao hơn 1.5m so với mặt sàn. Nếu trong hốc, chỉ cần cao hơn 0.4m so với sàn. Đặt ổ cắm ít nhất 0.5m xa các bộ phận kim loại.
- Công tắc điện cần cao hơn sàn ít nhất 1.5m; tránh đặt gần nơi có nước như nhà tắm, chỗ giặt,…
- Bố trí thiết bị bảo vệ và điều khiển cho từng tầng hoặc cả ngôi nhà; các bảng điện cần đặt nơi dễ tiếp cận.
Bản vẽ cáp điện
- Sơ đồ nguyên lý phân phối điện.
- Mặt bằng cấp điện các tầng.
- Mặt bằng chiếu sáng các tầng.
- Mật bằng cấp điện các tầng.
- Mặt bằng hệ thống điện nhẹ.
- Bảng thống kê vật tư cần thiết.
Tìm hiểu thêm thép nào xây nhà tốt, bền? Chi tiết mời bạn tìm đọc tại https://nhatoreview.com/thep-nao-xay-nha-tot-top-loai-thep-ben-cho-ngoi-nha-cua-ban
Thiết kế hệ thống cấp nước
Hệ thống cấp nước là phần không thể thiếu trong bất kỳ công trình nào. Khi thiết kế hệ thống này, cần chú ý những nguyên tắc sau:
- Đường ống nước đến các thiết bị cấp nước cần ngắn nhất có thể.
- Các đường ống nước đứng thường đặt trong hộp kỹ thuật gần các thiết bị sử dụng nước. Đường ống ngang sẽ bố trí trong tường, cần chọn loại tốt, mối nối chắc chắn.
- Lắp đặt đường ống cấp nước nên thuận tiện cho việc sửa chữa và bảo trì
- Không nên đặt đường ống ở trong phòng ở; mỗi đường ống hoặc nhánh không nên dùng chung cho quá 5 thiết bị sử dụng nước.
Bản vẽ cấp nước bao gồm
- Sơ đồ hệ thống cấp nước toàn bộ căn nhà.
- Mặt bằng cấp nước cho từng tầng lầu.
- Danh sách vật liệu cấp nước cần thiết.
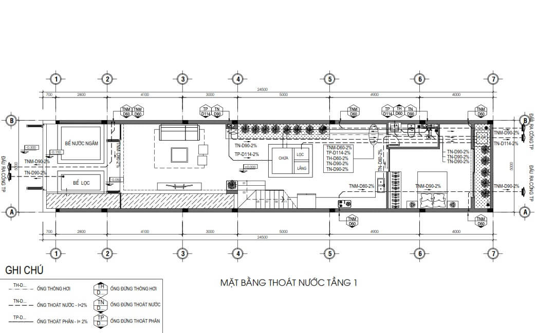
Thiết kế hệ thống thoát nước gia đình
Hệ thống cấp nước nên đi kèm với hệ thống thoát nước. Khi thiết kế hệ thống thoát nước, hãy ghi nhớ các nguyên tắc sau:
- Đảm bảo đường ống có kích thước đủ lớn để nước thoát dễ dàng.
- Chia hệ thống thoát nước thành hai loại: nhà vệ sinh và nhà bếp.
Các bản vẽ thoát nước bao gồm
- Sơ đồ thoát nước toàn nhà, các khu vực vệ sinh (hướng thoát nước ra ngoài nhà).
- Mặt bằng thoát nước từng tầng lầu.
- Danh sách vật liệu thoát nước cần thiết.
Nguyên tắc lắp đặt hệ thống chống sét và nối đất trong thiết kế điện nước nhà dân
- Đất để lấp bộ phận nối đất phải tơi mịn, không có sỏi, đá, gạch vụn, rác,…
- Khoảng cách giữa hai kẹp định vị cáp thoát sét là 1,5m
- Tại cao độ 1,5m so với cốt -0,75 cần đặt hộp kiểm tra tiếp địa
- Khoảng cách an toàn giữa bộ phận nối đất với cáp điện, ống nước phải theo đúng quy định trong tiêu chuẩn chống sét hiện hành 20TCN 46-84
- Trước khi thi công đến phần trát tường, tiến hành đặt cố định cáp thoát sét và hộp kiểm tra
- Sau khi hoàn thành hệ thống nối đất chống sét, đo kiểm tra điện trở nối đất (RND). Không được vượt quá 10Ω đối với nối đất chống sét và 4Ω đối với nối đất an toàn điện

Các chú ý cần quan tâm
Khi thiết kế, hãy tận dụng công nghệ mới: lắp đặt thiết bị bảo vệ tự động, công tắc điều khiển từ xa, ổ cắm đa năng, dây dẫn chống cháy,… Nếu có điều kiện, hãy bố trí các đường điện riêng biệt cho:
- Các thiết bị tiêu hao nhiều điện năng: bình nước nóng, máy điều hòa, máy bơm, tủ lạnh
- Hệ thống ổ cắm
- Hệ thống đèn.
Những điều cần lưu ý khi thiết kế điện nước và thi công lắp đặt
Khi thiết kế hệ thống điện nước cho gia đình, bạn cần chú ý những điều sau:
Bao quát tổng thể và xem xét nhu cầu sử dụng
Đây là yếu tố cốt lõi để có thể lắp đặt và thiết kế điện nước cho mọi căn nhà. Hiểu rõ nhu cầu sử dụng của gia đình giúp bạn lắp đặt và thiết kế phù hợp, đúng cách. Ưu tiên những vật dụng thiết yếu trước, sau đó mới đến những thiết bị không quá quan trọng.
Ngoài ra, hãy tính đến các phương án dự phòng cho mọi hệ thống khi lắp đặt. Bởi bất kỳ thiết bị nào sau một thời gian sử dụng cũng có thể gặp trục trặc. Vì vậy, bạn cần tính toán cẩn thận để đảm bảo thiết bị điện nước được lắp đặt đầy đủ, tiện lợi khi sử dụng và dễ dàng sửa chữa, bảo trì khi cần.
Cần chuẩn bị bản vẽ kỹ thuật
Nếu căn nhà của bạn nhỏ và chỉ cần những thiết bị cơ bản như ổ điện, đường nước trong nhà tắm thì có thể không cần bản thiết kế cầu kỳ. Tuy nhiên, nếu cần trang trí phức tạp với hệ thống điện nước yêu cầu kỹ thuật cao thì bản vẽ kỹ thuật có tầm quan trọng. So với bản vẽ thiết kế nhà, bản vẽ điện nước đóng vai trò thiết yếu hơn gấp đôi, thậm chí gấp ba. Nhờ có bản vẽ, bạn dễ dàng xác định vị trí thiết bị hợp lý với cấu trúc nhà; mang lại tiện nghi khi sử dụng; đảm bảo thẩm mỹ và sự hài hòa với nội thất.
Bên cạnh đó, bạn có thể đánh giá khả năng chịu tải của đường điện nhờ bản thiết kế, giúp tính toán một cách hiệu quả nhất, đảm bảo an toàn cho các thiết bị trong gia đình mà không gây lãng phí.
Đồng bộ trong thiết kế và thi công
Một số trường hợp đã xảy ra là “thiết kế một đằng, thi công một nẻo”. Điều này gây khó khăn khi cần sửa chữa và có thể dẫn đến những hậu quả nghiêm trọng. Vì thế, đồng bộ trong thiết kế và thi công chính là giải pháp tối ưu để đảm bảo an toàn và tiết kiệm cho bạn và gia đình.

Lựa chọn trang thiết bị theo nhu cầu và phù hợp
Thiết bị điện nước luôn có mối liên kết chặt chẽ với các vấn đề kỹ thuật, quy định rõ về công suất, sức tải, định mức lắp đặt và điều kiện thích hợp. Nhiều người thường chủ quan ở điểm này. Bạn cần chọn thiết bị thích hợp để đảm bảo an toàn và thuận tiện. Đồng thời, thiết bị cũng cần đảm bảo yếu tố thẩm mỹ và phù hợp với tổng thể thiết kế.
Có thể bạn quan tâm top những mẫu nhà đẹp 2 tầng
Các lưu ý trong quy trình thi công điện dân dụng
Chúng ta cùng tìm hiểu quy trình và biện pháp thi công hệ thống cơ điện cho văn phòng, gia đình trước. Tại phần này, chúng ta sẽ đi sâu và tập trung vào phần thi công mảng điện và nước. Trong phần điện, tổ thi công sẽ tiến hành từng bước thứ tự như sau:
- Lắp đặt đường ống bảo vệ: gồm dây cáp điện âm tường, ống ngầm dưới đất, máng cáp trunking, thang cáp (tray cable, ladder cable…), ống điện nổi…
- Lắp đặt cáp điện: trực tiếp vào hệ thống đường ống đã nêu trên.
- Lắp đặt tủ điện, bảng điện: tủ điện và bảng điện tổng dẫn vào từng tầng và từng phòng.
- Lắp đặt thiết bị điện: như công tắc đèn, ổ cắm điện, tivi, quạt trần, bếp từ, máy rửa bát, quạt trần đẹp, hệ thống đèn chiếu sáng…
- Thực hiện đấu nối: kiểm tra, nghiệm thu mối nối, thử nghiệm và kiểm tra vận hành.

Quy trình thi công điện nước chuẩn
– Bước 1: Khảo sát thực tế để nắm bắt địa hình nơi lắp đặt điện nước, từ đó đưa ra phương pháp thi công hợp lý. – Bước 2: Lên bản vẽ. Dựa vào thông tin đã khảo sát, tạo bản thiết kế thi công điện nước để khách hàng tham khảo. Sau khi khách hàng đồng ý, tiến hành thi công, lắp đặt. – Bước 3: Thi công lắp đặt hệ thống điện nước. Sau khi thống nhất về bản thiết kế và giá cả với khách hàng, tiến hành thi công lắp đặt hệ thống điện nước theo bản vẽ. Đây là giai đoạn rất quan trọng, vì vậy yêu cầu thợ lắp đặt phải có tay nghề và kinh nghiệm.
– Bước 4: Kiểm tra và bàn giao cho khách hàng. Sau khi hoàn thành, kiểm tra độ an toàn và hoạt động của hệ thống để đảm bảo khách hàng không gặp sự cố ngoài ý muốn. Nếu hệ thống hoạt động tốt, bàn giao cho khách hàng và kết thúc hợp đồng.
Chi phí thiết kế điện nước
Chi phí thiết kế thường được tính trọn gói cho tất cả các hạng mục thiết kế của một căn nhà.
Đọc thêm muốn xây nhà cần những thủ tục gì
Hy vọng những kinh nghiệm thi công điện dân dụng mà chúng tôi chia sẻ sẽ giúp bạn có thêm kiến thức hữu ích để thiết kế và lắp đặt hệ thống điện hiệu quả, an toàn cho ngôi nhà hoặc công trình của mình. Đừng quên lựa chọn đơn vị thi công uy tín để đảm bảo chất lượng và hạn chế rủi ro trong quá trình sử dụng về sau.
