Hiểu rõ về độ sụt bê tông không chỉ giúp đánh giá chất lượng hỗn hợp mà còn đảm bảo sự phù hợp với yêu cầu kỹ thuật của từng dự án xây dựng. Việc lựa chọn độ sụt tối ưu sẽ quyết định sự thành công và tuổi thọ của công trình, từ những ngôi nhà dân dụng đến các công trình phức tạp đòi hỏi kỹ thuật cao. Khám phá bí quyết lựa chọn độ sụt bê tông chuẩn xác cùng <a href="Website NHATO“>Website NHATO để tối ưu hóa quy trình thi công và tiết kiệm chi phí hiệu quả.
Độ Sụt Bê Tông Là Gì?
Độ sụt bê tông phản ánh tính lưu động và độ ẩm của hỗn hợp bê tông. Nó được đo bằng chiều cao mà hỗn hợp bê tông giảm đi sau khi được đổ vào một dụng cụ hình nón tiêu chuẩn (nón sụt) và rung động. Độ sụt cao thường cho thấy bê tông có tính lưu động tốt hơn, phù hợp cho các công trình như đường xá, vỉa hè, trong khi độ sụt thấp hơn thường được ưu tiên cho việc xây dựng nhà ở, nơi cần sự ổn định và kiểm soát tốt hơn.
Độ sụt bê tông là độ cứng của hỗn hợp bê tông, tính lỏng và ẩm ướt.
Độ Sụt Bê Tông Hợp Lý Cho Từng Loại Công Trình
Việc đảm bảo độ sụt bê tông nhất quán và tuân thủ yêu cầu kỹ thuật là vô cùng quan trọng đối với mọi công trình. Nếu độ sụt không đạt chuẩn, nhà thầu có thể bị từ chối sử dụng mẻ bê tông đó.
Vậy, độ sụt bê tông bao nhiêu là hợp lý?
- Đối với các công trình nhà ở dân dụng, độ sụt bê tông lý tưởng là 10 ± 2 cm. Khi sử dụng phương pháp bơm bê tông để đổ ở các vị trí cao, độ sụt có thể lên tới 12 ± 2 cm.
- Đối với bê tông được đổ trực tiếp xuống sàn hoặc móng mà không cần bơm, độ sụt phù hợp là 6 ± 2 cm.
Phương Pháp Kiểm Tra Độ Sụt Bê Tông
Độ sụt bê tông được xác định theo các tiêu chuẩn quốc tế như ASTM C143-90A hoặc tiêu chuẩn Việt Nam TCVN 3105-93, ký hiệu là SN (đo bằng cm).
Các dụng cụ cần thiết để kiểm tra độ sụt bê tông bao gồm:
- Côn Abrams: Có kích thước tiêu chuẩn 203x102x305 mm, với phần đáy và miệng hình tròn hở.
- Que đầm: Hình tròn, đường kính 1.6 cm và dài 60 cm.
Bộ côn đo độ sụt bê tông
Công thức tính độ sụt bê tông được thực hiện như sau:
Độ sụt (SN) = 305 mm – [Chiều cao thực tế của bê tông trong nón sụt sau khi đầm]
Dựa trên chỉ số độ sụt (SN), bê tông được phân loại như sau:
- Bê tông cứng: SN < 8 cm (thường dùng cho các kết cấu cần độ ổn định cao).
- Bê tông dẻo: 8 cm ≤ SN ≤ 9 cm (phổ biến trong xây dựng nhà ở).
- Bê tông siêu dẻo: 10 cm ≤ SN ≤ 22 cm (thường dùng cho các cấu kiện phức tạp hoặc khi thi công bằng bơm bê tông).
Mục Đích Của Việc Kiểm Tra Độ Sụt Bê Tông
Việc kiểm tra độ sụt bê tông mang lại hai lợi ích chính:
- Đảm bảo chất lượng kỹ thuật: Kiểm tra độ sụt giúp xác nhận hỗn hợp bê tông đạt tỷ lệ phối trộn theo đúng tiêu chuẩn thiết kế, đảm bảo các đặc tính cơ học cần thiết cho công trình.
- Đánh giá khả năng thi công: Độ sụt cho biết mức độ dễ dàng trong việc vận chuyển, đổ và đầm bê tông tại công trường. Một mẻ bê tông có độ sụt phù hợp sẽ giúp quá trình thi công diễn ra thuận lợi, giảm thiểu nhân công và thời gian.
Quy Trình Kiểm Tra Độ Sụt Bê Tông Chi Tiết
- Đặt khuôn hình nón (côn Abrams) lên một bề mặt phẳng, sạch và làm ẩm nhẹ.
- Cho một lớp bê tông đầu tiên vào khuôn, chiếm khoảng 1/3 thể tích. Dùng que đầm thực hiện đầm chặt 25 lần theo chuyển động tròn đều, tránh làm xáo trộn hỗn hợp.
- Tiếp tục cho lớp bê tông thứ hai vào khuôn, chiếm khoảng 2/3 thể tích và thực hiện đầm chặt tương tự 25 lần.
- Đổ đầy bê tông vào khuôn và đầm chặt lần thứ ba với 25 lần đầm. Đảm bảo lớp bê tông này lấp đầy hoàn toàn khuôn và hơi nhô lên trên.
- Sử dụng que đầm hoặc dụng cụ gạt phẳng bề mặt bê tông trong khuôn.
- Nhấc khuôn thẳng đứng lên một cách từ từ và đều đặn trong khoảng 10 giây ± 2 giây. Quá trình này cần thực hiện cẩn thận để mẫu bê tông không bị xê dịch.
- Quan sát và chờ cho bê tông trong khuôn ổn định sau khi nhấc khuôn ra.
- Đo chiều cao chênh lệch giữa đỉnh bê tông và mặt đáy khuôn. Kết quả này chính là độ sụt của bê tông. Có thể đặt ngược khuôn lại bên cạnh mẫu bê tông để làm điểm tham chiếu đo đạc.
Quy trình kiểm tra độ sụt bê tông
Tính Toán Khối Lượng Bê Tông Chính Xác
Việc tính toán khối lượng bê tông chính xác là bước quan trọng để lập dự toán vật tư và kiểm soát chi phí xây dựng. Có nhiều phương pháp tính toán khác nhau tùy thuộc vào cấu kiện bê tông, bao gồm bê tông móng đơn, bê tông tươi, bê tông sàn, cọc, dầm, cột, v.v.
Tính Khối Lượng Bê Tông Cho Cọc Vuông Cốt Thép
Giả sử cần tính khối lượng bê tông cho 62 cọc vuông BTCT, mỗi cọc có tiết diện 200x200mm và chiều dài 12m. Cọc được chia thành 3 đoạn, mỗi đoạn có chiều dài trung bình là 4m.
Cách tính khối lượng bê tông cọc vuông – bê tông cốt thép
Khối lượng bê tông cho cọc được tính dựa trên khối lượng của các đoạn cọc và các cấu kiện liên kết:
- Thể tích bê tông cho 62 cọc (Vbt 62 cọc): Bao gồm tổng thể tích của các đoạn cọc Đ1 và các đoạn cọc Đ2.
- Tính toán chi tiết:
- Vbt Đ1 (cho 62 cấu kiện) = 62 x (4m x 0.2m x 0.2m) + 62 x (1/3 x 0.2m x 0.2m x 0.4m) = 10.2507 m³. Phần thể tích hình chóp được tính cho các đoạn cọc Đ1 để đảm bảo độ chính xác.
- Vbt Đ2 (cho 124 cấu kiện) = 124 x (4m x 0.2m x 0.2m) = 19.84 m³.
- Tổng khối lượng bê tông cho 62 cọc: Vbt 62 cọc = 10.2507 m³ + 19.84 m³ = 30.0907 m³.
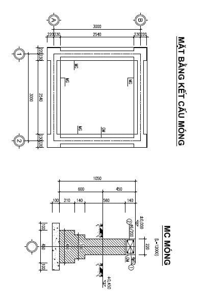
- Thể tích bê tông lót (Vbt lót): (3.64m + 2.34m) x 2 x 0.65m x 0.1m = 0.7774 m³.
- Thể tích bê tông móng (Vbt): (3.44m x 2 + 2.54m x 2) x (0.45m x 0.21m + 0.33m x 0.14m + 0.56m x 0.22m) = 3.1562 m³.
- D: Kích thước chiều dài của sàn.
- R: Kích thước chiều rộng của sàn.
- H: Chiều dày của sàn bê tông. Chiều dày này thường dao động từ 0.2 – 0.3m cho đường và từ 0.08 – 0.14m cho nhà ở dân dụng.
- Cột C1: 4 cột x 12.267m x 0.22m x 0.22m = 2.3749 m³.
- Cột C2: 8 cột x 13.244m x 0.22m x 0.22m = 5.1281 m³.
- Cột C3: 2 cột x 11.2m x 0.22m x 0.22m = 1.0842 m³.
- Vbt: Thể tích bê tông cần dùng.
- D: Chiều dài của đoạn đường hoặc khu vực cần đổ bê tông.
- R: Chiều rộng của khu vực đổ bê tông.
- H: Chiều dày lớp bê tông dự kiến.
- Bê tông mác 200, sử dụng đá có kích thước 1×2 cm: Độ sụt khoảng 12 ± 2 cm.
- Bê tông mác 250, sử dụng đá có kích thước 1×2 cm: Độ sụt khoảng 12 ± 2 cm.
- Bê tông mác 300, sử dụng đá có kích thước 1×2 cm: Độ sụt khoảng 12 ± 2 cm.
- Bê tông mác 350, sử dụng đá có kích thước 1×2 cm: Độ sụt khoảng 12 ± 2 cm.
- Độ sụt thông thường là 10 ± 2 cm.
- Khi sử dụng bơm bê tông, độ sụt có thể tăng lên 12 ± 2 cm.
- Khi đổ bê tông trực tiếp (không dùng bơm), độ sụt phù hợp là 6 ± 2 cm.
- Nhà ở dưới 3 tầng: Bê tông mác 200 thường được sử dụng. Đối với các nhịp dầm lớn, nên cân nhắc sử dụng bê tông mác 250.
- Nhà ở từ 4-6 tầng: Bê tông mác 250 là lựa chọn phù hợp cho kết cấu chính, và mác 300 cho các bộ phận chịu lực lớn hơn như dầm giữa các tầng.
- Nhà ở từ 6-10 tầng: Bê tông mác 300 nên được ưu tiên sử dụng.
- Móng nhà xưởng, nhà kho: Nên sử dụng bê tông mác 300 hoặc 400 để đảm bảo khả năng chịu tải trọng lớn.
- Cọc bê tông đúc sẵn: Cần sử dụng bê tông mác 300 trở lên.
- Trụ cầu, dầm cầu và các kết cấu chịu lực cao: Yêu cầu bê tông mác 350 trở lên để đảm bảo độ bền và khả năng chống chịu.
Tính Khối Lượng Bê Tông Móng Băng
Khối lượng bê tông cho móng băng bao gồm bê tông lót và bê tông móng:
Cách tính khối lượng bê tông móng băng (đơn vị tính: mm)
Tính Khối Lượng Bê Tông Móng Đài
Diện tích mặt bằng của móng đài Đ3 được tính như sau:
S = 10.7 m² + (1m + 0.43m) x 0.6m / 2 = 1.129 m²
Khối lượng bê tông cho 5 đài móng Đ3 được tính theo công thức:
Vbt = 5 x S x 0.7m = 5 x 1.129 m² x 0.7m = 3.9515 m³
Cách tính khối lượng bê tông đài móng
Tính Khối Lượng Bê Tông Sàn
Công thức tính khối lượng bê tông sàn có dạng:
Vbt = Chiều dài (D) x Chiều rộng (R) x Chiều dày (H) (m³)
Cách tính khối lượng bê tông sàn
Tính Khối Lượng Bê Tông Cột
Công thức tính khối lượng bê tông cho cột như sau:
V = Số lượng cột x Chiều cao cột x Tiết diện cột
Tổng khối lượng bê tông cho 14 cột: Vbt cột = 2.3749 + 5.1281 + 1.0842 = 8.5872 m³.
Cách tính khối lượng bê tông cột
Tính Khối Lượng Bê Tông Đổ Đường
Tương tự như tính toán cho sàn, khối lượng bê tông cho đường được tính theo công thức:
Cách tính: Vbt = Chiều dài (D) x Chiều rộng (R) x Chiều dày (H) (m³)
Bê Tông Mác 250 Và Độ Sụt Tương Ứng
Khái Niệm Bê Tông Mác 250
Mác bê tông là đơn vị đo cường độ chịu nén của bê tông sau 28 ngày bảo dưỡng trong điều kiện tiêu chuẩn, thường được tính bằng kg/cm². Do đó, bê tông mác 250 có nghĩa là mẫu bê tông này sẽ bị phá hủy khi chịu tác động của lực nén lớn hơn 250 kg/cm². Cấp phối bê tông, tức là tỷ lệ pha trộn các thành phần như xi măng, cát, đá và nước, đóng vai trò quyết định đến cường độ này. Việc đạt được mác bê tông 250 đòi hỏi sự tuân thủ nghiêm ngặt các tiêu chuẩn kỹ thuật như TCVN 3105:1993 và TCVN 356-2005, cùng với quy trình thi công chính xác.
Mác bê tông 250 tức chỉ cường độ chịu nén của bê tông trong điều kiện tiêu chuẩn (28 ngày)
Độ Sụt Hợp Lý Cho Các Mác Bê Tông Phổ Biến
Độ sụt của bê tông có thể thay đổi tùy thuộc vào nhiều yếu tố như loại cốt liệu (đá), phương pháp thi công (bơm hay đổ trực tiếp), điều kiện thời tiết và yêu cầu cụ thể của từng hạng mục công trình. Dưới đây là khoảng độ sụt hợp lý cho một số mác bê tông thông dụng:
Ngoài ra, đối với các công trình nhà ở dân dụng:
Lựa Chọn Độ Sụt Bê Tông Theo Tiêu Chuẩn Công Trình
Việc lựa chọn mác bê tông phù hợp với từng loại công trình là rất quan trọng để đảm bảo an toàn và độ bền vững:
Hướng dẫn kiểm tra độ sụt bê tông chính xác
Bài viết trên đây đã cung cấp thông tin chi tiết về độ sụt bê tông, cách tính toán khối lượng và lựa chọn mác bê tông phù hợp cho từng công trình. Để cập nhật thêm các kiến thức về bất động sản, giá nhà đất, phong thủy nhà ở và nhiều thông tin hữu ích khác, quý vị có thể truy cập chuyên mục Wiki BĐS.
Hy vọng những thông tin về độ sụt và cách tính toán khối lượng bê tông đã giúp bạn có cái nhìn tổng quan và chuẩn bị tốt hơn cho các dự án xây dựng của mình. Để khám phá thêm các bài viết chuyên sâu và cập nhật về lĩnh vực này, đừng ngần ngại ghé thăm chuyên mục Kiến Trúc & Xây Dựng.




