Những mẫu thiết kế nhà diện tích 5x12m ngày càng phổ biến, đặc biệt ở các khu đô thị và khu dân cư có mật độ xây dựng cao. Với diện tích vừa phải, kiểu nhà này không chỉ tiết kiệm không gian mà còn đáp ứng đầy đủ các nhu cầu sinh hoạt cho cả gia đình. Nhờ vào cách bố trí thông minh cùng bản vẽ khoa học, nhà 5x12m đang trở thành lựa chọn hàng đầu của nhiều chủ đầu tư.
Trong bài viết dưới đây, Nhà To Review sẽ giới thiệu đến bạn 35+ bản vẽ thiết kế nhà 5x12m đẹp, tối ưu không gian, phù hợp xu hướng hiện đại, giúp bạn dễ dàng lựa chọn mẫu phù hợp nhất với mình.
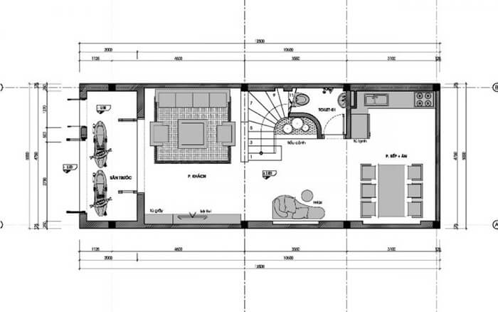
Ưu điểm nổi bật của bản vẽ thiết kế nhà diện tích 5x12m
Khi triển khai thiết kế nhà trên nền diện tích 5x12m, kiến trúc sư thường sẽ làm việc dựa trên nền tảng chiều ngang 5m và chiều dài 12m – một dạng nhà hình ống, hẹp về chiều ngang nhưng lại có chiều sâu đủ để bố trí không gian hợp lý.
Loại hình này đặc biệt phù hợp với nhà phố, khu dân cư đông đúc hoặc lô đất nhỏ trong thành thị. Tuy nhiên, để đảm bảo sự tiện nghi, thoáng đãng và tính thẩm mỹ, việc phân chia các khu vực chức năng cần có sự tính toán chi tiết.

Một bản vẽ thiết kế chuẩn sẽ giúp chủ nhà dễ dàng hình dung không gian, định vị vị trí các phòng như phòng khách, bếp, phòng ngủ, nhà vệ sinh… Bên cạnh đó, để tăng tính hiệu quả sử dụng, nên ưu tiên nội thất đơn giản, đa năng và tránh các chi tiết trang trí cầu kỳ chiếm diện tích.
Dự toán chi phí xây dựng nhà 5x12m
Một trong những yếu tố quan trọng nhất khi lên kế hoạch xây nhà là xác định được mức kinh phí phù hợp. Tùy theo phong cách kiến trúc và vật liệu hoàn thiện mà chi phí xây dựng có thể dao động. Dưới đây là mức chi phí trung bình tham khảo dành cho nhà 5x12m:
| Phong cách | Chi phí thiết kế | Chi phí thi công hoàn thiện |
|---|---|---|
| Hiện đại | 100.000đ/m² | 5 – 6 triệu đồng/m² |
| Tân cổ điển | 120.000đ/m² | 6 – 8 triệu đồng/m² |
| Cổ điển | 150.000đ/m² | 8 – 10 triệu đồng/m² |
Lưu ý: Mức chi phí có thể thay đổi tùy thuộc khu vực, thời điểm thi công và giá nguyên vật liệu trên thị trường.

Tổng hợp 35+ mẫu bản vẽ thiết kế nhà 5x12m đẹp, đáng chú ý
Nhà 5x12m 1 tầng có gác lửng
Mẫu nhà này phù hợp cho những gia đình ít người hoặc vợ chồng trẻ. Không gian gác lửng giúp mở rộng diện tích sử dụng mà vẫn đảm bảo thông thoáng. Tầng lửng có thể được bố trí làm phòng ngủ phụ, khu đọc sách hoặc phòng làm việc nhỏ tiện nghi.

Tham khảo thêm:
- Hơn 25 Mẫu Thiết Kế Nhà Ngang 6m Dài 20m Sang Trọng và Hiện Đại Năm 2025
- Hơn 50 mẫu thiết kế nhà 1 trệt 1 lầu 4x10m đẹp, tiện nghi và hiện đại
Thiết kế nhà phố 5x12m phong cách sang trọng
Với nhu cầu thẩm mỹ ngày càng cao, nhiều gia chủ lựa chọn thiết kế nhà theo phong cách sang trọng, hiện đại. Những căn nhà này thường sử dụng gam màu trung tính, vật liệu cao cấp như đá, kính, gỗ… và bố trí ánh sáng tinh tế.
Nội thất bên trong cũng được đầu tư kỹ lưỡng, thể hiện gu thẩm mỹ riêng và tạo nên không gian sống đẳng cấp.

Nhà 2 tầng phong cách hiện đại 5x12m
Kiểu thiết kế này phù hợp với những gia đình có nhiều thế hệ cùng sinh sống. Nhà 2 tầng mang đến không gian sinh hoạt rộng rãi, có thể bố trí 3–4 phòng ngủ, sân phơi và ban công thoáng mát. Phong cách hiện đại thường hướng đến các đường nét đơn giản, không gian mở và vật liệu mới.

Nhà 5x12m 2 tầng 3 phòng ngủ
Một lựa chọn lý tưởng dành cho gia đình 4–6 người. Ba phòng ngủ được bố trí hợp lý ở hai tầng, đảm bảo sự riêng tư và tiện lợi. Ngoài ra, không gian chung như phòng khách, bếp ăn cũng cần được bố trí thoáng đãng, có ánh sáng tự nhiên để tạo cảm giác rộng rãi.

Nhà có gara hoặc khu để xe riêng
Với những gia đình có ô tô hoặc xe máy nhiều, không gian để xe là điều cần cân nhắc khi thiết kế nhà. Tùy vào địa hình, gara có thể nằm ở tầng trệt, sân trước hoặc dưới tầng hầm. Tuy nhiên, nếu xây hầm thì cần tính đến chi phí phát sinh và kỹ thuật chống thấm tốt.

Những lưu ý quan trọng khi thiết kế nhà diện tích 5x12m
Để quá trình thi công và sử dụng nhà 5x12m đạt hiệu quả tối ưu, bạn cần lưu ý những điều sau:
Chuẩn bị ngân sách kỹ lưỡng
Ngoài chi phí thiết kế và xây dựng cơ bản, nên dự trù thêm khoản chi cho nội thất, chi phí phát sinh hoặc thay đổi trong quá trình thi công để tránh bị động.

Chọn đơn vị thiết kế – thi công uy tín
Một đơn vị chuyên nghiệp sẽ hỗ trợ bạn từ khâu tư vấn ý tưởng, lập bản vẽ kỹ thuật đến thi công thực tế. Điều này đảm bảo công trình được triển khai đúng tiến độ và chất lượng như mong đợi.

Chọn phong cách thiết kế phù hợp
Không chỉ dựa trên sở thích, việc lựa chọn phong cách cần cân nhắc đến diện tích đất, ánh sáng tự nhiên, môi trường xung quanh và số lượng thành viên trong gia đình.
Nếu bạn đang cân nhắc phương án xây nhà vừa đẹp vừa tiết kiệm, hãy tham khảo thêm các thiết kế mẫu nhà đẹp để có thêm ý tưởng phù hợp với ngân sách và nhu cầu thực tế.

Hy vọng rằng bài viết đã mang đến cho bạn cái nhìn tổng quan và chi tiết về bản vẽ thiết kế nhà 5x12m – từ đặc điểm không gian, chi phí xây dựng cho đến các mẫu thiết kế đang được ưa chuộng nhất hiện nay.
Nếu bạn đang tìm kiếm một giải pháp nhà ở tiết kiệm, tiện nghi và mang đậm dấu ấn cá nhân, đừng bỏ qua các mẫu nhà 5x12m mà Nhà To Review đã tổng hợp!



