Nhà 3 tầng hình chữ L đang trở thành xu hướng được nhiều gia chủ lựa chọn nhờ thiết kế thông thoáng, tối ưu không gian và linh hoạt trong bố trí công năng. Với kiểu dáng đặc trưng, mẫu nhà này không chỉ phù hợp với cả thành thị lẫn nông thôn mà còn dễ dàng kết hợp sân vườn, gara hoặc tiểu cảnh. Cùng khám phá chi tiết qua các mẫu nhà chữ L 3 tầng tuyệt đẹp trong bài viết này của NHÀ TO REVIEW nhé!
Mẫu nhà biệt thự 3 tầng chữ L sang trọng, đẳng cấp
Mẫu nhà biệt thự 3 tầng dạng chữ L mang đến sự sang trọng, đẳng cấp và là lựa chọn yêu thích của nhiều gia đình. Ngôi nhà có diện tích 435.6m2 và thiết kế hình chữ L cùng 3 tầng.


Bên ngoài, ngôi nhà mang phong cách hiện đại với gam xám và nâu chủ đạo, thể hiện sự mạnh mẽ, nam tính. Với những khối hộp chồng lên nhau, ngôi nhà trở nên nổi bật và độc đáo. Nội thất được bố trí theo phong cách tối giản, mang tới sự thanh lịch và hiện đại. Ngoài ra, ngôi nhà có nhiều khu vực giải trí cao cấp như phòng thư viện, phòng chiếu phim, phòng tập yoga và hồ bơi, giúp gia chủ thư giãn và tận hưởng thoải mái.

Mẫu nhà 3 tầng chữ L hiện đại
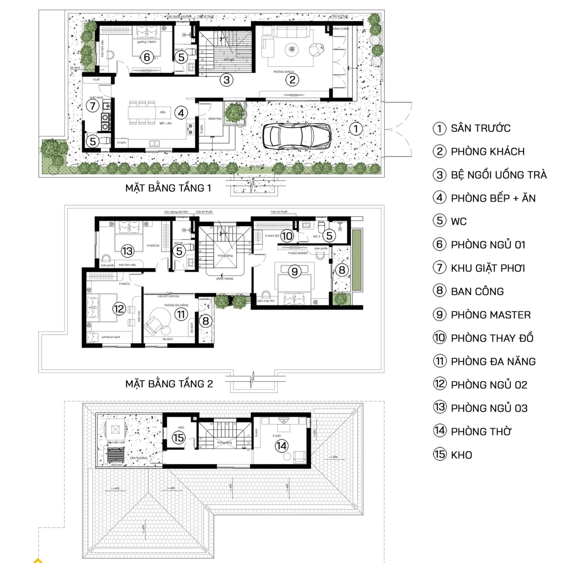
Mẫu nhà 3 tầng chữ L hiện đại là sự kết hợp tinh tế giữa kiến trúc hiện đại và thiên nhiên, tạo thành không gian sống đẳng cấp, sang trọng và ấm áp. Ngôi nhà rộng 340m2 được thiết kế hình chữ L với 3 tầng nổi và 1 tum.


Ngôi nhà sở hữu nhiều cửa sổ lớn, tận dụng tối đa ánh sáng tự nhiên và tạo cảm giác thông thoáng. Nội thất bố trí hợp lý, mang lại sự tiện nghi và thoải mái cho gia đình. Màu sắc nội thất gồm chủ yếu màu trắng, xám và nâu, tạo nên không gian hài hòa và ấm áp. Ngôi nhà có nhiều khu vực sinh hoạt chung như phòng khách, phòng ăn, phòng giải trí và sân thượng, là những nơi lý tưởng cho gia đình quây quần, giao lưu và thư giãn.

Bên cạnh thiết kế chữ L, nhiều gia đình hiện nay cũng quan tâm đến các mẫu nhà 3 tầng mái Nhật nhờ phong cách kiến trúc nhẹ nhàng, hiện đại, phù hợp với khí hậu Việt Nam và tạo điểm nhấn thanh lịch cho tổng thể ngôi nhà. Xem ngay tại trang tin của Nhà to review nhé.
Mẫu nhà 3 tầng chữ L tràn ngập sắc xanh
Mẫu nhà 3 tầng chữ L tràn ngập sắc xanh là một trong những phong cách thân thiện với môi trường và cực kỳ hấp dẫn. Với diện tích 375.7m2, ngôi nhà thiết kế theo hình chữ L với 3 tầng.


Về ngoại thất, ngôi nhà theo phong cách hiện đại, sử dụng màu trắng và xanh là chủ đạo, mang lại sự tươi mới và hòa quyện với thiên nhiên. Nội thất chủ yếu sử dụng màu trắng, xanh và gỗ, tạo không gian hài hòa, sinh động. Ngôi nhà cũng có nhiều khu vực sinh hoạt chung như phòng khách, phòng ăn, phòng làm việc và sân thượng, là những nơi lý tưởng để gia đình quây quần, giao lưu và thư giãn.


Mẫu thiết kế nhà 3 tầng chữ L tối giản
Thiết kế nhà 3 tầng chữ L mang phong cách tối giản dành riêng cho những ai yêu thích sự hiện đại và đơn giản. Ngoại thất ngôi nhà theo phong cách hiện đại, màu sắc trang nhã với trắng và xám là chủ đạo, tạo cảm giác tinh tế và sang trọng. Ngôi nhà có nhiều khối hộp đơn giản, mang lại sự cân đối và hài hòa. Nội thất được bố trí tối giản, tạo ra không gian thanh thoát và hiện đại cho gia chủ.

Nếu bạn yêu thích sự gọn gàng, tiện dụng trong thiết kế nhà ở, ngoài các mẫu nhà 3 tầng chữ L hiện đại, bạn cũng có thể tham khảo thêm các mẫu nhà cấp 4 đơn giản nhất đang được nhiều gia đình lựa chọn nhờ chi phí hợp lý và thời gian thi công nhanh chóng.
Trên đây là những mẫu nhà 3 tầng chữ L hiện đại có bản vẽ công năng chi tiết mà NHÀ TO REVIEW muốn chia sẻ tới quý gia chủ. Nếu bạn có thắc mắc hay cần ý tưởng thiết kế cần hỗ trợ, hãy để lại thông tin. Chúng tôi sẽ nhanh chóng tư vấn và giúp bạn ước tính chi phí miễn phí.




