Thiết kế nhà 5x20m có thang máy là một phương án lý tưởng để gia đình mở rộng diện tích sử dụng đồng thời duy trì tính tiện nghi và thẩm mỹ. Với thiết kế sáng tạo, tận dụng hiệu quả không gian, ánh sáng cùng gió tự nhiên, ngôi nhà mang đến trải nghiệm sống thoải mái. Hơn nữa, thang máy mang lại sự tiện lợi vượt trội, giúp di chuyển giữa các tầng dễ dàng hơn, đặc biệt thích hợp cho gia đình nhiều thế hệ. Hãy cùng NHA TO REVIEW khám phá những mẫu nhà phố 5x20m có thang máy đẹp, hiện đại với đầy đủ công năng trong bài viết sau!
Mẫu thiết kế nhà 5x20m có thang máy đẹp, tối giản
Mẫu thiết kế nhà 5x20m có thang máy theo phong cách tối giản mang đến không gian sống hiện đại, tiện nghi và tinh tế. Điểm nhấn độc đáo nằm ở mặt tiền, với hai ô vòm lớn thay thế cho các khung vuông truyền thống, tạo nên vẻ mềm mại và hiện đại. Ngôi nhà được thiết kế theo phong cách Japandi, tạo ra không gian tươi sáng, tối giản nhưng vẫn ấm cúng và trang nhã. Tông màu trung tính như trắng, xám, be kết hợp với ánh sáng tự nhiên giúp không gian rộng rãi và thoáng đãng hơn. Hệ thống thang máy lắp đặt gọn ghẽ, hỗ trợ di chuyển giữa các tầng nhanh chóng và thuận tiện, phù hợp với gia đình nhiều thế hệ hoặc những ai yêu thích sự tiện lợi hàng ngày.
Có thể bạn cũng quan tâm xu hướng những mẫu nhà đẹp 2025 được ưa chuộng, xem ngay tại https://nhatoreview.com/nha-dep
Mẫu thiết kế nhà 5x20m có thang máy 4 tầng hiện đại
Mẫu thiết kế nhà 5x20m có thang máy 4 tầng hiện đại kết hợp kiến trúc thông minh và tiện ích cao cấp, tạo nên không gian sống tiện nghi. Với hệ thống thang máy lắp đặt khéo léo, việc di chuyển giữa các tầng trở nên thuận tiện, phù hợp với gia đình nhiều thế hệ. Bố cục không gian được sắp xếp hợp lý, tối ưu hóa diện tích sử dụng mà vẫn giữ được sự thoáng đãng. Bên cạnh các khu vực sinh hoạt chính, mẫu thiết kế này tích hợp không gian phụ trợ như phòng gym hiện đại, phòng trà thư giãn để gia chủ có thể tận hưởng những giây phút riêng hoặc tiếp đón khách thân mật.
Tìm hiểu thêm 22+ mẫu nhà ống 3 tầng 5x15m 4 phòng ngủ đẹp nhất 2025 Tại đây
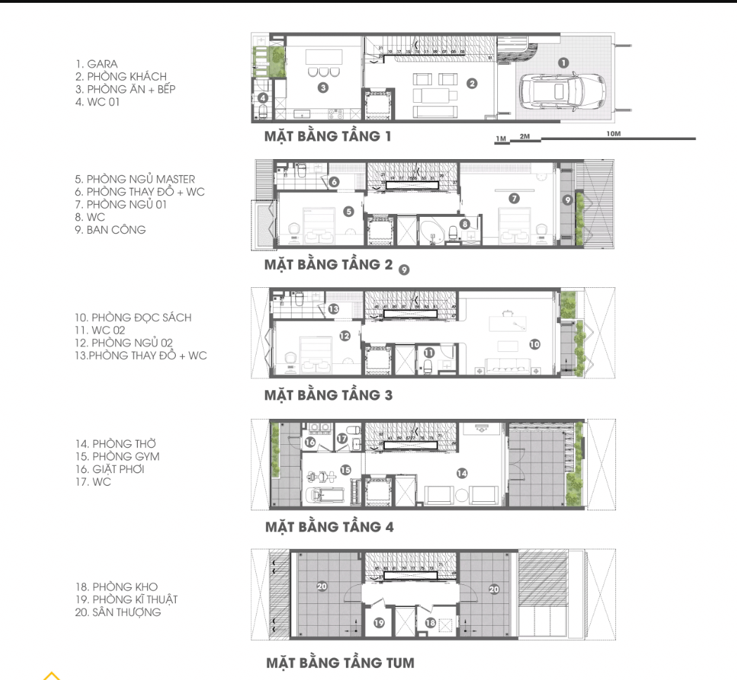
Mẫu thiết kế nhà 5x20m có thang máy 4 tầng 1 tum
Mẫu thiết kế nhà 5x20m có thang máy với cấu trúc 4 tầng 1 tum đi theo kiến trúc tinh giản nhưng vẫn đảm bảo tính thẩm mỹ. Thiết kế công trình nhấn mạnh sự tối giản và hiệu quả, tạo ra không gian tinh tế và tiện nghi, sử dụng kính và gỗ để hòa quyện ánh sáng tự nhiên với không gian xanh. Thang máy được tích hợp khéo léo, giúp di chuyển giữa các tầng thuận tiện. Tầng tum tận dụng làm khu thư giãn hoặc vườn nhỏ, thêm điểm nhấn xanh cho ngôi nhà giữa lòng đô thị. Nội thất chọn lựa kỹ theo phong cách tối giản, chú trọng công năng và sự thông thoáng. Các gam màu trung tính kết hợp ánh sáng tự nhiên tạo cảm giác nhẹ nhàng, thư thái.

Mẫu nhà phố 5 tầng 5x20m có thang máy
Mẫu thiết kế nhà phố 5 tầng 5x20m có thang máy được tối ưu để vừa đảm bảo công năng vừa tạo không gian sống thoáng đãng, rộng rãi. Hệ thống thang máy được bố trí hợp lý, mang đến sự tiện lợi khi di chuyển giữa các tầng, đặc biệt thích hợp cho gia đình nhiều thế hệ. Mẫu nhà phố này gây ấn tượng với mặt tiền độc đáo, thiết kế khung hộp đặc rỗng, vừa tạo điểm nhấn thẩm mỹ vừa giúp đón gió và giảm nhiệt hiệu quả. Tông màu trắng chủ đạo mang lại vẻ thanh lịch, hiện đại, góp phần mở rộng không gian, giúp ngôi nhà sáng sủa và thoáng đãng hơn. Nội thất được chọn lọc kỹ lưỡng với chất liệu tự nhiên như gỗ, đá, gạch men, mang lại sự hài hòa giữa vẻ đẹp sang trọng và cảm giác ấm cúng, gần gũi.
Xem thêm: TOP mẫu bản vẽ cad nhà phố 2 tầng 5×20 đẹp, đầy đủ công năng
Trên đây là tổng hợp các mẫu thiết kế nhà 5x20m có thang máy đẹp, hiện đại và tối ưu công năng. Chúng tôi hy vọng qua bài viết này, các chủ đầu tư có thêm thông tin hữu ích để chọn lựa mẫu thiết kế phù hợp, tạo nên không gian sống tiện nghi, ấn tượng và bền vững cho tổ ấm của mình.



