Với diện tích 80m2, việc thiết kế nhà 2 tầng 3 phòng ngủ 80m2 là giải pháp lý tưởng cho nhiều gia đình Việt. Làm thế nào để căn nhà vừa đảm bảo đủ công năng, có không gian riêng tư cho 3 phòng ngủ mà vẫn giữ được sự thông thoáng, hiện đại? Bài viết này NhaToReview sẽ chia sẻ những kinh nghiệm vàng, giúp bạn kiến tạo nên tổ ấm hoàn hảo trên diện tích 80m2.
Thiết kế nhà 2 tầng 80m2 với 3 phòng ngủ
Khi tạo ra bản thiết kế cho ngôi nhà 2 tầng diện tích 80m2 với 3 phòng ngủ, việc sắp xếp không gian một cách hợp lý đóng vai trò rất quan trọng trong việc tối ưu hóa diện tích sử dụng, mang lại sự tiện nghi và thoải mái cho mọi thành viên trong gia đình. Một bố cục thông minh không chỉ đảm bảo sự thuận tiện hàng ngày mà còn nâng tầm thẩm mỹ cho ngôi nhà. Dưới đây là một số gợi ý về cách bố trí phổ biến mà nhiều gia chủ đã tin tưởng lựa chọn cho kiểu nhà này.
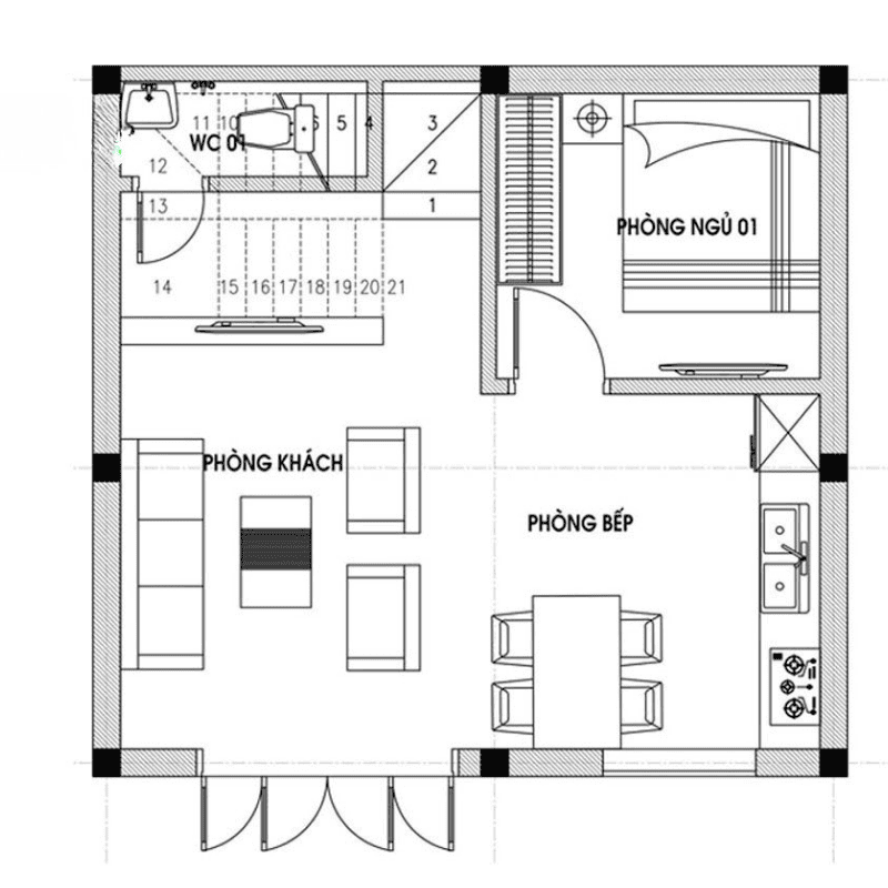
Bố trí mặt bằng tầng 1
Tầng 1 thường được sử dụng làm không gian sinh hoạt chung cho cả gia đình, thiết kế để tận dụng tối đa diện tích. Cách bố trí phổ biến hiện nay thường bao gồm: phòng khách, phòng bếp kết hợp phòng ăn, một phòng ngủ nhỏ, phòng vệ sinh chung, sân trước và khu vực lưu trữ. 
Bố trí mặt bằng tầng 2
Tầng 2 chủ yếu được thiết kế cho nhu cầu nghỉ ngơi và làm việc của các thành viên, bao gồm 2 phòng ngủ, một phòng làm việc hoặc phòng sinh hoạt chung, và một phòng thờ. 
Xem thêm:
Hơn 99 mẫu thiết kế nhà 2 tầng 3 phòng ngủ 80m2 ấn tượng
Việc lựa chọn mẫu thiết kế nhà phù hợp không chỉ giúp tối ưu hóa không gian sống mà còn thể hiện phong cách và gu thẩm mỹ riêng của gia chủ. Khám phá bộ sưu tập hơn 99 mẫu nhà 2 tầng 3 phòng ngủ 80m2 được yêu thích nhất cùng Nhatoreview dưới đây:
Thiết kế nhà 2 tầng 3 phòng ngủ 80m2 với mái Thái sang trọng
Mẫu nhà 2 tầng mái Thái 3 phòng ngủ 80m2 nổi bật với sự sang trọng, phù hợp với nhiều phong cách kiến trúc khác nhau. Mái Thái giúp ngôi nhà trở nên vững chãi, tinh tế và có khả năng chống nóng, chống thấm hiệu quả, rất thích hợp với khí hậu nhiệt đới của Việt Nam. Thêm vào đó, mái dốc còn giúp thoát nước mưa nhanh chóng, bảo vệ công trình lâu dài theo thời gian.

Thiết kế nhà 80m2 3 phòng ngủ 2 tầng mái bằng trẻ trung
Nếu bạn yêu thích sự hiện đại và mạnh mẽ, thiết kế nhà 2 tầng mái bằng 3 phòng ngủ 80m2 chắc chắn sẽ là lựa chọn lý tưởng. Thiết kế này nổi bật với các đường nét vuông vức, hình khối đơn giản nhưng tinh tế. Điểm cộng lớn của mẫu này là có thể tận dụng khu vực mái làm sân thượng, nơi phơi đồ, trồng cây xanh hoặc tạo không gian giải trí ngoài trời. Đồng thời, mái bằng giúp giảm chi phí xây dựng và bảo trì cho gia chủ.

Thiết kế hiện đại cho nhà 2 tầng 3 phòng ngủ 80m2
Phong cách hiện đại luôn là xu hướng được nhiều gia đình trẻ ưu tiên chọn lựa. Mẫu nhà 2 tầng 3 phòng ngủ 80m2 phong cách này mang đến sự tối giản trong các đường nét nhưng vẫn đảm bảo công năng và thẩm mỹ. Không gian sống được bố trí khéo léo để tối ưu hóa ánh sáng tự nhiên từ cửa kính lớn, giúp căn nhà luôn thoáng đãng. So với phong cách cổ điển hay tân cổ điển, thiết kế này giúp tiết kiệm chi phí xây dựng mà vẫn đáp ứng đầy đủ nhu cầu sử dụng.

Mẫu mặt tiền nhà cấp 4 đẹp, click xem ngay: https://nhatoreview.com/mau-nha-cap-4
Mẫu nhà 80m2 3 phòng ngủ 2 tầng theo phong cách tân cổ điển
Kiến trúc tân cổ điển luôn được đánh giá cao nhờ sự kết hợp hài hòa giữa nét đẹp cổ điển và hiện đại. Mẫu nhà 80m2 3 phòng ngủ 2 tầng tân cổ điển mang đến vẻ đẹp sang trọng, đẳng cấp với những đường nét mềm mại, các chi tiết phào chỉ tinh xảo nhưng không quá cầu kỳ. Màu trung tính như trắng, kem hoặc xám nhạt thường được sử dụng để tạo không gian sống thời thượng. Nếu bạn yêu sự trang nhã, thì đây là lựa chọn không thể bỏ qua.

Thiết kế nhà 2 tầng 3 phòng ngủ 80m2 với gara ô tô
Với những gia đình sống tại đô thị, nơi diện tích đất hạn chế và ít có không gian để xe, thiết kế nhà 80m2 3 phòng ngủ với gara ô tô sẽ là giải pháp hoàn hảo. Nhà 2 tầng có gara là lựa chọn tối ưu nhất. Gara thường được sắp xếp ở phía trước hoặc bên hông, liền kề lối ra vào, giúp dễ dàng di chuyển và bảo vệ xe cộ. Thiết kế này không chỉ tạo sự tiện lợi mà còn tối ưu hóa diện tích, phù hợp với những gia đình có ô tô hoặc xe máy cần không gian lưu trữ.

Mẫu nhà 80m2 3 phòng ngủ 2 tầng không gian mở
Cho những ai yêu thích sự thông thoáng và gần gũi thiên nhiên, mẫu thiết kế nhà 2 tầng 3 phòng ngủ 80m2 không gian mở là lựa chọn lý tưởng. Thiết kế này tận dụng tối đa kính cho cửa chính, cửa sổ và cửa phụ, mang ánh sáng tự nhiên vào mọi góc nhà. Ban công, sân thượng và không gian trước nhà được phủ cây xanh, tạo môi trường sống trong lành và mát mẻ. Không chỉ tiết kiệm năng lượng, phong cách này còn mang lại cảm giác thư giãn và thoải mái cho gia đình.

Nhà 2 tầng 3 phòng ngủ 80m2 phong cách tối giản
Thiết kế nhà 2 tầng 3 phòng ngủ 80m2 phong cách tối giản là sự lựa chọn lý tưởng cho những gia đình yêu thích sự đơn giản nhưng đầy đủ chức năng và thẩm mỹ. Kiến trúc được tạo nên từ các khối vuông, mang đến cảm giác vững chắc và hiện đại. Màu sắc chủ đạo là trắng kết hợp xám, tạo nên vẻ trang nhã và tinh tế. Hệ thống cửa sổ và cửa chính bằng kính cường lực giúp tận dụng tối đa ánh sáng tự nhiên, mang lại không gian thông thoáng. Thiết kế này không chỉ tiết kiệm chi phí mà còn thích hợp với nhiều phong cách sống.

Thiết kế nhà 2 tầng 3 phòng ngủ 80m2 mái lệch đặc sắc
Nếu bạn tìm kiếm một thiết kế đặc sắc và nổi bật, mẫu nhà 2 tầng mái lệch 3 phòng ngủ 80m2 là lựa chọn tuyệt vời. Điểm nhấn của nhà nằm ở mái lệch tạo phá cách và ấn tượng mạnh. Màu ngoại thất kết hợp giữa trắng tinh tế và nâu ấm, tạo tổng thể hài hòa. Mẫu này thường có gara ô tô và ban công tầng 2 rộng, nơi trồng cây hoặc làm không gian thư giãn ngoài trời.

Ưu điểm của nhà 2 tầng 3 phòng ngủ 80m2
Những điểm nổi bật của nhà 2 tầng 3 phòng ngủ 80m2 bao gồm:
- Diện tích phù hợp, tối ưu không gian: Với 80m2, nhà 2 tầng 3 phòng ngủ đáp ứng các nhu cầu sinh hoạt chung và riêng tư. Phòng khách, bếp, phòng ăn và phòng ngủ được bố trí hợp lý, đảm bảo tiện nghi hàng ngày.
- Phù hợp cho gia đình đông người: Với 3 phòng ngủ, thiết kế này phù hợp với gia đình 4-6 thành viên, đặc biệt là gia đình nhiều thế hệ. Nếu có ông bà lớn tuổi, một phòng ngủ tầng 1 sẽ giúp dễ dàng di chuyển, đảm bảo tiện lợi và an toàn. Không gian tầng 2 dành cho các phòng ngủ khác, mang đến sự riêng tư cần thiết.

- Thiết kế đa dạng: Một thế mạnh của nhà 2 tầng 3 phòng ngủ 80m2 là sự đa dạng về phong cách. Từ tân cổ điển tới hiện đại, với mái Thái, mái bằng hay mái lệch, gia chủ có thể chọn theo sở thích và ngân sách.
- Chi phí xây dựng hợp lý: So với những mẫu lớn hơn, chi phí xây dựng cho nhà 2 tầng 3 phòng ngủ 80m2 khá ổn, phù hợp với gia đình có ngân sách trung bình. Khách hàng có thể sở hữu nhà tiện nghi và thẩm mỹ mà không quá lo về chi phí.
- Đáp ứng nhu cầu sinh hoạt lâu dài: Mẫu nhà này không chỉ thỏa mãn nhu cầu trước mắt mà còn đáp ứng tốt cho cuộc sống lâu dài của gia đình bạn nhờ không gian bố trí hợp lý và đầy đủ tiện ích. Dù là gia đình trẻ hay nhiều thế hệ, thiết kế nhà 2 tầng với diện tích 80m2 và 3 phòng ngủ đều mang đến sự thoải mái và đầy đủ tiện nghi.

Một số kinh nghiệm khi xây nhà 2 tầng 3 phòng ngủ 80m2
- Xác định mục đích sử dụng: Trước khi bắt tay vào xây dựng ngôi nhà 2 tầng có diện tích 80m2 và 3 phòng ngủ, điều quan trọng là phải làm rõ mục đích sử dụng của bạn. Nếu xây để ở, hãy ưu tiên sự tiện nghi và thoải mái cho các thành viên gia đình. Ngược lại, nếu xây để cho thuê, hãy tập trung vào sự đơn giản, công năng và chi phí tối ưu. Việc đặt mục tiêu ngay từ đầu sẽ giúp quá trình thiết kế và xây dựng diễn ra suôn sẻ, tiết kiệm hơn.
- Chuẩn bị đầy đủ thủ tục pháp lý: Thông thường, các đơn vị nhà thầu chỉ đảm trách phần thi công, do đó các gia đình phải chủ động trong các vấn đề pháp lý. Trước khi tiến hành xây dựng, các giấy tờ cần thiết như giấy phép xây dựng, giấy chứng nhận quyền sử dụng đất và hồ sơ thiết kế cần được hoàn tất, giúp tránh các vấn đề pháp lý không mong muốn.
- Xác định thời điểm thi công: Thời điểm thi công đóng vai trò quan trọng đối với tiến độ và chất lượng công trình. Thường thì các gia đình ưu tiên xây dựng vào mùa khô để tránh khó khăn do thời tiết. Ngoài ra, việc chọn ngày động thổ hợp tuổi gia chủ cũng được chú trọng nhằm mang lại may mắn và thuận lợi trong quá trình thi công.
- Phong cách thiết kế: Để các đơn vị thi công đưa ra phương án phù hợp, gia chủ cần xác định rõ phong cách thiết kế mong muốn. Hiện nay, có nhiều phong cách để lựa chọn như tân cổ điển, hiện đại…
- Xác định màu sắc chủ đạo: Khi chọn màu sơn, gia chủ nên ưu tiên những gam màu phù hợp với mệnh để thu hút may mắn và tài lộc. Ngoài ra, màu sắc cũng cần hài hòa với phong cách thiết kế để đảm bảo tính thẩm mỹ tổng thể. Tuyệt đối tránh chọn màu sắc xung khắc với mệnh gia chủ vì điều này có thể ảnh hưởng đến vận khí của cả gia đình.
- Dự trù chi phí thi công: Bạn cần tính toán chi tiết các khoản chi phí bao gồm chi phí thiết kế, chi phí vật liệu, chi phí nhân công và chi phí phát sinh (thường khoảng 10-15% tổng chi phí). Việc này sẽ giúp tránh tình trạng thiếu hụt ngân sách, đảm bảo tiến trình thi công được liên tục và đúng kế hoạch.
- Lựa chọn đơn vị thi công uy tín: Trước khi ký hợp đồng, bạn nên tham khảo đánh giá từ khách hàng trước, kiểm tra năng lực của nhà thầu và yêu cầu hợp đồng rõ ràng về tiến độ, chi phí và trách nhiệm.

Chi phí xây nhà 2 tầng 3 phòng ngủ 80m2 là bao nhiêu?
- Chi phí xây dựng nhà 2 tầng có diện tích 80m2 và 3 phòng ngủ phụ thuộc vào nhiều yếu tố như thời điểm thi công, địa hình, phong cách thiết kế và vật liệu sử dụng. Trung bình, chi phí xây dựng phần thô và nhân công hoàn thiện sẽ dao động từ 500 – 600 triệu đồng, trong khi chi phí xây dựng trọn gói khoảng từ 800 triệu đến 1 tỷ đồng.
- Bên cạnh việc chọn lựa thiết kế phù hợp, việc am hiểu các kinh nghiệm xây dựng sẽ giúp gia chủ quản lý quá trình thi công hiệu quả và tiết kiệm chi phí. Dưới đây là những kinh nghiệm quý báu bạn nên biết trước khi xây nhà.
Việc thiết kế nhà 2 tầng 3 phòng ngủ 80m2 đòi hỏi sự tính toán kỹ lưỡng về không gian và chi phí. Hy vọng với những gợi ý về mẫu nhà, cách bố trí thông minh trên, bạn sẽ tự tin hơn trong việc xây dựng một ngôi nhà đẹp, tiện nghi và phù hợp với nhu cầu sử dụng của cả gia đình.



