Hiện nay, những căn nhà cấp 4 đang trở thành sự lựa chọn yêu thích từ các vùng nông thôn đến đô thị. Kiến trúc này mang đến nhiều ưu điểm và trải nghiệm thú vị. Trong bài viết này, NhaTO Review sẽ giới thiệu cho bạn những mẫu thiết kế nhà cấp 4 hiện đại đẹp theo phong cách mới nhất. Cùng với đó là những kinh nghiệm hữu ích trong việc thiết kế và thi công những ngôi nhà cấp 4 đảm bảo thẩm mỹ, an toàn và tiết kiệm chi phí. Hãy cùng chúng tôi khám phá ngay!
Mẫu thiết kế nhà cấp 4 đẹp kèm bản vẽ công năng
Nhiều gia chủ hiện nay đặc biệt chú trọng vào việc tìm kiếm một mẫu nhà phù hợp. Bên cạnh đó, việc thiết kế công năng hợp lý với nhu cầu sử dụng cũng cực kỳ quan trọng. NhaTO xin gửi đến bạn những mẫu nhà kèm theo bản vẽ mặt bằng công năng chi tiết.
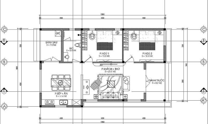
Mẫu nhà cấp 4 hiện đại với 2 phòng ngủ



Mẫu nhà cấp 4 đẹp với sân vườn kèm bản vẽ công năng
Những căn nhà cấp 4 thường thích hợp xây dựng tại các khu đất rộng rãi như vùng ngoại ô hoặc ven đô thị. Do đó, việc đưa sân vườn vào thiết kế nhà cấp 4 là một lựa chọn lý tưởng mà nhiều gia đình ao ước.
Kiến trúc này đem lại cho không gian sống xanh mát và tiện nghi. Bạn nên cân nhắc nhu cầu cụ thể để tạo ra không gian sống hài lòng nhất.





Bản vẽ chức năng sử dụng và vị trí cho nhà cấp 4 sân vườn
Mẫu nhà cấp 4 với hồ bơi đi kèm bản vẽ công năng
Việc sở hữu hồ bơi ngày càng được nhiều gia đình đầu tư và chú trọng. Thiết kế nhà cấp 4 có hồ bơi mang đến một không gian kiến trúc thanh lịch. Rèn luyện thể lực mỗi ngày. Không phải ai cũng có khả năng để sở hữu tiện ích độc đáo này.
Khi xây dựng nhà có hồ bơi, bạn cần cẩn thận trong việc cân nhắc nhu cầu sử dụng và mức đầu tư phù hợp với diện tích đất cũng như khả năng tài chính của bạn. Việc xây hồ bơi sẽ làm tăng chi phí ban đầu và các chi phí vận hành, bảo trì. Bù lại, bạn có thể tận hưởng sự tiện nghi cao cấp ngay trong chính căn nhà của mình.


Ngôi nhà cấp 4 với hồ bơi tiện ích cao cấp
Ý tưởng thiết kế nhà cấp 4 theo những phong cách đa dạng
Hiện tại, có vô số phương án kiến trúc để bạn lựa chọn. Mỗi phong cách mang đến nét đặc trưng riêng và ý tưởng thiết kế độc đáo. NhaTO cung cấp nhiều mẫu nhà cấp 4 theo phong cách và quy mô đa dạng để bạn khám phá.
Mẫu nhà cấp 4 đơn giản nhưng đầy hấp dẫn
Nhà cấp 4 giản dị vẫn được ưa chuộng nhờ khả năng tiết kiệm diện tích xây dựng và chi phí hợp lý, phù hợp với nhiều gia đình.
Những ngôi nhà cấp 4 đơn giản thường ít có các chi tiết cầu kỳ, bố trí và trang trí gọn gàng. Nội thất bên trong thường kết hợp tối giản, đem lại hiệu quả sử dụng tối ưu và tiện lợi cho gia đình bạn.


Thiết kế nhà đơn giản, hiện đại

Kiến trúc nhà tối giản, thân thiện
Mẫu thiết kế nhà cấp 4 hiện đại 1 tầng kèm gác lửng
Nhà đẹp cấp 4 hiện đại với 1 tầng và có gác lửng là sự kết hợp hoàn hảo giữa không gian sống chính và khu vực chức năng phụ trên gác. Phong cách này đem đến sự linh hoạt và tối ưu không gian của ngôi nhà nhỏ.
Đối với nhà cấp 4 có gác lửng, bạn có thể bố trí các khoảng không mở để tạo nên một không gian thoáng đãng và sáng sủa. Thiết kế này không chỉ làm ngôi nhà trở nên bắt mắt mà còn giúp tận dụng ánh sáng tự nhiên tốt hơn, mang lại một không gian sống lý tưởng cho gia đình bạn.
Bạn có thể khám phá thêm: 30 Ý Tưởng Thiết Kế Nội Thất Phòng Khách Liền Bếp Thông Minh


Gác lửng là giải pháp tối ưu không gian
Với thiết kế giản dị nhưng tinh tế và đầy đủ tiện ích cho một cuộc sống hoàn hảo, nhà cấp 4 với chi phí đầu tư hợp lý là sự lựa chọn khôn ngoan cho nhiều gia đình ở Việt Nam. Chính vì thế, kiểu nhà này đã trở thành lựa chọn phổ biến cho nhiều chủ nhà thông thái.

Trong khi biệt thự thể hiện vẻ lộng lẫy, những căn nhà cấp 4 lại khoác lên mình nét giản dị, mộc mạc nhưng luôn mang lại cảm giác thanh lịch và gần gũi. Kiến trúc đơn giản hòa quyện cùng phong cách chủ nhà, tạo sự ấm áp thân thuộc và hài hòa với thiên nhiên.

Thiết kế nhà cấp 4 mái Nhật đẹp mắt
Kiến trúc nhà mái Nhật đang tạo sức hút bởi vẻ đẹp truyền thống từ Nhật Bản, cuốn hút với mái dốc thấp hơn kiểu mái Thái.
Căn nhà mái Nhật mang đến sự thanh thoát và đơn giản. Nội thất và không gian sống được bố trí tinh tế, tập trung vào sự tiện nghi nhưng vẫn nhẹ nhàng. Thiết kế thường sử dụng gam màu nhẹ mang đến cảm giác thoải mái, ít chi tiết cầu kỳ.
Với nhà cấp 4 mái Nhật, gia chủ hoàn toàn có thể thiết kế thêm khoảng sân vườn và hồ cá, tạo nên không gian đậm chất Nhật với vườn tùng hay hồ Koi, góp phần xây dựng một chốn sống yên tĩnh và dễ chịu.
Khám phá nội thất phòng khách phong cách nhật bản

Nhà cấp 4 mái Nhật mang vẻ đẹp tinh tế

Nét tinh tế và thanh lịch trong từng chi tiết kiến trúc

Thiết kế nhà cấp 4 chữ L đầy ấn tượng
Nhà cấp 4 chữ L là một cải tiến từ nhà truyền thống, mang lại không gian rộng rãi và tối ưu diện tích, trở thành sự lựa chọn hiện đại và cuốn hút.
Mô hình nhà chữ L cho phép bạn tạo nên các không gian sinh hoạt riêng tư nhất định. Kết nối với môi trường tự nhiên được tối ưu, giúp tận dụng ánh sáng và gió trời.
Phần không gian chữ L có thể được sử dụng làm hồ bơi hoặc vườn cây, tạo ra một thiết kế lý tưởng cho gia đình bạn.



Nhà cấp 4 chữ L với hồ bơi và kiến trúc lung linh
Thiết kế nhà cấp 4 mái Thái phong cách độc đáo
Những thiết kế độc đáo và khác biệt với kiểu mái Thái chắc chắn sẽ là lựa chọn mà nhiều gia chủ muốn trải nghiệm.Phương pháp thiết kế nhà cấp 4 phổ biến nhất tại Việt Nam là nhà mái Thái cấp 4. Điểm nổi bật của kiểu nhà này chính là phần mái có độ dốc lớn đầy ấn tượng, lấy cảm hứng từ phong cách truyền thống Thái Lan và được thiết kế tỉ mỉ.
Bạn có thể thêm nét riêng cho ngôi nhà với các thiết kế đấu cột, tay nắm cửa, hoa văn đặc biệt hoặc chọn mái vòm cong để tạo sự mềm mại và thu hút ánh nhìn.
Kiến trúc mái Thái với độ dốc cao giúp luồng không khí lưu chuyển, thoát nhiệt linh hoạt, đặc biệt phù hợp với khí hậu nhiệt đới ẩm của Việt Nam. Vì vậy, kiểu kiến trúc này xuất hiện phổ biến ở nhiều nơi.

Mẫu nhà cấp 4 đẹp với mái Thái


Mẫu nhà cấp 4 hiện đại đẹp ở vùng quê
Mẫu nhà cấp 4 hiện đại này tối ưu hóa việc sử dụng ánh sáng tự nhiên, tạo ra sự hài hòa với không gian và tận dụng các nguyên liệu tự nhiên, xây dựng một không gian sống mở, kết nối với môi trường thiên nhiên xung quanh.


Mẫu thiết kế nhà cấp 4 đẹp ở thôn quê ưa thích nhất Việt Nam
Mẫu nhà cấp 4 đẹp tại vùng quê được yêu chuộng nhất Việt NamThiết kế nhà cấp 4 hiện đại với khung thép
Nhà cấp 4 sử dụng cấu trúc khung thép linh hoạt với thiết kế tiết kiệm năng lượng và bền vững. Nhờ vào khung thép, bạn có thể dễ dàng điều chỉnh kích thước và bố trí nội thất linh hoạt. Khung thép không chỉ cung cấp độ bền cao mà còn khả năng chịu trọng lượng tốt, giữ nhiệt và giảm tiếng ồn một cách tối ưu. Đây thực sự là sự lựa chọn lý tưởng cho những người mong muốn một ngôi nhà đơn giản, bền vững và tiết kiệm năng lượng.


Thiết kế nhà cấp 4 khung thép hiện đại nhất nước Việt Nam

Mẫu nhà cấp 4 một tầng, hai phòng ngủ
Với thiết kế gọn nhẹ và tiện nghi, mẫu nhà cấp 4 một tầng và hai phòng ngủ là lựa chọn lý tưởng cho những ai mong muốn không gian sống giản dị và thoải mái.Quản lý dễ dàng và tiết kiệm chi phí xây dựng cũng như bảo trì.



Mẫu nhà cấp 4 theo phong cách Nhật Bản
Mẫu nhà cấp 4 mang phong cách Nhật Bản tạo ra sự giản dị, tinh tế và gần gũi với thiên nhiên. Thiết kế mở và tối giản, sử dụng vật liệu tự nhiên giúp tạo nên không gian sống trong lành, nhấn mạnh mối quan hệ hài hòa giữa con người và thiên nhiên.



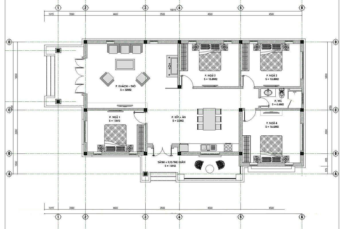
Mẫu nhà cấp 4, một tầng có 4 phòng ngủ
Ngôi nhà cấp 4 với một tầng và 4 phòng ngủ tạo ra không gian sống rộng rãi và thoải mái. Mang lại sự riêng tư mà mọi thành viên trong gia đình đều mong muốn, kiểu thiết kế này mang đến cảm giác thoáng đãng và đầy đủ tiện nghi cho gia đình đông thành viên.
Với dạng nhà này, quan trọng là đầu tư một cách hợp lý để tránh ngân sách không cần thiết cho các phòng ngủ không thường xuyên sử dụng.



Nhà cấp 4 với mái Thái, 4 phòng ngủ
Thiết kế nhà cấp 4 hiện đại, 1 tầng với 3 phòng ngủ
Ngôi nhà cấp 4, một tầng với 3 phòng ngủ mang lại sự tiện nghi tối ưu. Không gian riêng tư và thoải mái cho mỗi thành viên trong gia đình. Mẫu nhà đơn giản, đáp ứng nhu cầu của hầu hết gia đình.
Với số lượng phòng ngủ giới hạn, thiết kế này lý tưởng cho những gia đình không quá đông thành viên. Đây cũng là mẫu nhà phổ biến hiện nay. Thiết kế linh hoạt của 3 phòng ngủ giúp dễ dàng tiếp đón người thân và bạn bè trong dịp lễ, tết.cận nhanh chóng và thuận tiện hơn. Với sự dễ dàng trong việc di chuyển và thiết kế thân thiện, nhà cấp 4 trở thành lựa chọn lý tưởng cho gia đình có người lớn tuổi hoặc người gặp khó khăn trong việc đi lại.cận và sử dụng thuận tiện, an toàn mà không cần phải di chuyển lên xuống nhiều tầng. Ngôi nhà cấp 4 là lựa chọn tuyệt vời với nhiều tiện ích, giúp người lớn tuổi dễ dàng chăm sóc bản thân và duy trì cuộc sống tự lập.

Những điều cần lưu ý khi thiết kế nhà cấp 4 mà bạn nên biết
Một số kinh nghiệm trong thiết kế và thi công nhà cấp 4 có thể hữu ích cho bạn.
Tận dụng ánh sáng và gió tự nhiên
Ánh sáng và gió tự nhiên nắm giữ vai trò quan trọng trong thiết kế nhà cấp 4. Sử dụng các loại cửa sổ, cửa lùa và cửa chính thông minh là điều cần thiết. Mục tiêu chính là tối ưu hóa việc sử dụng ánh sáng mặt trời và gió tự nhiên. Điều này không chỉ giúp tiết kiệm năng lượng mà còn tạo ra một không gian sống thân thiện, sáng sủa và trong lành.

Lựa chọn đồ nội thất thông minh
Trong thiết kế nhà cấp 4, việc ưu tiên lựa chọn đồ nội thất thông minh là điều rất nên cân nhắc. Bao gồm các loại nội thất đa năng và tối ưu hóa không gian như: giường kéo, tủ chứa đồ thông minh, bàn ăn gấp gọn và nhiều giải pháp lưu trữ thông minh khác. Nội thất thông minh giúp tối ưu hóa không gian sống và đem lại tiện nghi cho gia đình bạn.
Tận dụng hiệu quả diện tích đất
Với thiết kế nhà cấp 4 theo phong cách hiện đại, việc tận dụng mọi mét vuông trở nên hết sức quan trọng. Bạn có thể áp dụng các giải pháp thiết kế thông minh như làm tầng lửng, trang trí sân vườn, mái che và không gian ngoài trời. Điều này giúp mở rộng không gian sống và tạo cảm giác rộng rãi cho ngôi nhà của bạn.
Những mẫu nhà cấp 4 hiện đại năm 2025 không chỉ mang đến sự tiện nghi, thẩm mỹ mà còn đáp ứng xu hướng thiết kế bền vững và thông minh. Với hơn 50 mẫu nhà đẹp được tổng hợp trong bài viết, hy vọng bạn đã tìm thấy ý tưởng phù hợp cho tổ ấm của mình. Hãy theo dõi Nhà TO để cập nhật những xu hướng thiết kế nhà mới nhất và đừng ngần ngại liên hệ để được tư vấn chi tiết! 🚀🏡


