Vì sao nên quan tâm đến kích thước ống thoát lavabo?
Kích thước ống thoát lavabo không chỉ là các chỉ số kỹ thuật mà còn ảnh hưởng trực tiếp đến hiệu quả hoạt động và tuổi thọ của hệ thống thoát nước nhà bạn.
-
Đảm bảo nước lưu thông suôn sẻ: Kích thước ống phù hợp giúp nước thải thoát nhanh gọn, ngăn tình trạng trũng nước trong chậu.
-
Ngăn chặn tắc nghẽn: Ống thoát lavabo quá nhỏ dễ dàng bị cản trở bởi tóc, xà phòng, làm nước thoát chậm hoặc không lưu thông. Điều này gây bất tiện và không đảm bảo vệ sinh. Ngược lại, ống quá lớn có thể gây lãng phí vật liệu.
-
Kéo dài tuổi thọ hệ thống: Lựa chọn kích thước ống chính xác giúp hệ thống thoát nước vận hành ổn định, hạn chế ma sát và mài mòn, kéo dài thời gian sử dụng.
-
Giảm tiếng ồn: Ống thoát nước có kích thước chính xác sẽ giảm âm thanh khi nước chảy, tạo cảm giác dễ chịu khi sử dụng.
-
Đảm bảo thẩm mỹ: Ống thoát lắp đặt đúng kích thước sẽ giúp duy trì thẩm mỹ không gian phòng tắm.
Xem thêm: thiết kế nhà vệ sinh nhỏ hẹp
Các kích thước ống thoát lavabo thường thấy hiện nay
Dưới đây là các kích thước ống thoát lavabo bạn nên tham khảo:
Kích thước ống thoát lavabo phổ biến
Hiện có các ống thoát lavabo kích thước 32mm, 40mm, 50mm với từng ứng dụng như sau:
Ống thoát lavabo 32mm: Thường sử dụng cho lavabo nhỏ, phù hợp với không gian hạn chế như nhà vệ sinh chung cư, phòng tắm nhỏ. Ống 32mm nhẹ, dễ lắp đặt nhưng có thể hạn chế lượng nước thoát khi dùng cho lavabo lớn.

Ống thoát lavabo 40mm: Kích thước phổ biến được dùng rộng rãi trong dân dụng. Ống 40mm thoát nước tốt, phù hợp với đa số loại lavabo và nhu cầu sử dụng của gia đình.

Ống thoát lavabo 50mm: Dùng cho công trình công cộng, nhà hàng, khách sạn hoặc khu công nghiệp cần lưu lượng thoát nước lớn. Ống 50mm thoát nước nhanh, giảm nguy cơ tắc nghẽn. 
Có thể bạn quan tâm: kích thước cửa sổ nhà vệ sinh
Kích thước ống xả lavabo
Ống thoát và ống xả khác biệt về chức năng, vị trí trong hệ thống. Ống thoát kết nối, dẫn nước từ lavabo đến hệ thống tiêu thoát chung. Ống xả hướng nước thải ra ngoài và thường kèm van ngăn mùi. Để đảm bảo thoát nước hiệu quả và hạn chế mùi, nên lựa chọn kích thước ống thoát phù hợp.phổ biến là 40mm.

Kích cỡ ống chờ lavabo
Ống chờ cho lavabo được lắp đặt trong giai đoạn thi công hệ thống nước. Ống này sẽ kết nối với lavabo trong tương lai. Ống chờ thường được đặt sẵn dưới sàn hoặc trong tường, giúp tiết kiệm thời gian lắp đặt lavabo sau này. Ngoài ra, bạn có thể dễ dàng thay đổi hoặc nâng cấp lavabo mà vẫn đảm bảo tính thẩm mỹ và tiện ích.

Ống chờ lavabo bao gồm cả ống cấp nước và ống thoát nước. Cấp nước có thể là nước nóng và lạnh. Kích thước phổ biến của ống chờ là 40mm, phù hợp với nhiều loại lavabo. Khi thiết kế, cần đặt ống chờ ở vị trí thuận lợi và duy trì độ nghiêng chuẩn để đảm bảo thoát nước hiệu quả.
Cách đặt ống thoát lavabo đúng chuẩn
Để hệ thống thoát nước hoạt động mượt mà, cần đặt ống thoát đúng tiêu chuẩn khi lắp đặt. Sau đây là hướng dẫn cách đặt ống thoát lavabo đúng chuẩn:
Lựa chọn kích thước ống thoát lavabo
Khi lắp đặt ống thoát lavabo, điều quan trọng đầu tiên là kích thước và kỹ thuật. Cụ thể:
-
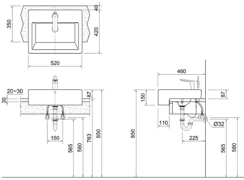
Về chiều cao khuyến nghị: Ống thoát cần đặt ở độ cao từ 50cm đến 60cm (tính từ sàn đến điểm lắp). Đây là độ cao phù hợp để kết nối dễ dàng với lavabo và ngăn ngừa rò rỉ nước.
-
Về khoảng cách và độ nghiêng: Phải đảm bảo khoảng cách hợp lý giữa lavabo và các thiết bị khác để tránh va chạm. Đồng thời, duy trì độ nghiêng tối thiểu 2% giúp nước chảy thoát nhanh, không ứ đọng.
Cần chú ý đến độ cao, khoảng cách và độ nghiêng để hệ thống thoát nước hoạt động tối ưu.

Các lưu ý khi lắp đặt
Để đảm bảo hoạt động hiệu quả, khi lắp đặt ống thoát lavabo cần lưu ý một số điểm:
-
Kiểm tra kỹ lưỡng trước khi lắp, đảm bảo các khớp nối không có khe hở gây rò rỉ nước. Nước bị rò có thể gây mất vệ sinh và tăng chi phí sinh hoạt của gia đình.
-
Tránh đặt ống quá cao hay quá thấp để không gặp khó khăn khi kết nối với lavabo. Nếu không, hiệu quả thoát nước sẽ giảm và ảnh hưởng đến thẩm mỹ công trình.
Những lỗi cần tránh khi chọn kích thước ống thoát lavabo
Một số lỗi khi chọn kích thước có thể gây ra những vấn đề nghiêm trọng. Hiểu rõ điều này giúp bạn tránh được nhiều rắc rối gây ảnh hưởng đến chất lượng cuộc sống.
Chọn kích thước không đúng
Lựa chọn sai kích thước ống thoát lavabo có thể dẫn đến:
-
Ống quá nhỏ: Sẽ gây tắc nghẽn hoặc thoát nước chậm, dẫn đến ứ đọng hay mùi khó chịu.
-
Ống quá lớn: Dẫn đến chi phí lắp đặt tăng cao mà hiệu quả không được cải thiện nhiều.
Nên chọn ống có kích thước phù hợp với lavabo để tránh sửa chữa hoặc thay thế tốn kém.

Phớt lờ yếu tố áp lực nước
Việc chọn kích thước ống thoát lavabo không chỉ dựa vào thông số kỹ thuật mà còn cần xem xét yếu tố áp lực nước. Áp lực nước quyết định tốc độ và lưu lượng nước chảy qua ống, đảm bảo khả năng thoát nước tối ưu.
Đó là yếu tố tác động trực tiếp đến hiệu suất hoạt động của hệ thống thoát nước.
Áp lực nước lớn, ống thoát nhỏ bé: Khi áp lực nước cấp cho lavabo quá mạnh nhưng kích cỡ ống thoát lại không đủ lớn, nước sẽ di chuyển nhanh chóng và tạo ra lực đẩy mạnh lên thành ống. Điều này có thể gây ra một số vấn đề sau:
-
Tắc ống: Vật cản như tóc, xà phòng dễ bị cuốn trôi và bám chặt vào thành ống, gây tắc dòng nước.
-
Vỡ ống: Áp lực nước quá mức có thể phá vỡ mối nối hoặc thậm chí toàn bộ ống thoát, dẫn đến rò rỉ nước và làm hư hỏng khu vực lân cận.
-
Tiếng động lớn: Nước chảy tốc độ cao qua ống bé sẽ tạo ra tiếng ồn gây khó chịu.
Áp lực nước yếu, ống thoát lớn: Ngược lại, nếu áp lực nước quá thấp mà ống thoát lại khá lớn, nước sẽ chảy chậm rì, dẫn đến tình trạng ứ đọng và cơ hội cho vi khuẩn phát triển, gây mùi hôi.
Khám phá thêm: Trang trí cây xanh trong nhà vệ sinh: Top 15 loại cây đẹp, dễ chăm
Đặt sai vị trí
Lỗi đặt vị trí sai có thể là không bảo đảm độ nghiêng hoặc kết nối không đúng. Nếu độ nghiêng dưới 2%, nước không thoát hết gây đọng nước, vi khuẩn phát triển và mùi khó chịu. Kết nối sai có thể khiến hệ thống rò rỉ nước, tuổi thọ kém và chi phí sửa chữa cao.

Để hệ thống thoát nước hoạt động hiệu quả và lâu bền, việc lựa chọn kích thước ống thoát lavabo là vô cùng quan trọng. Bạn nên nghiên cứu kỹ lưỡng tiêu chuẩn và nhờ sự tư vấn từ chuyên gia để tối ưu hóa hệ thống thoát nước cho ngôi nhà của mình.
Tìm đọc thêm: https://nhatoreview.com/mau-nha-cap-4
Vì sao nên quan tâm đến kích thước ống thoát lavabo?
Kích thước ống thoát lavabo không chỉ là các chỉ số kỹ thuật mà còn ảnh hưởng trực tiếp đến hiệu quả hoạt động và tuổi thọ của hệ thống thoát nước nhà bạn.
-
Đảm bảo nước lưu thông suôn sẻ: Kích thước ống phù hợp giúp nước thải thoát nhanh gọn, ngăn tình trạng trũng nước trong chậu.
-
Ngăn chặn tắc nghẽn: Ống thoát lavabo quá nhỏ dễ dàng bị cản trở bởi tóc, xà phòng, làm nước thoát chậm hoặc không lưu thông. Điều này gây bất tiện và không đảm bảo vệ sinh. Ngược lại, ống quá lớn có thể gây lãng phí vật liệu.
-
Kéo dài tuổi thọ hệ thống: Lựa chọn kích thước ống chính xác giúp hệ thống thoát nước vận hành ổn định, hạn chế ma sát và mài mòn, kéo dài thời gian sử dụng.
-
Giảm tiếng ồn: Ống thoát nước có kích thước chính xác sẽ giảm âm thanh khi nước chảy, tạo cảm giác dễ chịu khi sử dụng.
-
Đảm bảo thẩm mỹ: Ống thoát lắp đặt đúng kích thước sẽ giúp duy trì thẩm mỹ không gian phòng tắm.
Xem thêm: thiết kế nhà vệ sinh nhỏ hẹp
Các kích thước ống thoát lavabo thường thấy hiện nay
Dưới đây là các kích thước ống thoát lavabo bạn nên tham khảo:
Kích thước ống thoát lavabo phổ biến
Hiện có các ống thoát lavabo kích thước 32mm, 40mm, 50mm với từng ứng dụng như sau:
Ống thoát lavabo 32mm: Thường sử dụng cho lavabo nhỏ, phù hợp với không gian hạn chế như nhà vệ sinh chung cư, phòng tắm nhỏ. Ống 32mm nhẹ, dễ lắp đặt nhưng có thể hạn chế lượng nước thoát khi dùng cho lavabo lớn.

Ống thoát lavabo 40mm: Kích thước phổ biến được dùng rộng rãi trong dân dụng. Ống 40mm thoát nước tốt, phù hợp với đa số loại lavabo và nhu cầu sử dụng của gia đình.

Ống thoát lavabo 50mm: Dùng cho công trình công cộng, nhà hàng, khách sạn hoặc khu công nghiệp cần lưu lượng thoát nước lớn. Ống 50mm thoát nước nhanh, giảm nguy cơ tắc nghẽn. 
Có thể bạn quan tâm: kích thước cửa sổ nhà vệ sinh
Kích thước ống xả lavabo
Ống thoát và ống xả khác biệt về chức năng, vị trí trong hệ thống. Ống thoát kết nối, dẫn nước từ lavabo đến hệ thống tiêu thoát chung. Ống xả hướng nước thải ra ngoài và thường kèm van ngăn mùi. Để đảm bảo thoát nước hiệu quả và hạn chế mùi, nên lựa chọn kích thước ống thoát phù hợp.phổ biến là 40mm.

Kích cỡ ống chờ lavabo
Ống chờ cho lavabo được lắp đặt trong giai đoạn thi công hệ thống nước. Ống này sẽ kết nối với lavabo trong tương lai. Ống chờ thường được đặt sẵn dưới sàn hoặc trong tường, giúp tiết kiệm thời gian lắp đặt lavabo sau này. Ngoài ra, bạn có thể dễ dàng thay đổi hoặc nâng cấp lavabo mà vẫn đảm bảo tính thẩm mỹ và tiện ích.

Ống chờ lavabo bao gồm cả ống cấp nước và ống thoát nước. Cấp nước có thể là nước nóng và lạnh. Kích thước phổ biến của ống chờ là 40mm, phù hợp với nhiều loại lavabo. Khi thiết kế, cần đặt ống chờ ở vị trí thuận lợi và duy trì độ nghiêng chuẩn để đảm bảo thoát nước hiệu quả.
Cách đặt ống thoát lavabo đúng chuẩn
Để hệ thống thoát nước hoạt động mượt mà, cần đặt ống thoát đúng tiêu chuẩn khi lắp đặt. Sau đây là hướng dẫn cách đặt ống thoát lavabo đúng chuẩn:
Lựa chọn kích thước ống thoát lavabo
Khi lắp đặt ống thoát lavabo, điều quan trọng đầu tiên là kích thước và kỹ thuật. Cụ thể:
-
Về chiều cao khuyến nghị: Ống thoát cần đặt ở độ cao từ 50cm đến 60cm (tính từ sàn đến điểm lắp). Đây là độ cao phù hợp để kết nối dễ dàng với lavabo và ngăn ngừa rò rỉ nước.
-
Về khoảng cách và độ nghiêng: Phải đảm bảo khoảng cách hợp lý giữa lavabo và các thiết bị khác để tránh va chạm. Đồng thời, duy trì độ nghiêng tối thiểu 2% giúp nước chảy thoát nhanh, không ứ đọng.
Cần chú ý đến độ cao, khoảng cách và độ nghiêng để hệ thống thoát nước hoạt động tối ưu.

Các lưu ý khi lắp đặt
Để đảm bảo hoạt động hiệu quả, khi lắp đặt ống thoát lavabo cần lưu ý một số điểm:
-
Kiểm tra kỹ lưỡng trước khi lắp, đảm bảo các khớp nối không có khe hở gây rò rỉ nước. Nước bị rò có thể gây mất vệ sinh và tăng chi phí sinh hoạt của gia đình.
-
Tránh đặt ống quá cao hay quá thấp để không gặp khó khăn khi kết nối với lavabo. Nếu không, hiệu quả thoát nước sẽ giảm và ảnh hưởng đến thẩm mỹ công trình.
Những lỗi cần tránh khi chọn kích thước ống thoát lavabo
Một số lỗi khi chọn kích thước có thể gây ra những vấn đề nghiêm trọng. Hiểu rõ điều này giúp bạn tránh được nhiều rắc rối gây ảnh hưởng đến chất lượng cuộc sống.
Chọn kích thước không đúng
Lựa chọn sai kích thước ống thoát lavabo có thể dẫn đến:
-
Ống quá nhỏ: Sẽ gây tắc nghẽn hoặc thoát nước chậm, dẫn đến ứ đọng hay mùi khó chịu.
-
Ống quá lớn: Dẫn đến chi phí lắp đặt tăng cao mà hiệu quả không được cải thiện nhiều.
Nên chọn ống có kích thước phù hợp với lavabo để tránh sửa chữa hoặc thay thế tốn kém.

Phớt lờ yếu tố áp lực nước
Việc chọn kích thước ống thoát lavabo không chỉ dựa vào thông số kỹ thuật mà còn cần xem xét yếu tố áp lực nước. Áp lực nước quyết định tốc độ và lưu lượng nước chảy qua ống, đảm bảo khả năng thoát nước tối ưu.
Đó là yếu tố tác động trực tiếp đến hiệu suất hoạt động của hệ thống thoát nước.
Áp lực nước lớn, ống thoát nhỏ bé: Khi áp lực nước cấp cho lavabo quá mạnh nhưng kích cỡ ống thoát lại không đủ lớn, nước sẽ di chuyển nhanh chóng và tạo ra lực đẩy mạnh lên thành ống. Điều này có thể gây ra một số vấn đề sau:
-
Tắc ống: Vật cản như tóc, xà phòng dễ bị cuốn trôi và bám chặt vào thành ống, gây tắc dòng nước.
-
Vỡ ống: Áp lực nước quá mức có thể phá vỡ mối nối hoặc thậm chí toàn bộ ống thoát, dẫn đến rò rỉ nước và làm hư hỏng khu vực lân cận.
-
Tiếng động lớn: Nước chảy tốc độ cao qua ống bé sẽ tạo ra tiếng ồn gây khó chịu.
Áp lực nước yếu, ống thoát lớn: Ngược lại, nếu áp lực nước quá thấp mà ống thoát lại khá lớn, nước sẽ chảy chậm rì, dẫn đến tình trạng ứ đọng và cơ hội cho vi khuẩn phát triển, gây mùi hôi.
Khám phá thêm: Trang trí cây xanh trong nhà vệ sinh: Top 15 loại cây đẹp, dễ chăm
Đặt sai vị trí
Lỗi đặt vị trí sai có thể là không bảo đảm độ nghiêng hoặc kết nối không đúng. Nếu độ nghiêng dưới 2%, nước không thoát hết gây đọng nước, vi khuẩn phát triển và mùi khó chịu. Kết nối sai có thể khiến hệ thống rò rỉ nước, tuổi thọ kém và chi phí sửa chữa cao.

Để hệ thống thoát nước hoạt động hiệu quả và lâu bền, việc lựa chọn kích thước ống thoát lavabo là vô cùng quan trọng. Bạn nên nghiên cứu kỹ lưỡng tiêu chuẩn và nhờ sự tư vấn từ chuyên gia để tối ưu hóa hệ thống thoát nước cho ngôi nhà của mình.
Tìm đọc thêm: https://nhatoreview.com/mau-nha-cap-4

