Phường Trương Định không chỉ là tâm điểm của quận Hai Bà Trưng với lợi thế về vị trí mà còn là nơi hội tụ các yếu tố phát triển, hứa hẹn những chuyển mình mạnh mẽ. Để hiểu rõ hơn về tiềm năng cũng như định hướng phát triển của khu vực này, quý độc giả có thể tham khảo thêm thông tin chi tiết tại NHATO Review.

Tổng quan về phường Trương Định, quận Hai Bà Trưng, Hà Nội
Phường Trương Định không chỉ sở hữu vị trí địa lý đắc địa mà còn chứng kiến sự phát triển vượt bậc về y tế, giáo dục và hạ tầng giao thông. Những yếu tố này tạo nền tảng vững chắc cho sự tăng trưởng kinh tế, đóng góp đáng kể vào sự thịnh vượng chung của quận Hai Bà Trưng và toàn thủ đô Hà Nội.
Vị trí địa lý chiến lược
Nằm tại trung tâm quận Hai Bà Trưng, phường Trương Định mang trong mình bề dày lịch sử và vị thế chiến lược quan trọng. Tên gọi của phường được đặt theo vị anh hùng dân tộc Trương Định, người đã có những đóng góp to lớn trong cuộc khởi nghĩa chống thực dân Pháp tại miền Nam vào thế kỷ 19.
Phường có vị trí tiếp giáp với các khu vực quan trọng như phường Đồng Tâm, Bạch Mai, Quỳnh Lôi và Tương Mai. Chỉ với khoảng cách 10-15 phút di chuyển, cư dân có thể dễ dàng tiếp cận Hồ Hoàn Kiếm, trung tâm văn hóa và thương mại sầm uất nhất của Hà Nội. Gần kề đó là Trung tâm thương mại Chợ Mơ, cung cấp không gian mua sắm và giải trí đa dạng cho mọi người.
Hơn nữa, phường Trương Định còn được hưởng lợi từ sự hiện diện của các cơ sở y tế và giáo dục hàng đầu. Các bệnh viện uy tín như Bạch Mai, Việt Pháp, Thanh Nhàn cùng với các trường đại học danh tiếng như Đại học Xây Dựng, Đại học Bách Khoa, Đại học Kinh Tế Quốc Dân đều nằm trong khu vực lân cận, tạo nên một môi trường sống tiện nghi, đầy đủ và lý tưởng cho cư dân.

Phường Trương Định, quận Hai Bà Trưng, Hà Nội đang chứng kiến tốc độ phát triển đô thị hóa nhanh chóng (Nguồn: Dân Trí)
Quy mô diện tích và mật độ dân số
Theo số liệu thống kê cập nhật từ Wikipedia, phường Trương Định có tổng diện tích khoảng 0,52 km2. Tính đến năm 2022, dân số của phường là 21.087 người, dẫn đến mật độ dân số rất cao, đạt khoảng 40.551 người/km2. Mật độ dân số này đặt ra những thách thức đáng kể trong công tác quản lý an ninh trật tự, bảo vệ môi trường và đòi hỏi các chính sách xã hội cần được chú trọng để đảm bảo và nâng cao chất lượng cuộc sống cho người dân.
Hệ thống hạ tầng giao thông
Hạ tầng giao thông tại phường Trương Định đóng vai trò then chốt trong việc thúc đẩy phát triển kinh tế – xã hội của khu vực. Các tuyến đường huyết mạch như Đại La, Minh Khai, Bạch Mai và Trương Định là những trục giao thông chính, kết nối phường với các quận trung tâm khác của thành phố. Đặc biệt, các tuyến đường Trương Định và Đại La thường xuyên có mật độ phương tiện cao, góp phần quan trọng vào hoạt động giao thương.
Tuy nhiên, do mật độ dân cư cao, hệ thống hạ tầng giao thông của phường đang trong giai đoạn được đầu tư nâng cấp và hoàn thiện. Nhiều dự án cải tạo, mở rộng các tuyến đường lớn như Đại La và Minh Khai đang được triển khai, nhằm giải quyết tình trạng ùn tắc giao thông và đáp ứng nhu cầu phát triển ngày càng tăng của địa phương.
Bên cạnh đó, phường còn tiếp giáp với các trục đường lớn khác như Trường Chinh, Giải Phóng và Đại Cồ Việt. Điều này tạo điều kiện thuận lợi cho cư dân di chuyển đến các quận Hoàn Kiếm, Đống Đa, Thanh Xuân và Hoàng Mai một cách dễ dàng. Nhờ vậy, phường Trương Định không chỉ là một khu vực có vị trí thuận lợi mà còn là điểm giao thoa quan trọng của nhiều tuyến giao thông huyết mạch, hứa hẹn một tương lai phát triển bền vững.

Hệ thống giao thông tại phường Trương Định đóng vai trò cốt lõi trong sự phát triển kinh tế (Ảnh: Tạp chí tài chính)
Thị trường bất động sản phường Trương Định, quận Hai Bà Trưng, Hà Nội năm 2024
Diễn biến giá nhà đất và căn hộ chung cư tại phường Trương Định
Theo dữ liệu từ Batdongsan tính đến tháng 10/2024, giá nhà riêng tại phường Trương Định, quận Hai Bà Trưng có những biến động đáng chú ý:
- Khoảng giá bán phổ biến dao động từ 29,2 triệu đến 660,38 triệu đồng/m2.
- Mức giá bán tập trung nhiều nhất là khoảng 173 triệu đồng/m2 (tháng 9/2024).
- Trong vòng một năm qua, giá bán đã ghi nhận mức tăng trưởng ấn tượng, lên tới 39,5%.
Một số giao dịch nhà đất tiêu biểu được ghi nhận trên trang Batdongsan bao gồm:
- Một tòa căn hộ dịch vụ với diện tích 75m2 có giá bán 17,5 tỷ đồng, tương đương 233,33 triệu đồng/m2.
- Nhà phân lô tại khu vực Nguyễn An Ninh, diện tích 51m2, được bán với giá 8 tỷ đồng (156,86 triệu đồng/m2).
- Nhà mới xây tại giao lộ Đại La – Trần Đại Nghĩa, diện tích 43m2, có giá từ 6,7 tỷ đồng (155,81 triệu đồng/m2).

Các căn nhà mặt tiền trên đường Đại La, phường Trương Định (Nguồn: Batdongsan)
Các dự án bất động sản nổi bật tại phường Trương Định
Dưới đây là thông tin chi tiết về một số dự án bất động sản trọng điểm tại phường Trương Định, quý khách hàng có thể tham khảo:
Minori Village
- Tên dự án: Minori Village
- Chủ đầu tư: Công ty Cổ phần Đầu tư Bất động sản Toàn Cầu (GP Invest)
- Địa chỉ: Số 67A Trương Định, phường Trương Định, quận Hai Bà Trưng, Hà Nội
- Tổng diện tích đất quy hoạch: 10.228 m2
- Diện tích đất dự kiến mở đường: 686,9 m2
- Diện tích xây dựng: 4.572 m2
- Tổng diện tích sàn xây dựng: 22.274 m2
- Quy mô: Bao gồm các loại hình căn hộ, văn phòng, nhà liền kề và biệt thự.
- Diện tích các lô nhà vườn và biệt thự: Dao động từ 84 m2 đến 180 m2.
- Tỷ lệ xây dựng: 47,9%.
Trương Định Complex
- Tên dự án: Trương Định Complex
- Vị trí: Đường Trương Định, phường Trương Định, quận Hai Bà Trưng, Hà Nội
- Chủ đầu tư: Công ty Cổ phần Đầu tư và Phát triển Nhà Hà Nội 22
- Diện tích đất: 4.737,9 m2
- Diện tích xây dựng: 2.365 m2
- Quy mô: Gồm một tòa tháp cao 18 tầng (không bao gồm tầng hầm), cung cấp 224 căn hộ.
- Số lượng căn hộ mỗi sàn: 12 căn.
- Mật độ xây dựng: 49%.
- Thời gian khởi công: Tháng 6/2015.
- Thời gian bàn giao dự kiến: Quý II/2017.
Chung cư 141 Trương Định
- Tên dự án: Chung cư 141 Trương Định
- Địa chỉ: Số 141 Trương Định, phường Trương Định, quận Hai Bà Trưng, Hà Nội
- Chủ đầu tư: Công ty Cổ phần Tập đoàn Đầu tư Ba Đình (B.I.G)
- Tổng diện tích đất: 2,8 ha
- Quy mô: Một tòa nhà cao 17 tầng.
- Diện tích căn hộ: Từ 80 m2 đến 112 m2.
- Mật độ xây dựng: 55%.
- Thời gian khởi công: Năm 2007.
- Thời gian hoàn thành: Quý IV/2009.
Cập nhật bản đồ quy hoạch phường Trương Định, quận Hai Bà Trưng, Hà Nội mới nhất
Phường Trương Định, quận Hai Bà Trưng, Hà Nội đang nổi lên như một tâm điểm phát triển đô thị với tốc độ đô thị hóa nhanh chóng. Nhờ sự đầu tư mạnh mẽ vào hạ tầng và các dự án phát triển, khu vực này đang dần thay đổi diện mạo và khẳng định vị thế là một trong những khu vực có tiềm năng phát triển nổi bật nhất tại Hà Nội. Cùng cập nhật những thông tin mới nhất về bản đồ quy hoạch và kế hoạch phát triển của phường Trương Định.
Quy hoạch chi tiết phường Trương Định, quận Hai Bà Trưng, Hà Nội
Theo các kế hoạch quy hoạch đô thị của Hà Nội, phường Trương Định được phân bổ trong hai phân khu chính: Phân khu H1-4 và Phân khu H2-4. Cụ thể:
- Phân khu H1-4: Được phê duyệt vào năm 2021, khu vực này nằm giữa đường Giải Phóng và sông Hồng. Định hướng phát triển của phân khu này là các dự án đô thị hiện đại, nhằm mục tiêu cải thiện không gian sống và tiện ích cho cư dân.
- Phân khu H2-4: Được phê duyệt vào năm 2015, nằm ở phía Nam đường Minh Khai. Phân khu này tập trung vào việc phát triển các dự án giao thông trọng điểm và hạ tầng phục vụ đời sống cộng đồng.
Quy hoạch chi tiết tại phường Trương Định bao gồm nhiều dự án quan trọng như mở rộng các tuyến đường chính, xây dựng các khu nhà ở mới và các công trình công cộng, tạo điều kiện thuận lợi cho sự phát triển đồng bộ cả về kinh tế và xã hội của khu vực.

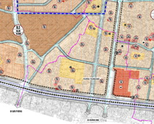
Bản đồ quy hoạch sử dụng đất phường Trương Định, một phần thuộc Phân khu H2-4 (Nguồn: Vietnammoi)
Định hướng phát triển không gian đô thị
Với mục tiêu đưa phường Trương Định trở thành một khu vực đô thị hiện đại và văn minh, UBND quận Hai Bà Trưng đã công bố kế hoạch sử dụng đất năm 2024. Kế hoạch này bao gồm nhiều dự án thu hồi đất để triển khai xây dựng các công trình công cộng và hạ tầng đô thị quan trọng. Một số dự án nổi bật đáng chú ý:
- Đầu tư cho giáo dục: Xây dựng mới trường Trung học cơ sở và mở rộng quy mô trường Tiểu học Trung Hiển, nhằm nâng cao chất lượng giáo dục và hoàn thiện cơ sở hạ tầng ngành giáo dục tại địa phương.
- Phát triển không gian văn hóa cộng đồng: Xây dựng Nhà văn hóa phường tại khu vực ao Bãi Đông 3, tạo điểm sinh hoạt văn hóa và cộng đồng ý nghĩa cho cư dân.
- Cải thiện hạ tầng giao thông: Triển khai các dự án giao thông phục vụ việc mở rộng tuyến đường Vành đai II và công tác giải phóng mặt bằng cho các tuyến đường trọng điểm khác.
Những dự án này không chỉ góp phần nâng cấp cơ sở hạ tầng của phường mà còn trực tiếp cải thiện chất lượng cuộc sống, thúc đẩy sự phát triển toàn diện và bền vững của khu vực.
Quy hoạch giao thông và hạ tầng kỹ thuật
Quy hoạch giao thông tại phường Trương Định đóng vai trò then chốt trong việc nâng cao tính kết nối và thúc đẩy hoạt động giao thương. Các tuyến đường giao thông chính được quy hoạch mở rộng nhằm cải thiện khả năng lưu thông và giảm áp lực cho hệ thống đường hiện tại. Một số tuyến đường quan trọng được đề cập trong quy hoạch bao gồm:
- Mở rộng đường Bạch Mai II: Tuyến đường này dự kiến được mở rộng với chiều dài khoảng 900m, kéo dài từ số 67, ngõ Trại Cá đến khu vực số 18, ngõ 206, đường Trương Định. Việc này sẽ tăng cường kết nối giữa các khu vực lân cận.
- Tuyến nối đường Trương Định – Đại La: Một đoạn đường dài khoảng 630m sẽ được mở rộng, nhằm tăng cường kết nối giữa hai khu vực phát triển quan trọng của phường.
- Tuyến đường vào ngõ 94 Hoàng Mai: Tuyến đường dài khoảng 190m này được quy hoạch để cải thiện khả năng tiếp cận và sự thuận tiện cho cư dân trong khu vực.

Bản đồ quy hoạch giao thông phường Trương Định, thuộc Phân khu H1-4 (Nguồn: Vietnammoi)
Song song với đó, hệ thống hạ tầng kỹ thuật như cấp nước, thoát nước và mạng lưới điện cũng đang được chú trọng cải thiện theo hướng hiện đại hóa, nhằm đáp ứng nhu cầu sử dụng ngày càng tăng của người dân và đảm bảo hoạt động ổn định của khu vực.
Bản đồ quy hoạch phường Trương Định đang mở ra nhiều cơ hội phát triển vượt bậc. Với sự đầu tư mạnh mẽ vào hạ tầng giao thông và đô thị, khu vực này hứa hẹn sẽ trở thành một trung tâm đô thị sầm uất trong tương lai gần. Các dự án quy hoạch chi tiết và nỗ lực cải thiện không gian sống đang góp phần nâng cao đáng kể chất lượng cuộc sống của cư dân. Trong bối cảnh đầy tiềm năng này, NHATO cung cấp dịch vụ tư vấn và ký gửi nhà đất chuyên nghiệp, hỗ trợ khách hàng tiếp cận thị trường bất động sản một cách hiệu quả, an toàn và tối ưu hóa lợi ích đầu tư tại khu vực đang phát triển sôi động như phường Trương Định.
Để hiểu rõ hơn về tiềm năng và cơ hội đầu tư tại khu vực này, hãy khám phá thêm những thông tin chi tiết và hữu ích trong chuyên mục Kiến Trúc & Xây Dựng.
