Nhà ống 2 tầng hiện đang rất phổ biến tại các khu dân cư đông đúc và các thành phố lớn. Thiết kế nhà ống hiện đại và tiện nghi không chỉ thu hút mà còn giúp ngôi nhà nổi bật hơn. Trong bài viết này, hãy cùng Nhà to review khám phá những mẫu thiết kế nhà ống 2 tầng 4.5 x15 ấn tượng nhất năm 2025.
Điểm nhấn của thiết kế nhà ống 2 tầng 4.5 x15
Gần đây, thiết kế nhà ống 2 tầng 4.5 x15 nhận được sự quan tâm lớn từ khách hàng bởi nhiều lợi ích mang lại, cụ thể như sau:
Thiết kế đơn giản từ ngoại thất đến nội thất
Với những mẫu nhà ống 2 tầng 4x12m hoặc 4.5x15m, kiến trúc sư thường hướng tới thiết kế đơn giản, giúp tối ưu hóa diện tích để tạo nên không gian sống lý tưởng nhất. Phong cách thiết kế nội thất của ngôi nhà không chỉ thể hiện được thẩm mỹ mà còn cá tính của gia chủ. Mẫu nhà ống 2 tầng chú trọng vào sự tối giản từ cả nội thất và ngoại thất, mang sự hài hòa và ấn tượng từ ngoài vào trong.

Đơn giản mà tinh tế trong thiết kế từ ngoài vào trong
Có thể bạn cũng muốn tham khảo những mẫu nhà ống lệch tầng 4x15m ấn tượng để tối ưu không gian sống và tạo điểm nhấn kiến trúc độc đáo cho tổ ấm của bạn. Xem ngay tại đây.
Chi phí thiết kế và thi công hợp lý
Mẫu nhà ống 2 tầng 4.5 x15 hay nhà ống 2 tầng 4x15m hoàn toàn đáp ứng diện tích xây dựng khiêm tốn, mà vẫn đảm bảo không gian sống thoải mái cho các thành viên. Hơn nữa, chi phí xây dựng tiết kiệm phù hợp với ngân sách của nhiều gia đình ở Việt Nam. Thông thường, các mẫu nhà ống 2 tầng tập trung vào việc mở rộng không gian bên trong làm cho thoáng đãng, tạo điểm nhấn cho mặt tiền. Nhờ vào cách bố trí đơn giản, chi phí đầu tư cho ngôi nhà này tiết kiệm so với các mẫu khác.
Thích nghi với mọi xu hướng mới nhất
Mẫu nhà ống 2 tầng 4.5 x15 không những đơn giản, tinh tế mà còn vẫn giữ được nét độc đáo và hiện đại, phù hợp với các xu hướng kiến trúc mới nhất, giúp đáp ứng cả công năng sử dụng và thẩm mỹ của gia chủ.
Giới thiệu mẫu bản vẽ thiết kế nhà ống 2 tầng 4.5 x15 tiêu biểu
Dưới đây, Nhà to review xin giới thiệu tới quý khách hàng mẫu bản vẽ bố trí nội thất cho nhà ống 2 tầng 4.5 x15 vô cùng tiện nghi và khoa học để tham khảo.
Tầng 1 bao gồm: phòng khách, phòng bếp, phòng ngủ và 1 nhà vệ sinh, được sắp xếp một cách thông minh để tạo sự thông thoáng và thuận lợi trong di chuyển.

Bố trí mặt bằng tầng 1 của nhà ống 2 tầng 4.5 x15
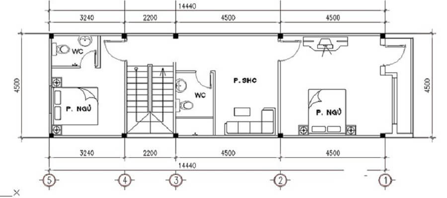
Tầng 2 bố trí: 2 phòng ngủ, 1 nhà vệ sinh và 1 phòng sinh hoạt chung; trong đó phòng ngủ lớn nhất hướng ra phía mặt tiền và nhà vệ sinh chung nằm cạnh cầu thang. Phòng ngủ nhỏ thì có không gian riêng tư với nhà vệ sinh khép kín.
Mặt bằng nhà ống 2 tầng 4.5 x15 với tầng tum dành cho sân phơi, phòng thờ và sân thượng rộng rãi, thông thoáng. Phòng thờ được bố trí thờ cúng tổ tiên,
Nhà được bố trí một cách tinh tế, gần gũi với gia đình, nằm ở tầng cao nhất và hướng ra mặt trước của căn nhà. Khu vực sân sau được tận dụng làm sân phơi, còn sân thượng phía trước mang đến một không gian nghỉ ngơi thư giãn cho cả gia đình.
Top 9+ mẫu nhà ống 2 tầng 4.5 x15 nổi bật năm 2025
Trong bài viết này, Nhà to review xin chia sẻ một vài mẫu nhà ống 2 tầng 4.5 x15 nổi bật nhất của năm 2025.
Thiết kế nhà ống 2 tầng 4.5 x15m mái lệch
Gần đây, các mẫu thiết kế nhà ống 2 tầng mái chéo thu hút sự chú ý từ các gia đình Việt. Sự tươi mới trong cách bố trí không gian và thiết kế mặt tiền ấn tượng giúp ngôi nhà có phần nổi bật và cuốn hút. Nhà ống 2 tầng 4.5 x15m mái lệch là mẫu mang đến sự sang trọng và nét đẹp đặc biệt, làm sáng rõ vẻ đẹp môi trường xung quanh.

Thiết kế nhà ống 2 tầng 4.5 x15 mái lệch phá cách

Thiết kế nhà ống 2 tầng 4.5 x15m mái lệch
Thiết kế nhà ống 4.5x15m hình hộp
Với mặt tiền tối giản và không gian hình hộp độc đáo, mẫu nhà ống 2 tầng 4.5 x15 mang lại diện mạo hiện đại, mạnh mẽ cho gia chủ. Tổng thể, mẫu nhà ống này không hề kém cạnh các thiết kế hiện đại khác, đồng thời chi phí thi công cũng phải chăng, giúp gia chủ tiết kiệm đáng kể.

Thiết kế nhà ống 4.5x15m hình hộp

Thiết kế nhà ống 4.5x15m hình hộp độc lạ
Nếu bạn yêu thích sự đơn giản và tiết kiệm, đừng bỏ qua những mẫu nhà cấp 4 mái thái giá 300 triệu được tổng hợp và đăng tải tại trang tin của Nhà to review.
Thiết kế nhà ống 2 tầng 4.5 x15m phong cách hiện đại
Những thiết kế nhà ống 1 tầng 4×15 hay nhà ống 2 tầng 4.5 x15 hiện đại, sáng tạo không chỉ tạo nên không gian nội thất sang trọng mà còn cuốn hút. Sự quan tâm và đầu tư kỹ càng từ kiến trúc sư và gia chủ trong việc trang trí nội và ngoại thất giúp ngôi nhà ống hiện đại trở thành điểm nhấn độc đáo, bất ngờ.

Thiết kế nhà ống 2 tầng 4.5 x15 đơn giản và hiện đại

Thiết kế nhà ống 2 tầng 4.5 x15m phong cách hiện đại, cực cuốn

Thiết kế nhà ống 2 tầng 4.5 x15m hiện đại, nhỏ xinh
Hy vọng rằng với những mẫu thiết kế nhà ống 2 tầng 4.5 x15m đã được giới thiệu, bạn có thể nắm bắt nhiều hơn về kiểu nhà đẹp và độc đáo này để chọn lựa được mẫu phù hợp nhất với gia đình mình cả về sở thích và tài chính.
Gợi ý tìm hiểu thêm những mẫu thiết kế nhà ống 2 tầng đẹp 100m2

