Mẫu nhà cấp 4 gác lửng đang rất được nhiều gia chủ lựa chọn khi xây dựng tổ ấm với các thiết kế từ 1 đến 3 phòng ngủ. Cùng trang web nhàto review khám phá top 10 mẫu nhà cấp 4 gác lửng 4x20 phổ biến nhất hiện nay nhé!
Ưu điểm của nhà cấp 4 gác lửng
Rất phù hợp với nhu cầu của nhiều gia đình cùng chi phí hợp lý. Nhà cấp 4 tận dụng không gian một cách hiệu quả, thích hợp cho diện tích nhỏ. Ngoài ra, kiểu nhà này có nhiều thiết kế đẹp, dễ thi công và hoàn thiện nhanh chóng. Bạn có thể lựa chọn vật liệu phù hợp với nhu cầu và chi phí xây dựng, như đúc hoặc lót gỗ, tấm 3D cho phần gác lửng.
 Top 5 mẫu nhà cấp 4 gác lửng đẹp nhất hiện nay
Mẫu nhà cấp 4 gác lửng 1 phòng ngủ
Dành cho căn nhà nhỏ với kinh phí giới hạn, bạn có thể thiết kế ngôi nhà đẹp như mẫu dưới đây. Tuy nhiên, chỉ nên bố trí 1 phòng ngủ để đảm bảo tiện nghi và phù hợp với diện tích thực tế.
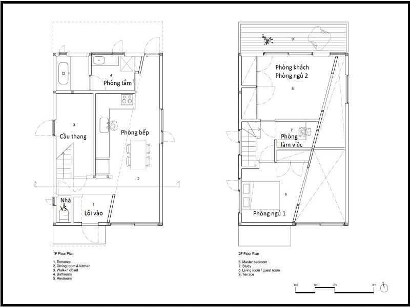
Bạn có thể đặt phòng ngủ trên gác lửng hoặc chia thành phòng ngủ và phòng làm việc. Một bức lam gỗ ngăn sẽ giúp gác lửng thêm thông thoáng và rộng rãi. Mẫu nhà này đặc biệt hợp với gia đình nhỏ hoặc các cặp vợ chồng mới cưới.
 
 
Nhà có không gian mở thông thoáng với màu sắc nhẹ nhàng được nhiều người nên ưu tiên. Bạn có thể sử dụng kệ hoặc tủ để trang trí, vừa tiết kiệm diện tích vừa tạo không gian thoáng đãng. Các bức tranh màu sắc tươi sáng cũng làm nổi bật thêm cho ngôi nhà.
Cách bố trí ngôi nhà đảm bảo không gian hợp lý, cầu thang đặt ở cuối nhà giúp phòng khách rộng rãi hơn. Nên chọn kiểu cầu thang nhỏ gọn, đơn giản để tối ưu hóa và tiết kiệm chi phí.
 Mẫu nhà cấp 4 gác lửng có 2 phòng ngủ
Đây là mẫu nhà cấp bốn gác lửng đẹp với tông màu nhã nhặn và mát mắt. Gác lửng bố trí 1 phòng ngủ, không gian sinh hoạt chung ở tầng trệt với 1 phòng ngủ ở sau. Bạn có thể dùng vách ngăn gỗ để trang trí, làm cho ngôi nhà thêm đẹp và thông thoáng.

Mẫu này khá độc đáo, tận dụng chiều dài có thể thiết kế thêm phòng đọc sách hoặc làm việc trên gác, và thêm 1 phòng ngủ. Tầng trệt với 1 phòng ngủ và bếp tiết kiệm không gian cho gia đình.
 
 
 Mẫu nhà cấp 4 gác lửng có 3 phòng ngủ
Mẫu nhà cấp 4 gác lửng hiện đại với thiết kế khoa học. Với không gian rộng, gác lửng bố trí 2 phòng ngủ liền kề, không gian phía trước tạo sự thông thoáng hơn. Tầng trệt là nơi sinh hoạt chung với phòng khách, bếp, phòng ăn và phòng ngủ lớn. Phù hợp cho gia đình đông người với 3 phòng ngủ tiện nghi.
 
 
 
Tầng trệt với sự bài trí tài tình đã làm cho diện tích ngôi nhà trở nên rộng rãi đáng kể. Thiết kế này lý tưởng cho những ngôi nhà có hình dáng hơi vuông và phù hợp với các gia đình trẻ trung và hiện đại.
Mẫu nhà cấp 4 gác lửng có phòng thờ
Với chiều ngang từ 4 đến 5 mét và chiều dài lớn, việc thiết kế tổ ấm cấp 4 đẹp mắt là điều dễ dàng. Xu hướng thiết kế không gian mở giữa phòng khách và phòng ăn đang ngày càng được yêu thích.
Dựa vào mẫu nhà trên, ở tầng trệt có thể bố trí phòng khách với tivi ẩn dưới cầu thang. Tiếp theo là khu vực ăn uống với bếp, và một phòng ngủ kèm nhà vệ sinh. Tầng lửng được thiết kế phòng thờ ở phần đầu, sau đó là thêm phòng ngủ và nhà vệ sinh. Đặc sắc của ngôi nhà nằm ở chiếc cầu thang nhỏ gọn, đẹp mắt, vừa tiện dụng vừa là điểm nhấn trang trí.
 
 
Với thiết kế nhà cấp 4 gác lửng có phòng thờ này, ban đầu sẽ là khu đậu xe rộng rãi, đảm bảo an toàn và tiện lợi cho xe ô tô hoặc xe máy. Phía sau là phòng khách được sắp xếp nội thất khoa học, ngăn cách với bếp và phòng ăn bằng vách ngăn thông minh. Cầu thang được thiết kế gọn nhẹ, đơn giản để tiết kiệm diện tích. Trên gác lửng là không gian cho phòng thờ, hoặc phòng làm việc, cùng 1 đến 2 phòng ngủ và nhà vệ sinh.
Tìm hiểu thêm: 33+ Mẫu Nhà Cấp 4 Có Phòng Thờ Riêng Đẹp & Thu Hút Tài Lộc
Mẫu nhà cấp 4 gác lửng diện tích nhỏ
Căn nhà cấp 4 này nổi bật với gam màu gỗ tinh tế và gác lửng được thiết kế hợp lý, tạo nên sự khác biệt. Đây là lựa chọn hoàn hảo cho không gian nhỏ hẹp, rất phù hợp cho người độc thân hoặc các cặp vợ chồng trẻ.
 
  
Nếu bạn đang tìm kiếm những mẫu thiết kế rộng rãi hơn, có thể tham khảo thêm các ý tưởng nhà cấp 4 100m2 với bố trí khoa học và không gian sinh hoạt thoải mái, phù hợp cho gia đình đông thành viên.
Top 10 mẫu nhà cấp 4 gác lửng 4x20m đẹp làm say lòng người
Đối với những gia đình sở hữu diện tích 80m2 có thể tham khảo những thiết kế sau.
 Mẫu 1
 Mẫu 2
Mẫu nhà cấp 4 này mang phong cách hiện đại kết hợp cổ điển, với lối đi đơn giản nhưng sang trọng. Sử dụng gam màu sáng làm ngôi nhà nổi bật giữa không gian.
 Mẫu 3
 Mẫu 4
 Mẫu 5
 Mẫu 6
 Mẫu 7
 Mẫu 8
 Mẫu 9
 Mẫu 10
Các thông tin về mẫu nhà cấp 4 gác lửng 4x20 trên đây đang thu hút sự quan tâm của nhiều gia đình hiện nay. Hy vọng rằng những gì chúng mình chia sẻ sẽ hỗ trợ bạn lựa chọn được thiết kế ấn tượng nhất cho tổ ấm của mình.


